看了1000套养老房装修,若不差这点钱,一定要为父母装这些
装小蜜装修监理
2021-02-19

讲真,逢年过节,有多少朋友和我一样,营养保健、按摩泡脚,孝敬爸妈买个不停……

但说实在的,一年到头乱花钱,不如把钱花在刀刃上。
让父母居住体验再升级、住得更舒心,绝对是年度送爸妈最好的礼物。
没有之一!

今天,我们就来聊聊,适老装修那些“贴心到令人发指”的细节。
趁着新一年,赶紧给家里老人安排上!
本文阅读索引:
Part1.全屋各空间适老装修的设计细节
Part2.适老装修前的必备思路
Part.1
全屋各空间适老装修的设计细节
适老装修从字面理解,就是适合老人的家庭装修。
一般是子女给父母装,毕竟老人年纪大,自己跑装修很难。
适老装修的整体原则:更注重安全性和便利性,同时更倾向于轻型化、小型化产品。
各空间的适老装修设计到底应该怎么做?以下我们详细说说。
一
玄关
1、入户门槛定制小缓坡,防摔倒第一步!
讲真,入户有门槛的话,老人很可能会一不小心绊在这儿,尽量减小门槛高差,绝对是防摔倒的关键。
对于已经装修完房子的家庭来说,家里的防盗门门槛外底坎高和内底坎高一般在30~60mm之间,可以根据自家门槛的高度和宽度,在门槛两侧都定制一个小缓坡。

这里要特别注意,不管橡胶或其他材质,缓坡一定要粘牢!
只有做好固定才能达到平缓效果,否则不仅白费力气,对于腿脚不便的老人来说更是雪上加霜。
顺便提一下,通常入户门宽度在900mm左右,常规宽度有860mm、960mm,甚至1160mm不同尺寸,相对不超过650mm宽度的轮椅来说足够用。

如果家里有老人坐更宽尺寸的轮椅,或是想留足门洞为老人日后提供便利,可以扩宽门洞,按尺寸加钱定制。
2、玄关用洞洞板搭配搁板挂钩,储物一目了然
老人对玄关储物不像年轻人依赖通顶玄关柜等,生活衣物和鞋子相对简单,只需要满足日常小物件的收纳即可。
比如,像钥匙、零钱包、口罩等出门必备物品,一定要方便取放,出门的时候能快速拿起,不需要花过多时间找。
独立鞋柜上方墙面利用洞洞板、搁板和挂钩组合形式,将能挂的零碎物件统统上墙,一眼取用。

家里做了通顶玄关柜的,可以利用中间壁龛区域内侧,用最简易的粘贴挂钩方式,解决出入时的钥匙摆放等,只要每次都物归原位,根本不会找不到。

3、玄关柜体高度850mm,鞋柜悬空35cm最佳
为老人做装修,独立鞋柜或通顶玄关柜可以根据自家储物需求选取,值得注意的是,柜体高度以850mm最佳,通顶玄关柜中空部分的台面也保持在这个高度,可以给老人撑扶提供一个助力。

玄关柜底部留空,放平时最高频更换的鞋子,不用弯腰开鞋柜,穿脱更省力。
给老人用的话,悬空35cm搭配感应灯带最适合,这样老人能直接看见底部鞋子的摆放情况。
柜体进深过大的,最好在底部留空部分加上挡板,让鞋子在老人站立时的视线范围之内。鞋子一不留神踢进去,老人弯腰去捡再起身,很容易眩晕。

对老人来说,就算入户空间再有限,换鞋凳也要安排上!
换鞋凳要稳当,在条件允许的情况下尽量长一点、宽一点,方便坐着换鞋,还能随手放东西。
尤其自带搁板的换鞋凳,下面直接放老人最常穿的鞋子,坐着就能拿到,穿脱一气呵成。

入户区实在狭小有限,甚至几乎没有玄关区的家里,直接在墙壁上装一个折叠换鞋凳,一样好用。

加厚铝合金的五金件比塑料的结实耐用、承重强,厚实的冷轧钢,搭配内置阻尼器,轻轻一拉就能自动缓冲下落,毫不费力,首选上方带扶手的折叠换鞋凳,更方便老人撑扶。
一般卖家都会附送膨胀螺丝,直接用电钻钉在墙上即可,基本上打两个就很稳,打上五六个稳得不行!
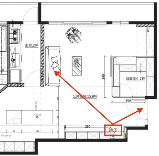
4、装面入户镜,解决视觉死角
这里的入户镜并不是只为了出门着装打扮的全身镜,而是根据自家户型,在适当位置安装,解决视觉死角问题的镜子。

这样一来,老人坐在客厅,直接通过镜子反射就能看见门口有人来了,避免老人听见门响,慌张起身查看,仓促举动导致摔跤。
5、智能锁首选半导体指纹识别
有条件的可以考虑给家里换智能锁,尤其喜欢每天多次出门遛弯的老人,万一哪天出门忘带钥匙就很麻烦。
智能锁除了防老人忘带钥匙、忘锁门,还安全又方便。
听我一句劝,这东西千万别想着拼命省钱,选干电池配置的C级全不锈钢锁芯,不仅安全系数高,电池还耐用,用上大半年不成问题。

首选半导体指纹识别系统,虽然是镀膜的容易磨损,用上几年就得换新的,但半导体相对光学识别度更高,对老人指纹脊线变浅等不清晰的情况,十分友好。
录指纹时建议食指、中指、无名指都录一下,如果出现报错开不了门的情况,多试几次就好。
二
客厅
1、沙发尺寸一定要合适,坐感要稍硬
老人对沙发的坐感追求不像年轻人,老人坐稍硬一些的沙发会更好,这样起坐才不会吃力。
沙发座面高度与膝盖弯曲后的高度相符,约等于小腿高度;
沙发座面宽度约48cm为宜,不能让老人腰部离沙发背太远,这样缺乏支撑,坐久了腰背疼痛;
沙发背倾角、坐倾角要选大一些,125°~135°为宜,沙发背高最好在老人颈部高度上下,给老人提供支撑,让老人放松。
这里值得注意的是,沙发最好选落地、无脚式的,避免底下有缝隙,一不小心滚个东西进去,老人就得弯腰去捡,很不方便。


如果家里的沙发过长,老人只能坐两角靠着扶手起身,可以在沙发中间加装扶手。

2、茶几首选圆角,高于沙发至少50cm取物不弯腰
茶几注意首选圆角处理的,不容易磕碰。要比沙发至少高50cm左右,取物不用俯身,能轻松不少,不管是边看电视边吃饭,还是随手放常备物件,都更方便。
底部最好留空,能让老人把腿放松伸直,从细节上提升老人的居住舒适度。


随着年纪增长,老人视觉、听觉会逐步衰退,电视最好距离沙发2m-3m左右,太远太近都不好。
3、家具轻便小型可移动,扶手椅选短款扶手最安全
年轻人喜欢用扶手椅和沙发组合,老人则要选择轻便的椅子,底盘稳当是第一位,其次就是要小巧好移动,方便老人小范围挪动即可。

4、动线避免繁复装饰物,适当安装防滑扶手
客厅是老人最常待的地方,从家具到装饰物都避免过多,保证老人活动空间宽敞,省得一不留神被绊倒。
屋主@Frank一家三口与母亲同住,在走廊做嵌入式衣柜,拓宽了客厅、卧室和卫生间之间的空间,让老人行动自如,同时增加储物空间。

再比如,《梦想改造家》有一期,改造了一个家中住着80岁患有阿兹海默症老人的家,老人虽然行动不便,但最爱 “到处跑“。
改造办法就是在老人经常活动的区域,全部加上根据老人身高定制的防滑扶手,方便老人随时活动,同时提供老人走路借力和倚靠休息的工具。

三
餐厅
餐桌最好选圆形餐桌,或者经过圆角处理的。

餐桌用的扶手椅,扶手一定要选短款的,最好不超过坐面长度的1/3,方便借力起身,又不影响转身。

四
厨房
1、老人首选半开放式厨房,L型、U型橱柜布局动线更短
老人喜欢自己做饭,下厨房的热情真不是子女能拦得住的,把厨房改造成半开放式,或是把传统的封闭式厨房门换成玻璃推拉门,一来最大程度改善采光通风,二来厨房内外能随时观察,也方便家人聊天互动。

给老人用的厨房橱柜尽可能采用L型和U型布局,比起一字型操作动线更短,转个身就能切换操作,可以充分利用转角区域做操作台和灶台。
2、台面加高,水槽区高于灶台区更好用
要知道老人弯个腰最受罪,更别说长时间弯腰切菜做饭了,厨房一定要把台面加高!
按照台面高度万能公式来换算,台面高度=身高÷2+(5-10cm),以身高160cm的老人为例,相应的理想台面高度在85cm-90cm,直接做成高低台面,水槽区高于灶台区,更好用。

适合老人取物习惯的区域,在台面和中部,也就是台面以上、吊柜以下。
可以适当增加台面面积,摆放常用的厨用小家电和调料工具,做墙面置物架,伸手就能够到,吊柜下方再装个电池感应灯带,备菜炒菜看得见。
电源插座设置在伸手就能够到的地方,开关面板要大。

地柜多做抽屉,一拉出来就能看到里面的物品,底部就收纳不常用的物品,免得经常弯腰去找。
3、按压式柜门配吊柜反光板,厨房储物更省力
吊柜看似是鸡肋的存在,实际上装了绝对不后悔!
把老人不舍得扔的常年旧物统统收到吊柜里,怕遗忘就装个吊柜反光镜,柜子里收纳的物品一目了然。

橱柜门首选按压式更省力,至于伸手即可触达的升降拉篮,对于老人来说拉着略费力气,并不适合所有老人,建议到店实际体验后再决定购买安装。
4、防溅墙整块一体材料易清洁,首选烤漆钢化玻璃
适老装修的厨房,在材料选择上首选一体好清洁的,就拿防溅墙来说,千万别追求颜值,给老人装小方砖,日常清洁绝对是老大难。
选用没有缝隙的一体烤漆玻璃,防水耐污一抹就干净,有条件的也可以看看日本厨房墙面流行的珐琅板,一种金属钢板和玻璃无缝衔接的新材料,比起拼贴的瓷砖,清洁起来无敌友好。

厨房本身已经贴了瓷砖的,直接买个墙面隐形贴纸就能补救,防水防油、防火耐高温,能贴灶台背板、厨房台面等,一张60*90cm大小的不到五块钱,超高性价比,脏了直接换新的也不心疼。

5、抽拉水龙头+大单槽,厨房神仙组合!
厨房水龙头选简单开关款式,便于老人操作。最好还能调节出水口高度的,建议首选龙头向下拉的高抛抽拉龙头,向前拉的水龙头容易进水生锈。
除此之外,水槽建议用大单槽搭配一个可移动的沥水篮,能洗菜,能沥水,拿掉就能装进大炒锅,怎么洗都不用担心水花乱溅。

五
卧室
1、布局简洁留空,通风采光朝南最佳
老人群体抵抗力普遍降低,通风采光,保温隔音还要好,才能保证室内居住的健康环境,有条件最好把老人卧室安排在南向房间,色彩以素净舒缓为主。
如果家里有坐轮椅的老人,卧室空间面积不能过小,布局简洁留空,一定要保证室内中心和床边有足够空间来通行和进行护理,家具以轻便好移动最佳。

2、靠墙的床墙壁可以贴温暖的皮革,床头柜带抽拉板最好
喜欢把床靠墙摆放的老人,可以在床依靠的墙上贴一些温暖、易清洁的装饰皮革材料。
老人对床头柜的依赖程度非常高,日常起卧都要用床头柜来撑一撑,选择带搁板或抽屉的床头柜,既能储物,又能当扶手用。

3、卧室布光要柔和,台灯、起夜灯不能少
老人卧室整体布光以柔和为主,对比强烈的灯光和多种颜色的光源会导致老人眼花眩晕,增加摔倒的可能性,过于刺激的灯光还有可能引起突发性心脑血管疾病。
床头灯可以选择可调节壁灯,开关位置要方便老人上床后关灯。
或者在床头柜摆放台灯,台灯要选小巧、灯头可调节的,灯罩不宜过大,避免起身打翻、碰倒。

由于老人上了年纪,眼睛的进光量会相对减少,阅读所需的照度值提升至300-600Lux,老人看书看报会更清楚。

从卧室床脚到卫生间过道处的一路上,都装上感应灯,方便老人起夜用,人一经过就能自动亮起。


好的起夜灯应该做到,白天可以判断光线充足不开启,晚上一旦检测到人下床和行走,就会自动开启,光亮充足还不刺眼,不影响其他熟睡的家人。
4、床要硬一点,床高40cm-50cm最适宜,分体床垫和电动床按需选
从睡眠的舒适度来说,稍微硬一点的床才能让老人睡得好,太软的床,睡觉的时候腰部下沉,反而会越睡越累。
衡量床的软硬程度,一般来说,10厘米床垫,用手压下去下陷3厘米就是合适的程度。
老人床高度在40cm-50cm左右最佳,过高过低都不方便老人上下床。
都知道年纪大了睡眠质量也会变差,为了避免二老相互影响,分床睡或者选用分体床垫可以改善。
有特殊需求的可以选择能升能降可弯曲的电动床,床边围挡尽量给老人选柔软、好清洁、相对温暖的材料。

5、一定要选隔音窗,降噪、防干扰
老人卧室的窗户一定要选择隔音窗,同时整体可以使用降噪材料对墙面进行处理。
六
卫生间
1、卫生间选择折叠门或上悬推拉门
卫生间尽量选折叠门或是上悬推拉门,省空间又能轻松闭合,有效避免老人由于身体挡门不能内推的情况发生。

2、卫生间地面防滑,用哑光地砖或者防滑型橡胶地材
卫生间适老化装修的关键,绝对是防滑!防滑!防滑!
卫生间地面一定要选用防滑的哑光地砖,遇水就变涩,或者「防滑型发泡多层橡胶地材」,专门应用于浴室等湿滑场所地面。
3、一定不要忘记安装紧急呼叫装置
厕所的马桶间和淋浴间墙面,一定不要忘记安装紧急呼叫装置,可以用远程呼叫铃和家庭用监控,方便观察老人状况。
4、条形地漏代替挡水条,没有高差最适合老人
老人在淋浴时对防滑要求非常高,用最大的长条形地漏,能快速下水,保证地面不积水,减少老人遇水滑倒的可能性。
长条形地漏还有个最大的优点,就是可以设置在淋浴区的各个角落,墙角或淋浴区下方,代替挡水条,出口处与地面平齐,尤其适合老人。

如果卫生间面积实在有限,最简单的方法就是在容易湿的地方铺上防滑垫,只要不出现翘边、缺角、凹凸不平的情况,就不会对老人安全造成任何影响。
5、干湿分离卫生间最好用,不要门槛石!
越来越多家庭开始注重卫生间干湿分离,有条件的一定要选择干湿区彻底分离。
建议用浴帘软隔断做淋浴区干湿分离,这对老人来说简单好操作,洗澡活动空间大,也不会觉得闷,性价比极高。
老实说,卫生间淋浴区有地漏下水,水很难流到卫生间门口处,根据自家情况,尽量不装门槛石最安全。
实在要做就做平整,或者卫生间入口可以用扣条和另一种材质拼铺,代替门槛石,将高差降到最低。

6、淋浴区安装850mm高扶手,备好折叠淋浴凳辅助防滑
在淋浴区安装辅助扶手,距地面850mm、距花洒20cm-30cm左右就很合适,能助力,还能当毛巾架用。

老人洗澡时不能长时间站立,准备一个亲肤防滑的淋浴凳,有一般淋浴凳和专为驼背老人设计的多种需求可选。
淋浴凳坐面自带小孔不存水、不发霉,可以简单拆卸清洗,折叠收纳不会占用卫生间过多空间。

针对坐轮椅的老人,还有特别设计的如厕沐浴轮椅,坐便洗澡可折叠的多功能护理椅,把老人直接从床上转移到防水轮椅上,无论推到坐便器上方或淋浴花洒下都非常方便。
7、老人首选恒温花洒,最好别装浴缸
给老人用的花洒,首选恒温花洒,避免水温忽冷忽热。
最好给老人专门设置一个合理的固定高度,用来放手持花洒,这样无论老人站着还是坐着,伸手就能够到。

顺便说一下,老人最好就别用浴缸了,浴缸一般都比较高,如果一不小心磕碰到就得不偿失了。
如果想给老人用,要额外加脚踏板,还要考虑浴缸防滑和周边扶手。

8、有选择地加高马桶和洗手台,减轻腿部负担
对老人来说最安全的如厕方式是坐便,要选择久坐舒适,并且起身方便的马桶,可以选择智能马桶,有加温功能,冬天久坐不会冷,并搭配马桶边的起身扶手。

或者坐便器前方可以增设距离地面70cm左右的横板,竖向可以灵活收起,离坐便器20cm-25cm就刚刚好。
考虑到老人弯腰起身会吃力,可以根据老人自身情况选择增高马桶垫或洗手台加高,降低腿部和全身负担只会更加轻松。

七
其他
敲黑板!
在各个空间精准适老装修之外,还有一些超级实用的细节值得反复强调,可以说每一个拥有舒适居住体验的老人房都藏尽了细节。
1、门把手千万别选球型和直把型!
老人房门把手可不能太随意,球形把手考验老人的握力最好别用,把手尾端一条直线的和向下弯曲的都很容易勾到衣服。

门把手选向内弯曲的不容易被带到,老人还能用胳膊助力开门。

2、扶手圆形更容易抓握,长方形适合提供支撑
关于墙面安装的扶手,圆形截面反而更容易抓牢,扁扁的长方形的扶手适合提供大面积支撑,按需选择。
3、开关插座高于桌面台面,开关首选大面板
针对老人房使用的插座一定不能按常规高度来装,不管是书桌还是柜体周围插座一定要高于桌面或台面。我们普通家里的地插离地也就30cm,对老人相当不友好。
插座尽量设置在90cm-120cm高度,开关面板选大面板最佳,老人不用弯腰不用费神找对应开关按钮,在电器使用上能轻松不少。

4、首选向上翻盖的波轮洗衣机省腰力
现在多数家庭最常用的就是滚筒洗衣机了,但说实话给老人用还是首选波轮洗衣机最好,直接向上翻盖操作不用过度弯腰。
如果家里配置的滚筒洗衣机也不用更换,买个底座或定制个架子,给老人垫高到合适高度一样好用。
5、家有坐轮椅老人,过道至少留空150mm
室内门常规尺寸在860mm,轮椅可通行的宽度在80cm左右,一般来说老人房门洞完全可以满足,但遇到转圈或转弯通行的情况,至少留空在150mm才不会显得局促。

Part.2
适老装修的必备思路
我们其实一直在思考,大家都在说“适老装修”,但到底什么样的装修是适合老人的装修?
这个问题,我想,应该从分析老人的居住需求到底是什么入手。
我们想分享一个整体思路,就是:尽可能早地让老人能安全、舒适、有尊严地独自生活。
1、尽早
这是一个关乎应该什么时候开始给老人做装修的问题。
答案当然是越早越好。
装修的时候,提前将老人未来生活场景考虑进去,而不是等到老人身体不好的时候,才开始装修或者改造。
如果没有条件,那也至少应该在老人75岁之前,给他们做一次装修。
75岁的年龄线,很多身体机能就已经开始丧失了,在老人75岁之前,给他们做一次装修,让他们老了以后还能独自生活下去。
2、安全和舒适
这一条大家可能都有共识,但有一点需要提醒大家的是:适老安全的第一条,应该是防范摔倒。
有一句话说:“一个老人倒下了,一个家庭就失能了。”
老人晚年健康最大的威胁就是摔倒,一不小心摔倒,老人很可能因此失能。
所以,以防范摔倒为最低限的安全设计,是适老装修所需要的。
这就可能需要全屋安装扶手,地面平整、无高差和门槛等障碍,地板不仅要防滑,硬度也比较关键,空间要简洁,不要堆杂物被绊倒,照明不要有死角,等等。
3、有尊严地独自生活
我想这一点,很多人在给老人装修时可能会忽略。
首先,老人越老,其实越不想被当作“老人”看待,他们不是不知道自己的年纪,只是不想成为家人的累赘。
在给老人装修时,千万不要简单地认为,方便老人的晚年生活,就是给他们一把轮椅和一根拐杖。
其次,我们应该提早设想老人可能要独自生活的场景。
目前,我国已经迈入老龄化社会,未来,老人空巢率只会越来越高。
大多数时候,子女们忙于工作、忙于自己的小家,就算想要时时刻刻照顾家里的老人,也是心有余而力不足。成年人的世界,已经很残酷了,即使用尽全力,也可能碌碌无为。
而且,即使老人和子女一起居住的,有时候,彼此也需要自己的个人空间,我们注定要通往不同的地方。
因此,我们需要对自己的家庭情况、对老人的身体和心理,都有深刻的理解,考虑清楚老人生活的全部,这比一味给他们最贵的、最好的,或者逢年过节回去看他们,都更为有用。
也许我们正青春、正当年,在我们眼前展开的,也是一望无际的希望之海,我们无法体会年老的生活、心理状态,睡眠越来越少,越来越容易被惊扰,娱乐方式越来越少,活动的天地越来越小,直到再也跟不上世界的步伐……
年轻,就像一面锋利的镜子,照着父母的衰老。
但也许,在镜子里看到年迈的父母时,我们反而会恍惚,他们已经不会更老了,只有我们自己朝着衰老飞奔。
所以,做一次适老装修,其实也是给自己兜一次底,提前预演了可能,当有一天,我们也像父母一样老的时候,至少能知道,生活将依旧有希望。
END
如果你觉得本文对你有用
请点一个“赞”
你的“赞”会发光✨
