幸福的三口之家,“佛系”装修三房改两室,简约与实用性并存!
天津清航装饰
2021-03-05
“佛系”装修其实是一种放弃传统复杂的装饰,以一种返璞归真,追求简洁,舒适和实用的一种装修效果,深受广大年轻人的喜爱,而且这种效果其实也是一种流行趋势,快节奏的生活,更需要这样一种舒适的家!
老规矩,这次给大家带来坐标浙江宁波幸福的一家三口之家,其实这套房子是属于他们人生第一套新房,也是为了迎接家里孩子的“礼物”。2019年10月份开工,一直忙活到2020年5月份,然后晾着通风半年的时间,刚好到现在入住一段时间了。“佛系”装修,原本是三房的房子改两室,更方便使用,毕竟一家三口,没有必要做规规矩矩的三房,把其中一个房间改做了开放式的,更灵活使用。整个空间装修的效果,简约与实用性并存,屋主夫妻俩特别满意。下面,大家一起来感受感受吧!(
原始户型图

户型中规中矩,卧室空间小,并且公共卫生间布局不是那么合理,但是整个空间其实不影响室内采光,没有独立的入户玄关。
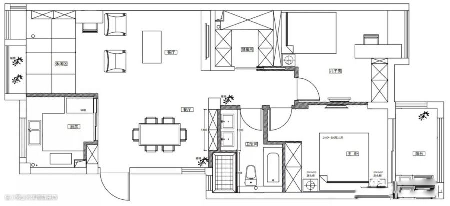
改造后的户型

户型布局最大的变化就是:
1、原来的三房改做了两室,客厅与原来的书房打通,增加了整个空间客餐厅的采光与通透感;
2、厨房的墙体稍微往书房扩大了一些,可以增大原来的厨房面积;
3、书房改榻榻米,不再是一个独立的空间,不管是作为茶室还是其他的功能区,都很实用;
4、改变了原来的主卧与儿童房,也就是拥有独立阳台的儿童房,改做了主卧。其实就是两个房间变化了位置,方便家里小孩长大了,拥有独立的空间;
5、把原来主卧卫生间改做了衣帽间,原本就是没有窗户,做衣帽间比较实用,三口之家,没必要两个卫生间;
6、缩小了主卧一些空间,增加了卫生间的面积,可以能放下浴缸;
7、稍微变化了过道位置,增长卫生间空间,可以设置双台盆,方便生活。
入户玄关

从电梯走出来,入户就是这个的效果了,其实左侧是一排的鞋柜,刚好把空间利用起来,形成了一个玄关,更多为了自己家的鞋子可以方便收纳起来。这样布局其实物业是允许的,不影响哈。入户大门重新换了,外面是选择黑色,比较好看,个性。
入户鞋柜


大门是一个双色的,内外颜色不一样,比较好看。安装了智能指纹锁,不需要带钥匙也可以方便开门,真心不错呀。虽然大门外面也有一个鞋柜,但是室内也需要一个入户鞋柜。设计了嵌入式的,分为上下两层,中间挖空并且安装灯,可以起到照明的作用,让人进来眼前一亮。最底下留空,放几双鞋子,太方便了!
餐厅


准确说一进屋就是餐厅了,布置了一张原木方形餐桌,长度为1.2CN*0.8CM,足够满足到八个人就座用餐了。原木色给人一种舒适感,加上顶面非常个性的吊灯,坐在这里用餐,真的太幸福了,其实也是一种享受呀。

餐边柜是做了嵌入式的,可以节省餐厅区域,从而带来一个非常实用的餐边柜,一家人都很满意。已经搬进来入住一段时间了,餐边柜装了很多东西,基本都填满了,越来越有家的味道,越住越舒适。“佛系”装修,考虑到舒适性的同时,也更多考虑到实用性,基本能布置柜子的空间,都舍不得浪费。

墙上挂着一个洞洞板,可以随意搭配。屋主使用松萝老人须、佛塔莲和松果作为装饰,比挂装饰画更有装饰性作用。不过,以后可以挂其他,方便很多。
客厅


地面铺贴的地砖木纹理非常抢眼,一眼看上去就很喜欢了。布置了“L”字型灰色布艺沙发,坐着特别舒服。地面搭配了一张电热毛毯,即使天气冷的时候挂着脚丫,也不会觉得冷。不需要的话,可以把拆卸加热线,方便使用。客厅是无主灯的设计,安装很多个筒灯,足够亮度了。


客厅是没有做电视墙的,直接安装了一个75寸4K电视机,加上旁边一个音响,其实也有点家庭影院的感觉。电视柜是直接请木工师傅打的,尺寸大小合适。坐在客厅与家人一起聊天看看电视,很幸福。


客厅沙发后面其实原本是一个封闭式的书房,后来了增加室内采光,所以原来的三房变成了两房,这间书房做了开放式的,变成了客厅的一部分,显得空间宽敞很多,室内光线更好。沙发旁边一个地球吊灯,颜值非常高。

高颜值的地球吊灯,太个性了,与墙面刷的硅藻泥更好搭配起来,更好衬托硅藻泥的质感,真心不错呀。喜欢这样的吊灯真的不能错过呀,视觉感很强。


考虑到需求,定制了非常实用的榻榻米,在这里不管是作为书房还是茶室,还是作为以后需要的客房,都很实用。定位叫做多功能区会更合适。榻榻米床上放着无腿凳,颜值很高,实用性与美观并存,非常喜欢,觉得坐在这里品茶或者看书,真的是一种享受。

把窗帘放下来就是这样的效果了,不过没有隔音的作用,没有什么隐私性可言。不过,家里来客人需求作为客房休息,也是通用的哈。
过道


过道左侧是衣帽间,对面是次卧,右上是主卧,右下是卫生间。不过,最大的亮点就是顶面的吊灯了,之前屋主去外面旅游,酒店见到的吊灯,最终也选择了安装在自己家里,特别完美,很个性。
主卧


屋主考虑到家里小孩还比较小,除了布置1.8米的双人大床之外,还添置了0.9米的包包床,可以方便照顾。以后家里小孩长大一些了,可以自己睡自己的独立房间。床头背景墙选择刷了粉色的硅藻泥,安装了LED灯,足够照明了。选择比较跳跃的颜色,更好看一些。
生活阳台


阳台大大的落地窗,真的太舒适了,加上楼层比较高,外面的视野看着比较宽广!阳台定制了非常实用的洗衣柜,旁边的位置可以放洗衣机和烘干机,不管是手洗还是机洗,都方便很多。地面放着一些植物,很好看!
儿童房


布置了一张单人床,加上一些撞色搭配,真心不错呀。床头背景墙后面是一排的书柜,以后装书的时候方便很多。靠窗户的位置设计了书桌柜加衣柜,储物空间是足够的。

原本打算也是刷硅藻泥的,但是最后选择艺术墙漆,选择了现在比较流行的网红灰,更符合男孩子一些。墙上做了世界版图,以后可以方便家里小孩认识世界地理位置,还是蛮不错的哈!
卫生间


扩大了卫生间的空间,布局上更为合理。一直都想要一个浴缸,所以卫生间浴缸是不可缺少的一部分,真的太香了,而且非常“佛系”装修。原木色的浴柜款式还不错,搭配起来很协调。安装了电热毛巾架,有加热等其他功能,特别实用。


安装了壁式马桶,比较方便使用,也比较节省时间。智能马桶,非常方便使用,比较智能化,同时颜值很高,没有异味。浴缸足够了,家里小孩也比较喜欢泡澡,很会享受。
衣帽间


原本是卫生间空间,改做了现在的衣帽间,特别实用。定制了“U”字型原木的衣柜,刚好可以把空间利用起来,家里很多东西都可以方便收纳。
厨房


根据结构,定制了“U”字型的原木橱柜,布局形成了“洗、切、炒”的顺序,非常方便使用,大小位置合适。每次使用厨房,很多东西都会有序收纳起来,保持厨房干干净净。上面的吊柜颜色不一样,效果更耐看。


预留了刚好可以放冰箱的位置,并且冰箱的侧面没有浪费,保鲜膜和手腕都可以方便收纳起来,使用到的时候特别方便。

安装了单水槽,并且安装了可伸缩的水龙头,非常方便使用,现在都比较流行的款式。水槽安装在靠窗位置,采光更好,洗东西的时候可以眺望外面,心情都比较轻松呀。分享于互联网,不代表公司任何立场,不承担任何责任如侵删。
屋主家三房改两室,其实这样的做法比较少见,真的是属于“佛系”装修了!整个空间,从入户鞋柜到客餐厅,再到各个空间,每个空间简约与实用性并存,很值得参考。家里正在打算装修或者户型都差不多,喜欢这样的效果可以参考。在这里,祝愿屋主一家三口生活幸福!