386平米意式轻奢大宅设计过程
上舍大宅建筑装饰
2021-03-10
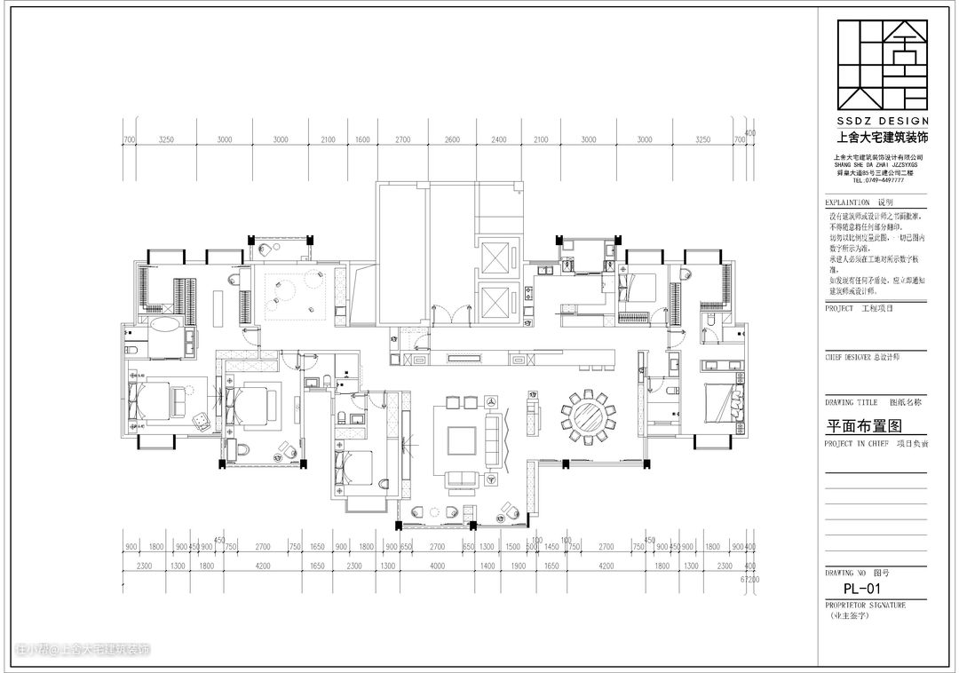
这是刚接到这个户型的建筑图,由三套房子合拼成一套房子,刚到看到这个户型图整体的思绪也是混乱的,

业主是90后的房地产公司老板,在我们东安县城那是无人不知无人不晓的成功人士,所以客户的要求也是很高的,这对我们设计师来说也是很大的一个挑战,还好我和业主是高中同学,我们的沟通也很顺畅,经过一个漫长的了解需求过程,出具平面设计思路,

这是根据房屋的结构做出一个空间布局的调整,结合设计院对现场一些梁柱的改造设计,不知道改了多次稿件,反复的推敲得出一下平面方案

这个是房子还没有成型的时候就开始平面布局设计,结构的改造与房子修建的是是同步进行的,设计院给出专业的结构设计要求与现场的对接,最后成型一个合理的动线分析,改稿与推敲得出一个客户满意的平面布局方案


最重要的一步完成了,接下来就是对房子一个风格定位的确定,搭建房屋的平面布局模型




材质的运用与选择,要满足客户对房子一看就要有;哦豁,好高级哦的感觉,材质的选择是对市场的考察,确保方案能够完美的落地,这也是一个漫长的过程,询价考察,落地的实时性等等施工的重要环节确定,节点的控制,根据的现场的实际情况得出第一个设计方案如下:





初稿和客户确定:没有过多的对房子的意见,功能布局都能满足初稿效果图与现场实际情况碰头,给出了几个字:不够高级。
只能推翻重来,从落地对材质定位选择:高定木饰面,奢石、不锈钢、黄铜、大理石等等材料的综合运用, 还有灯光的高级感:选择深度仿炫射灯、磁吸过道灯、氛围灯、从灯光的角度入手,来改造对空间氛围营造的落地效果,体现一个高级感, 那么第二稿的设计图就出来啦:








这个设计方案还在进行中,现在给到客户对接后,业主给出了一个意见:比之前好很多,但是还是缺少一些细节的部分的乐趣性,与艺术感,定位意式轻奢风,要给你一看就要很震撼,与高级,突出高级感。
项目设计继续进行中。。。
希望广大的住友设计师们,业主大概们,能给出宝贵的意见,这个作品的落地,我会持续跟新,住友们关注我哦
如有类似设计需求也可关注私信交流一下。