20年老房子逆天大改造, 64㎡沉闷旧房变身小清新!
铭品装饰旗舰店
2021-03-10
因为孩子、工作买了一套二手老破小,虽然知道空间不大但也只能硬上。要装修了,实测之后发现实用面积只有 64㎡,还有各种拆不了的凹凸面和拯救不了的采光。
之前所有对于家的美好幻想,都被现实啪啪打在地上,最终还是决定砸掉墙重新装修。
在经过设计师多次方案优化后,最终呈现的效果让网友在评论区都纷纷称绝:这么多的空间竟然只有64㎡,认真的?
业主丨@桐心树
面积丨建筑面积64㎡
设计丨铭品装饰
01户型改造/
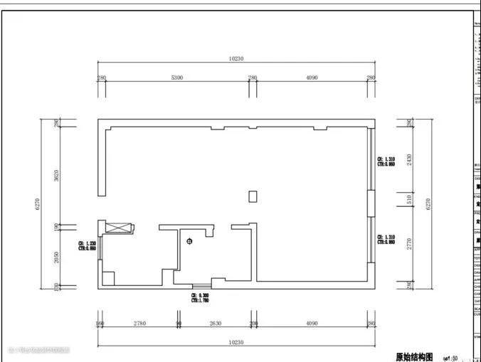
两室变三室,64㎡也有无限可能在刚开始买房时,桐心树的要求很简单,近地铁、近西湖,遵循这个要求的前提下,她购入了现在的这套房子,扣去乱七八糟的公摊墙面,能用的面积只有64㎡。

客厅没有对外的窗户,采光效率极差;卧室有个突出的柱子影响整体设计,厨房面积也不大,冰箱都放不进去;考虑到一家三口住,父母有时候也会过来住一下,原户型的两个卧室显然是不够的。

▲原户型空间缺陷很多
所以在和设计师提要求时,@桐心树 表达的很明确:
①满足五个人的居住需求
②客厅要透光
③厨房空间能大一些
④卫生间要有两个台盆
在经过数次的沟通和勘测后,最终确定下来现在的方案。

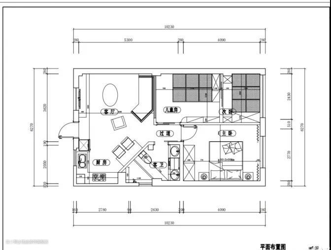
改动后的户型用一个斜切面巧妙地解决了卫生间和厨房的空间分配问题,还多出了一个餐厅的位置。原来的次卧则被一分为二,一半是儿童房,一半是客卧。
02餐厨空间/
开放厨房、折叠餐桌,空间利用率max
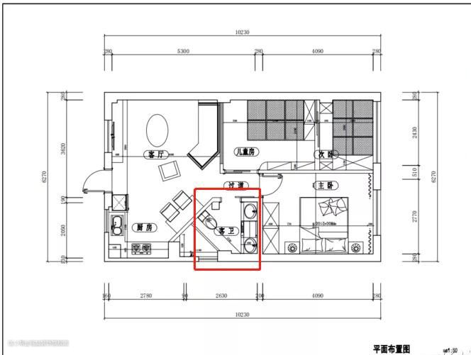
其实在最开始找装修公司时,@桐心树 一共询问了五家,只有现在这位设计师给出了厨房的斜角设计。

▲画圈处为斜角设计
这个斜角把原户型中卫生间的一部分划给了餐厨区,厨房也因此变成了开放式。


因为厨房的墙面被拆,冰箱的摆放问题也随之解决,墙面上部分是电箱的位置,冰箱则嵌入了墙体下方。

变成开放式厨房后,空间也比原来的封闭式大了一圈,「洗切煮」动线更加流畅。
餐厅处的设计最合@桐心树的心意。虽然乍一看桌子很小,但其实有折叠功能,家里来人时将桌子展开,8个人吃饭也不挤。

餐桌上方的灯是@桐心树 精心挑选的,书本状的设计和整屋简约的气氛很搭。
03客厅空间/
一扇窗户解决采光问题
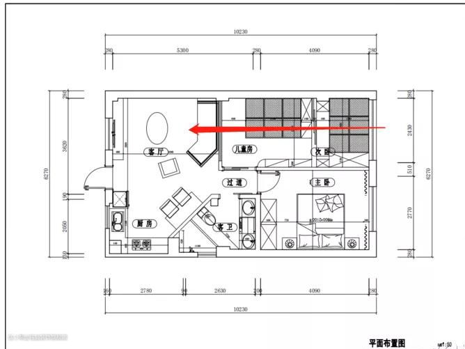
在刚开始装修时,最令@桐心树 头疼的就是客厅的采光问题,因为户型位置不太好,客厅是没有直接面向户外的窗户的,这就导致客厅在平时采光非常差。
最后 @桐心树 在结构上动了点小心思——在客厅和儿童房之间的墙面上开了一扇窗户。

次卧和儿童房之间并没有选择用实体墙隔开,而是选择用玻璃门,这样次卧的光可以直接透过窗户照进客厅。

▲光线方向
这样的光路设计在一定程度上解决了客厅采光不足的问题。

▲白天客厅光线很充足
客厅的空间在装修时也做了一些变动,一部分空间让渡给了儿童房。但即使这样,改动后的客厅空间也足够宽敞。

▲客餐厅一体化
电视柜和门口用了一个齐人高的收纳柜隔开,让两个空间的界限不会太过模糊。

04主卧空间/
户型缺陷变独特置物架
受限于房屋本身的实用面积,三个卧室的空间都不是很大,但这并没有阻止@桐心树 将卧室空间做足收纳。
主卧算是整个房间里空间最不局促的了,所以她在这里塞下了一张大尺寸双人床、两个床头柜,还有一个收纳超多衣服的嵌入式衣柜。


床和柜子都是精心挑选的,能够完美契合整屋的风格。

主卧最让人叫绝的设计应该就是背景墙上的嵌入式置物架了。

因为原户型中,背景墙的地方有一处突出的柱子,如果补齐,小户型空间寸土寸金,实在是有些浪费,干脆做成嵌入式置物架,平时也能承担一部分的收纳功能。

▲空出来的空间和空调完美契合
05儿童房&次卧/
迷你卧室也能成为收纳大胃王
儿童房和次卧的空间局促,所以这里的家具尺寸都很极限。
宝宝的屋子和次卧中间用玻璃隔断区分空间,是为了日后方便合成一个空间,榻榻米下的格子也不是固定的,方便日后更换成床。

榻榻米床可以兼做为储物格,大大提升了整屋的收纳能力。床边的柜子也可以承担一部分的收纳功能

儿童房的床尾则给桌椅留下了空间,孩子平时可以在这里学习。
06卫生间/
小户型卫生间也可以很从容
关于卫生间@桐心树有个独特要求,希望能有两个台盆,一个用来洗漱,另一个用来洗一些小衣物。

最后的设计满足了她,卫生间的台盆被一分为二,做成了两个,分别有独立的镜子和柜子,中间部分则放入了洗衣机。

夫妻俩每天出门时间差不多,双台盆设计能节省很多时间。

▲淋浴房是三角样式,最大化利用空间
卫生间整体都铺上了深色瓷砖,平时打理起来更方便。并且做了干湿分离。

08尾声/在@桐心树的规划里,这个房子她可能并不会住太久,也许短暂居住一段时间之后就又会出租出去当民宿。
但她的这个家对于很多二手房家庭来说都有一定的借鉴意义。
同样的面积,不同的取舍带来的效果是截然不同的。如何用更小的人力和财力成本,换来更舒适的居住环境,才是我们真正要考虑的。
把空间充分利用起来,每一处都物尽其用。毕竟房价这么贵,闲置才是最大的浪费!