给你讲讲什么是好的户型!
兵哥侃装修
2021-05-11
说到户型首先需要了解几个概念
开间:主要采光面,简单的理解就是窗户这个平面的宽度
进深: 与开间垂直的深度,一般为门打开的方向

面宽越大、进深越小的房子,采光通风越好,反之越差。但是,面宽过大会造成户内走廊面积增加,不利于空间利用。进深与开间之比一般介于1:1.5之间较好。
朝向:窗户可以看到的方向
户型图:所购房屋户型图
楼层平面图:所在房屋整栋楼的户型图
小区规划图:整个小区的楼栋分布,小区绿化配置和周边环境的地图
消防连廊:一栋楼两个或多个单元之间由架空连接体相互连接,以满足建筑造型及使用功能的一种防护安全措施的要求
明白了吗?接下来敲黑板
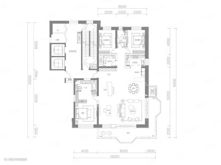
1 户型方正

户型的进深开间比例,这个比例如果是在1:1.5左右,那就就可以说这个户型是方正的了。如果进深大,开间小,户型的采光通风会受到影响,房间内会比较潮湿阴暗。如果是开间大,进深小,那么房间的保温效果就会比较差。同时这样的房子不存在过多的拐角过道,家具家电好放,利用率高。
2 坐北朝南 南北通透
在北半球,太阳从东方升起,顺时针滑倒西边落下,所以一天最好的阳光都在南边,优先选择正北朝南的房子,其次东南、西南。东朝向每天阳光来的太早,西朝向西晒严重,北朝向即便是顶楼无遮挡也一年无光。看户型图时会有方向标志,如果没有默认以文字阅读的角度上北下南。
大家应该都有一种生活体验,一个空间有两个方向窗户时,空气就会形成对流通透性非常好。如果在一个房间关上门,即便有窗户,风也吹不进来,对于户型也是如此。最优的户型就是南北通透。

反面教材 窗户都朝南,唯一的优点就是阳光足 冬天暖和 当然还是可以鄙视一下朝东朝西朝北的户型

经典南北通透户型 厨房对客厅阳台 卧室卫生间从北到南都有窗 空气流通率非常好,夏天很凉爽
3 动静结合

客厅作为活动区域,卧室作为休息学习区域,之间的运动轨迹互不干扰,彼此独立
4 全明户型

所有的房间都有窗户
5 干湿分离

卫生间洗浴和马桶洗漱池有分离和层次感,避免水洒的满屋都是
6 尺寸合理
每个房间的面积要合理,如果面积过小或过大都会影响到人们的居住舒适度。例如,主卧不得小于12平米,次卧不得小于8平米才能满足最基本的布置要求,客厅面宽超过3.5米才能放下合适的沙发电视柜,而厨房需要达到5平米,卫生间需要达到4平米,才能更方便人们使用。
画重点!!!
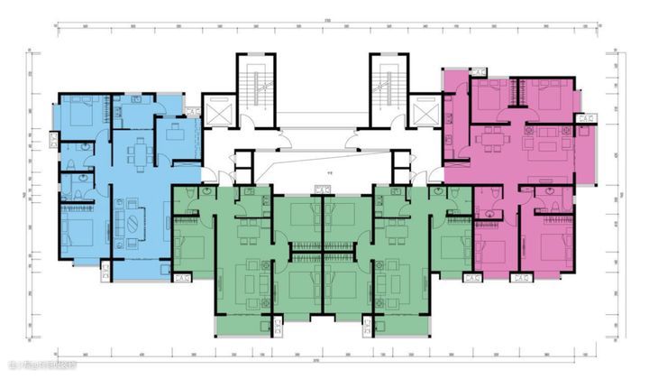
7 楼层平面图
一定要看楼层平面图!!!脱离外部环境谈户型也只是管中窥豹,耍流氓。比如

单看绿色户型符合南北通透动静分离等优点,但我们注意北部是一条消防连廊和墙体,北卧和厨房的采光和通风大打折扣。粉色和蓝色才是真正的通透户型。1到3层的户型还可能会有突出的墙体大厅,商业综合体,所以看房一定要看楼层平面图。这个售楼部都会有,但是部分置业碍于缺点不一定会主动提供给你。
8 小区规划图
可以看出楼栋分布位置

看到这幅图知道哪栋楼最好吗?
首先 1 2 3 4号楼临着快速路pass. 5 7 8号楼临街比较吵闹pass.10号楼西边的采光无遮挡相对不错,但是跟9号楼临着里边的辅路相对吵闹一些。再看看 我们发现6号楼位于中央比较僻静,与7号楼的距离还非常宽,通风采光都不错。所以楼王就是6号!,7号楼因为朝南楼间距大也相对不错。
还可以看出朝向和周边环境

看这幅图的指针我们就知道这个小区大部分楼是斜着,只有北边中间的几栋正北。东边是快速路需要规避,右边有个拆不掉的违建变电站最好远离。西边楼下面是商业体会比较吵闹等等。
以上结论只是分析户型好坏的一个思路,大部分的刚需房都无法全部满足。楼房的户型你可以把他想成开发商做了一个剪纸,只有越大的面积才能占据最好的户型,剩下剪完的边角料就是小户型。现在高层对于南北可以通透的户型基本都要超过120m了。所以简单粗暴无脑的方法就是能力范围内买最大的房子,户型设计往往更好。比如


点个赞,关注兵哥吧,让你装修不迷茫