超赞!loft复式户型设计,让你一见倾心!
上海美家美沪
2021-05-19
Loft似乎是一个时髦的概念,又似乎是个复古的追求。精致巧妙的空间搭配 上下双层复式结构 ,广受年轻人的喜爱。今天小美就为您介绍一个简约复式loft小家,每一处都呈现着屋主小夫妻的独特个性与魅力!一进门,与众不同来说,还有着浓浓的生活味道。

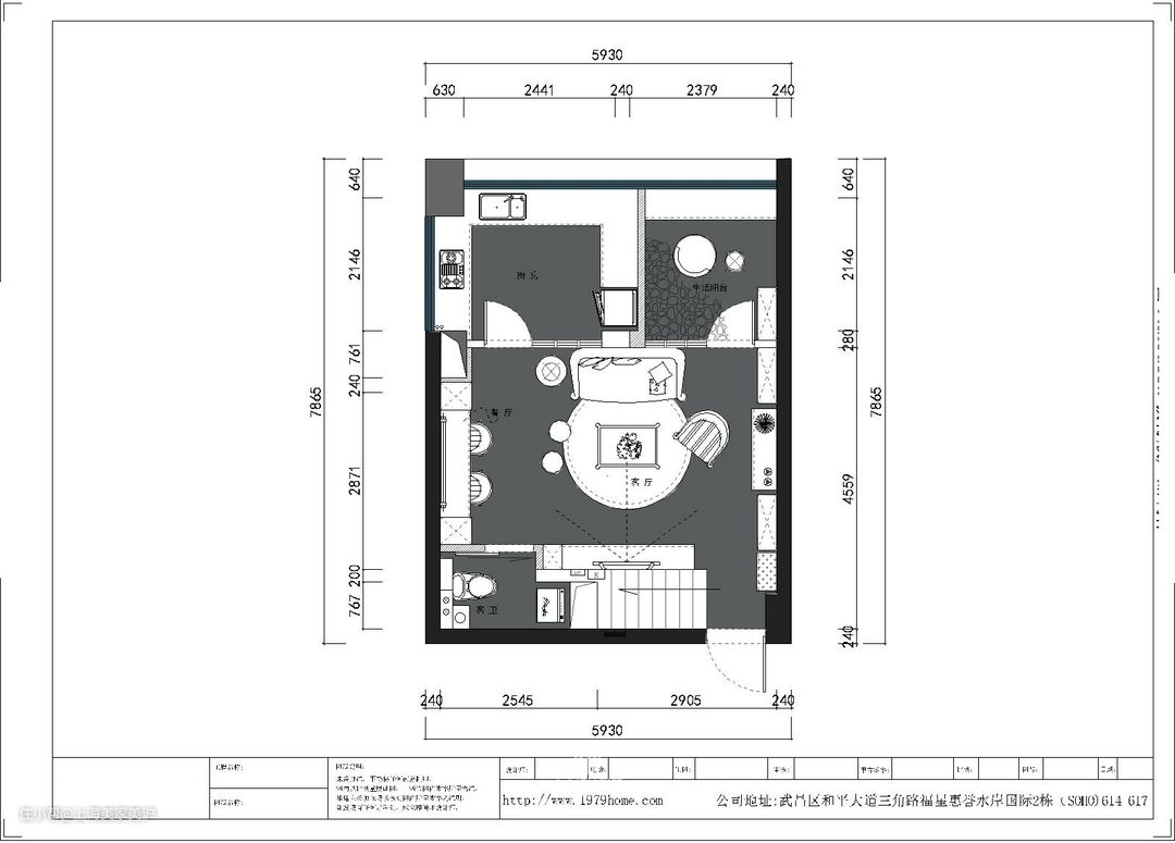
户型信息
风格:简约美式复古
户型:loft 上下2层,2室一厨两卫
面积:50㎡
一楼

——玄关
玄关面积较为狭窄,推门入内左侧便是通往2楼的楼梯。但即便如此,设计师还是进行了空间的最大化利用。利用承重墙空出来的位置,打造一整面玄关柜定制,节省空间之余,让入户进门也更为美观。玄关柜侧旁置入开放式鞋柜,让出入换鞋也异常方便。

玄关柜以左右对称式设计,米色木柜,菱形表纹,异常简雅。中间采用镂空设计,可以放置一些随身物品。业主在这里直接放置了自己常看的一些闲书,在起到一定装饰之余,也利于自己拿取。简直是一举两得。

玄关柜中间采用灰色乳胶漆,搭配正方形白框,配合剪纸拼贴装饰画,形成护墙板立体既视感。和深蓝色斗柜也是相得益彰,蓝色斗柜,颜值和功能双双在线,尤其是底下隔板镂空的设计,收纳能力也是max。完美的解决了业主夫妻小两口的收纳需求。

玄关柜近景特写,男业主喜欢收集一些老旧物件。这个地方正好展示业主夫妻俩人的心头宝物,台灯、打字机、音箱、复古收纳箱等等,颜值有了!

——客厅
电视机背景墙背靠楼梯墙,所在在设计上整体简约。白色电视柜搭配46寸电视机,同时在几张小巧装饰画下,一切都显得干净而简单。墙面上圆形时钟的悬挂,可以说是real复古了,完全就是小时候家里的必备摆设有木有!直叫人回忆过往老时光!

客厅区域整体面积有限,所以在设计上,保持美式简约格调。灰色双人布衣沙发,白色椭圆形茶几,方行沙发凳等等,虽然简简单单,但却是温馨典雅。

——餐厅
客餐厅一体化设计,餐厅位于客厅右侧,以吧台+方形定制柜+白色护墙板,打造完美就餐空间。设计原木吧台,搭配2把实木高脚凳,外加墙上的小纱幔,恍若在田园就餐,有种大自然的味道。左右2侧的定制餐厅柜也很好的解决了客餐厅的储物功能。上半身的开放式柜体既便于日常家用电器存放,也有一定的装饰性。

餐厅一侧特写,吧台、凳子的细节也淋漓尽致的呈现了出来,在自然光下,有种稳重的踏实感有木有!反正这一块设计对于小编而言,真的是太太太可了!

从玄关柜看向客餐厅,一切都是井然有序,各个空间功能一一呈现,一点也不觉得拥挤。尤其在客厅那一盏黄铜主灯的映射下,整体温温柔柔的,美好又复古!

——厨房
厨房以L型布局,洗菜区和烹饪区正好有序分开,夫妻俩人一起下厨也完全没问题。黑色地柜和吊柜,收纳满满不说,搭配灰色地面瓷砖,让厨房空间也更显精致。异常喜欢厨房内的那片落地窗玻璃,既能很好的呈现自然光,也利于一目了然的瞭望窗外美景,这设计,也太棒了!

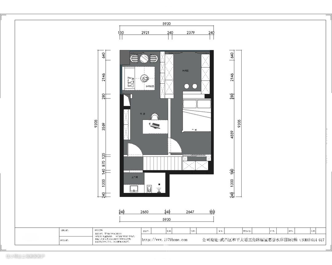
二楼

——卧室
卧室保持简约格调,木色床搭配深褐色毛毯,外加米色干净的墙面,十分有助于入眠。

——衣帽间
卧室背后还特别打造了一个衣帽间,回字型设计,收纳问题完全不用担心。不用于卧室原木地板,衣帽间改用和衣柜一样的浅灰色,让整个空间和谐统一之余,又十分的明亮。反正小美继餐厅之后,爱惨了这个角落。

——书房
书房兼具工作室。由于妻子职业为老师,所以家里各种图书极多。为此设计师特别定制了一整面书柜,承载了夫妻俩人满满的书。半开放式加玻璃设计,既能直观呈现夫妻俩人的图书,也利于寻找和存放。房间内再置入一张书桌,搭配随身办公用品,在家也能轻轻松松开展工作。

书房一侧特写,哇塞,满满的图书,像极了图书馆一角有木有!安安静静的氛围,也太适合办公啦!

——书房阳台
利用书房空间,借用白色窗帘额外打造了一个阳台空间。置入网红茶几三件套。闲暇时,和爱人或朋友在这里来个下午茶,或是看书聊天等,都是一种满满的生活仪式感。墙壁上的照片墙也是十分贴心,生动的呈现了夫妻俩人的幸福旅游时光!

好的装修不仅注重美观性与舒适度,更应在居家空间中带入屋主个人特色。你喜欢这个坐享舒适、惬意的loft复式小生活么?欢迎和小美一起交流哦~