深圳75㎡小两居,家庭影院+多功能书房,装出大宅气度!
爱空间整装万平体验店
2021-05-25
说在前面
今天和大家分享的是客户齐先生家的75㎡小两居,有别于其他小户型,这套居室打破了现代套房的固有装修模式,在很多方面做了大胆突破,效果非常好。这是齐先生和太太的第一套房,作为新青年,在生活追求方面,他们总有自己独特的想法,于是设计师结合其喜好与需求,在家装上做出了突破,最有特点的就是“一体化”开放式功能区的设计,让不大的空间,包含了更多的“内容”,却毫无紧凑感,在其他软硬装搭配上,也完美切合了屋主的意愿,不仅让空间上变得宽敞明亮,住起来更是方便舒适,客户的认可,是我们最大的追求。下面就一起来看看吧,希望大家能得到一些装修灵感。

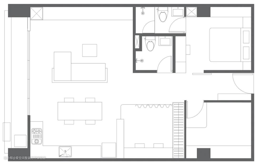
平面布局图
户型分析:房子比较方正,布局上也很规整,主体结构上没有改动,保留了原有的双卫生间设计,仅拆除了客、餐、厨之间的多余隔墙,增强了空间通透性,基于屋主对厨房的使用率不高,于是便划分出部分区域做了多功能书房,最大化利用了空间。
房屋信息:
面积:75㎡
户型:两室两厅两卫
常住人口:2人
风格:简约美式
装修成本:13万
客 厅

进入室内,目之所及皆是舒适的马卡龙淡雅白色调,深深将人陶醉,房子的面积不大,设计师巧妙地拆除了客、餐、厨之间的多余隔墙,视野更加流畅通透,L型布艺沙发搭配两张高矮不一的黑木方几,显得优雅大气。

地面整体采用意大利雾面地砖,方便日常的保洁工作,客厅墙体没有一贯使用乳胶漆,而是选用了细致的水磨石脉络贴砖,疏密有致的纹理,倍感时尚。

根据屋主的喜好与需求,没有做固有的电视机设施,而是改用投影幕布,可以随意升降,不需要时把幕布隐藏起来,客厅便转换成活动室或者休息室,高效合理地利用了空间,灯光轻柔地流泻在每个角落,温情满满。
餐 厨 区

餐厨一体的设计,对于平时很少烹饪的屋主来说,再适合不过了,既不会显得拥挤,又保证了家居互动性,偶尔动手做些简单的饮食,生活充满了乐趣。

厨房采用系统板材勾勒出L型的空间布局,把转角处的空间一并打上了橱柜,操作台面和壁面上采用的是雾面壁砖,不仅耐油污而且还好清洁。

侧面的隔断使用了系统板材+木作镂空置物架的设计,增强了空间通透性,双向的置物架不仅是隔墙,还可以放置一些厨房用具,下层空间则进行补充收纳,非常方便实用。
多 功 能 书 房

厨房旁的区域抬高木地坪做成多功能书房,安装了窗帘,灵活地开放或者遮掩,摆脱实体隔间的束缚,可以随性打造成阅读室、游戏电脑室、储物室等。

这个多功能空间平时多用做办公室,办公区台面采用了石英石,不仅经久耐用,而且还高雅细致,尽显屋主精致的生活态度。

书橱是全套定制的,以润白的系统板材打造吊柜和收纳柜,给这个小房间提供了充足的储物空间。
主 卧

穿过明亮的走廊,移步到主卧室门前,墙边做了开放格陈列柜,采用青海蓝玻璃为主材料,上面放上几个饰品小物件,赋予了过道几分艺术气息。

主卧给人的第一感觉是整洁、雅致。棕+白的色调,让整个空间显得简约大气。

床尾处是个一体式的办公桌设计,也可作为梳妆台使用,左侧特意定制了一个全身镜,让室内更加通透,办公桌旁边是主卫,床的另一侧是落地式衣柜,空间功能非常丰富,在合理的布局下,丝毫没有杂乱无章的感觉。
主 卫

打开雾面透光的玻璃门便是主卫,墙面均铺贴了意大利卡拉白大理石,自然的真石纹理个性十足,地面则选用了防滑地砖,提高了实用性,透明玻璃门将淋浴区划分开来,实现干湿分离,保证空间清爽洁净。
次 卧

次卧和主卧室相互遥望,内部的装修中规中矩,墙面上铺设了沉稳醇厚的木纹美耐板,没有过多花哨复杂的装饰,整个卧室呈现出协调统一的美感。
次 卫

与主卫的天然石材纹理贴砖不一样,客卫选用了比较简单素雅的白色瓷砖,铺满整个空间,与黑系的龙头花洒形成鲜明的对比,制造出跳跃的层次变化,经典耐看。