装修入住一年半,厨房实用电器万字真实分享
海绵菌
2021-05-28
前言:
在之前的文章中,海绵已经分享过了家里的卫浴,露台,厨房橱柜等等,本篇就来分享下厨房电器的选择和使用体验。厨房作为家中非常重要的空间,建议好好规划,同时选择合适自己的厨电,这样生活幸福感才会有极大的提升。
本篇会从:
1.冰箱
2.烤箱
3.垃圾处理器
4.洗碗机
5.烟灶
6.RO净水
7.微波炉
这几种电器入手,分享我的自用款使用体验,希望能给到各位有用的参考。本文篇幅较长,约1.1w字,建议收藏后慢慢阅读。
1.冰箱:
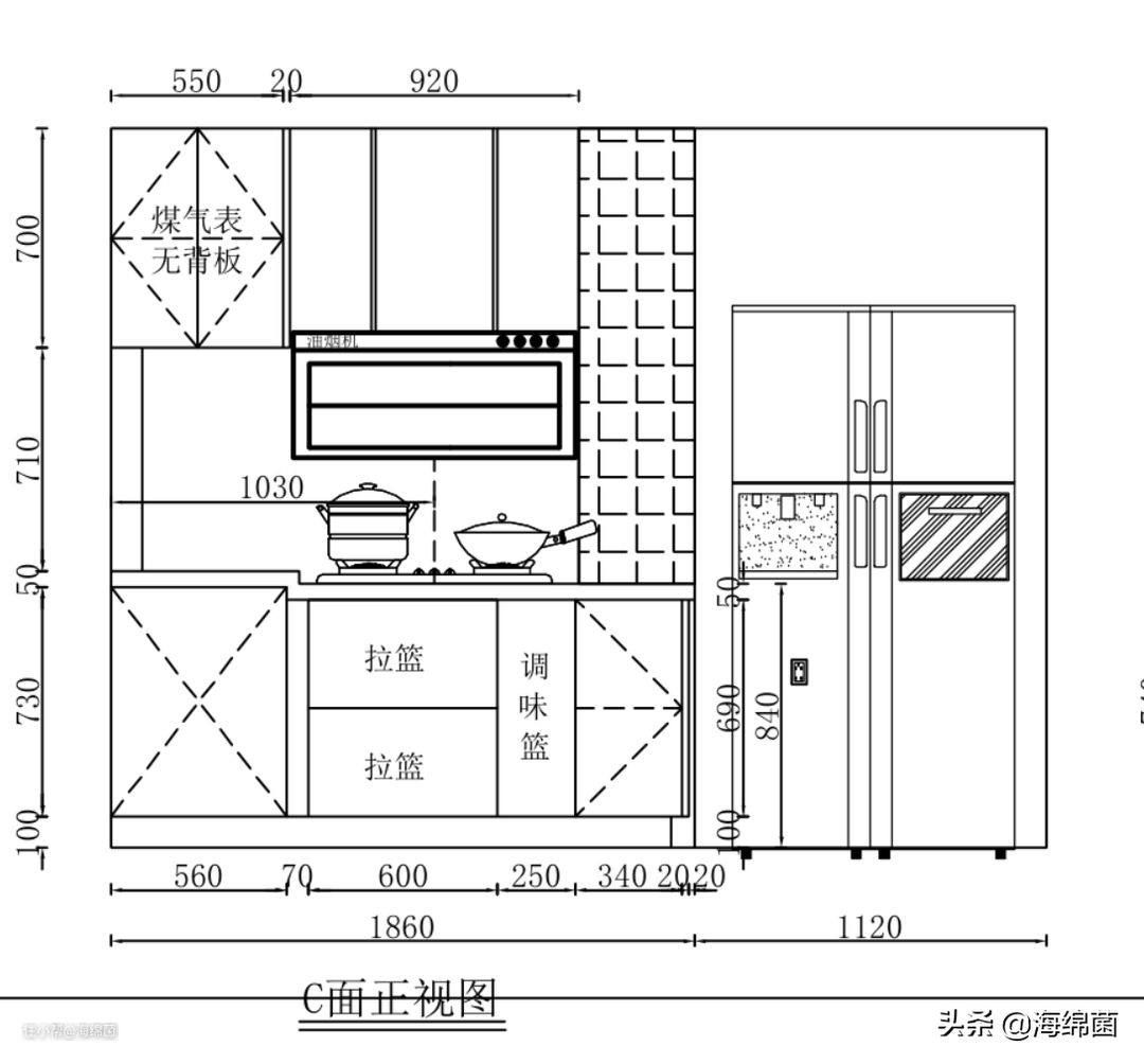
先来聊聊厨房的绝对大件:冰箱。就生活经验来说,冰箱能买大一点的尽量买大一点的,只要放得下,不管多大,你总能塞满的~相信我。不过当然也是要结合厨房的实际布局,下图是我的厨房一面的平面图,烟道的位置因为没法改动,所以旁边的位置就正好留给了冰箱,结合宽度和橱柜的深度,最后选择了西门子的502L的超薄款,型号是BCD-502W:

实际摆放效果如下,机器的颜值还是可以的,白色面板简单融入厨房环境,隐藏式门把手也挺美观的。冰箱的容量为502L。在双门冰箱里不算大的,变频压缩机,风冷无双,但最主要的还是看中了它纤薄的外观,因为厨房门正对冰箱,如果冰箱太厚重的话进门会很有压迫感。机器的高度为183.7cm,宽度为90.8cm,实际深度为63.6cm。

找到了一张刚装上的照片,没有冰箱贴的干扰,可以看到颜值还是非常清爽的。

换个角度看下,因为U型厨房考虑到中间的过道宽度,我这边的橱柜实际做的只有55cm的深度,放入冰箱后可以看到还是会有部分凸起,但已经完全在可接受范围内了。

比较常见的冷藏和冷冻左右分区的对开门设计,冷冻区域比较小,172L容量,请原谅我里面塞得乱七八糟的,但其实也没塞多少东西,这个容量的冷冻对于爱囤冷冻食品的家庭来说,其实挺捉襟见肘的,家里如果有其他空间的,可以考虑单独再入一个冷冻柜。

冷藏的稍大一点,容量为330L,我平时也就放放水果,鸡蛋调料什么的,因为饭餐都是当天清空的,所以冷藏其实很少有放满的时候,我倒是挺希望这款是左右对称设计的,这样冷冻区域可以大一点。

尽量选风冷:
现在选择冰箱的时候,尽量还是选择风冷的,风冷无霜是现在的主流制冷方式,在冰箱的冷藏和冷冻区域能找到下图这样横向的口子,这里就是冰箱的冷气出风口,摆放食物的时候记得尽量不要堵住了。

操控面板位于冷藏区的门板上,能看到只有调温等比较简单的功能,这款因为是基础款,所以没有去异味的功能,这点比较可惜。

我们可以自己放一个冰箱除味器,现在这种类型的产品挺多的,主要是利用臭氧杀菌祛味,这里就不具体推荐了,可根据喜好来选择。

冰箱能贴墙放吗?
这里分享一个摆放冰箱时需要注意的地方,如果你像我一样准备侧面靠墙摆放,那就要注意摆放时需要留出的最小间隔,避免影响开门继而影响冰箱使用。

因为冷藏区域一般都有抽屉设计,足够的间隔才能保证抽屉能顺利打开,我实测了下这款冰箱最小靠墙间隔需要6cm左右,这样开门后抽屉才能正常使用,当然不同的冰箱要求会不同,以实测为准。

不靠墙体的话,冰箱门开合角度一般都不会受影响,冰箱侧面与边柜保留2cm间距即可。

顺便推荐两个我觉得不错的磁吸附件,如果你和我一样是胶囊咖啡爱好者,这个磁吸的胶囊架很不错,不用每次开橱柜出门拿胶囊,也不用占用厨房台面摆放胶囊,直接冰箱上取就好了,相当方便。这款架子是3D打印的,马云家能找到,这里就不放链接了。

另外是这种磁吸的调料架和纸巾盒,空间充分利用,金属材质白色喷漆和冰箱也挺搭配。不过需要注意的,背后的磁铁本身牢固度没有问题,但磁吸片和架子本身是靠不粘胶粘连的,建议买来后用万能胶重新粘一下,我是不会告诉你某天早晨起来看到地面上撒了一地的胡椒面的感受的。

总结:
西门子经典款超薄简约冰箱,风冷无双,变频压缩机,功能相对基础但足够使用,颜值也挺高,实际使用下来除了没有自带除味功能,其他各方面都还不错,我一年多前是4699入手的,现在看活动价格还是这个,价格挺坚挺。另外同款配置还推出了玻璃门款式,基本功能上没什么差别,但颜值要高出不少,价格贵了1K多就看个人选择了。
2.烤箱:
关于买蒸烤箱还是买烤箱的问题,我还是坚持我的观点,建议选择蒸烤箱。蒸对于中国家庭来说简直太重要了,如果没有蒸烤箱那蒸锅就是必备的,做蒸菜还要占一个灶头,蒸锅收纳起来也不方便。有了蒸烤箱,随用随蒸,一次还能蒸好几个菜,出品更快,效率更高,难道不香么?
况且现在的蒸烤箱在蒸汽浓度和使用体验上完全没有问题,蒸鱼,蒸海鲜,蒸肉,蒸包子都OK,所以如果厨房要选择烤箱,请一定选择蒸烤箱。

我厨房刚装修好的第一台蒸烤箱是凯度的,从下图可以看到,其他的厨房电器都还没装,橱柜刚装好,烤箱是第一个就位的,这台型号是SR60TD,也是当年的旗舰款。

现在用的这台是凯度SR60TDpro,是原来旗舰机型的升级款,容量外观上没什么明显的变化,但内部做了升级,更专业,也更适合对于烤箱烘焙要求比较高的人使用。

烤箱整体采用了黑晶玻璃外观,现代感比较强,把手是金属材质的,手感挺好。烤箱门采用了三层钢化玻璃,中空设计,隔热和保护性都没有问题。

外置大容量水箱,点触面板上的水箱按键,面板会自动开启,抽出水箱就可以加水。外置水箱的好处是在烹饪中途需要加水的话,不用打开烤箱门,自然不会造成烤箱内部的热量和蒸汽的流失了。

同时60TDpro在内腔材质上也做了一定的升级,不锈钢背板升级成了陶瓷背板,其余的部分依旧是304不锈钢的。
我们在烤肉或者其他富含油脂的食物时,高温下油花容易溅出,很容易弄脏背板,而平时清洁的时候因为背板比较靠里面擦起来也不是那么容易,换成陶瓷背板之后就好多了。高温蒸汽模式下顽固油污也能自然溶解,之后轻轻一擦背板就干净了。

60L的内部容量是适合大多数家庭的选择,单层烹饪时空间充足,烤鸡,烤羊腿这种大菜都没有问题,下图是一个标准的吐司面包模具,可以看到烤箱内部放置三个这样的模具是完全没有问题的,这样就能比较直观的了解空间大小了。同时60L内腔的高度也可以适应多层烘烤,做烘焙的时候可以提高出品的速度,还挺方便。

对冲式直喷蒸汽:
现在市面上的蒸烤箱产生蒸汽的模式大体为两种,一种是底部蒸发盘,另一个种是直喷蒸汽,前者技术比较老旧,通过把水集中到底盘上之后再加热沸腾产生蒸汽。后者则是从上方的蒸汽口直接喷射出蒸汽,蒸汽直接覆盖到食物表面。
直喷式蒸汽也有单喷和双喷之分,凯度的这款烤箱是双喷设计的,下图打红圈处就是两个蒸汽出口,对称位置的对冲式蒸汽,能让蒸烤箱里快速产生蒸汽,

个人使用体验下来,直喷式蒸汽蒸出来的海鲜或者鱼的口感更加鲜嫩些:

蒸好菜后可以用机器的一键烘干功能,烘干效果还是不错的,机器会智能控制烘干时间,程序完成后内胆的部分没有残留积水全干了,如果有污渍残留只要擦一下就干净了,不过拉门下面的蓄水槽中会有一点点积水,这个随手擦掉倒也不麻烦。

双热风:
凯度SR60TDpro这款机器最大的特色是升级了双热风,所以在内腔背板上可以看到有两个风扇,风扇的背后也是有加热管的。

且双热风采用了逆向设计,也就是两个风扇往相反的方向高速旋转,这样热风在烤箱内的对流会更加的彻底,同时让烤箱内的各个角落的温度都变得非常均衡,因为新增了PID算法,温控幅度更加的精准,温幅变化很小,菜品的成功率和上色度都更好。
尤其是使用中明显感觉到热效有了一定的提高,举个例子,平时需要烘烤40分钟的菜,现在只需要30分钟左右就能完成,出菜的效率更高了。所以我们在使用网上的各种方子烘焙的时候,可以在烘烤时间这里减少20%左右。

因为内腔整体温度均衡,所以使用的时候可以做到同层同温,甚至多层烘烤也完全不是问题。
举个例子,下图是我经常会做的燕麦椰蓉小饼干,用了即食燕麦,椰蓉,低粉和椰子油,还有适量的糖和海盐,具体的做法本篇就不分享了,毕竟不是美食文章,有机会再分享给各位。

这款饼干做起来很快,但烘烤起来比较费时间,因为这款饼干很薄,所以非常容易烘烤不均匀,一般的烤箱只能中间层单层烘烤,如果两层一起烤的话,下面还是白色的,上面就已经烤焦了。
但用这款烤箱就没有这个烦恼了,因为双热风的温度幅度变化小,且烤箱内各处的温控都比较均衡,所以可以放心的多层同烤。

只需要用烤一次的时间,就能得到多盘饼干,且我们可以看到饼干的上色和烤制程度基本是相同的,本来烤两盘饼干需要单独烤两次耗时45分钟,现在一次20分钟就能搞定了。

近距离看一下成品,少数饼干有一点点略深是因为压得比较薄的关系,因为这款手工饼干没有用模具,所以会有用量上和形状上的细微差异,出品我个人已经挺满意了。

另外这款机器终于加入了上下独立控温的功能,虽然在大多数烘焙场景下,只要烤箱内的温度稳定,且各个区域温度平均,是没有必要用上下独立温控的,但对于烘焙高手来说,上下独立温控可以实现更多的可能性,给食物带来更多口味上的层次和变化。
可以看到下图传统上下烤的图标上多了一个箭头,这就是上下独立温控的图标,我们可以分两步来分别设置上加热管和下加热管的温度,下图只是示范,如果要达到比较明显的上下不同温的烘烤效果,建议把温差拉得更大些。

可替代微波炉热饭菜:
蒸烤箱代替微波炉加热饭菜这点是完全没有问题的,尤其这款蒸烤箱有一键速热的功能,一键操作就能热好饭菜了。现在夏天菜凉一点吃也没什么大问题,但冬天吃凉菜可就不好受了,一键速热这功能在冬天用起来还是很香的。

操控面板上直接设置了一键速热键,点击之后,机器会进入5分钟的快速加热状态:

5分钟饭菜就热好了,可以看到因为蒸烤箱的烤盘足够大,一次3个菜两碗饭也没有问题,如果用微波炉加热的话,每个菜都要单独加热就麻烦多了。另外使用下来,我觉得蒸烤箱热饭菜的效果更好,毕竟有多组发热管从各个方向协同加热,比微波炉的热源来得更均匀,不会出现上面热底下凉的情况。
如果遇到需要加热肉类大菜,比如蹄髈,红烧肉这种,单纯的加热会让肉类变得干柴,这时候也可以选择纯蒸汽加热,口感更好也更健康。

总结:
现代家庭厨房还是建议入一个烘烤箱,比普通烤箱和消毒柜什么的有用多了,如果你喜欢做菜,那出菜的效率会大大提高。
凯度SR60TDpro这款蒸烤箱在实用性和专业性上的平衡性做得不错,双热风设计提高了烘焙效率和多层烘烤的效果,对冲式直喷蒸汽能应对家中蒸菜的需求,快速热菜和一键烘干功能也非常实用。对于家庭用户来说,基本就是一步到位的选择了。活动时5K不到的价格,还是挺值得入手的。
3.垃圾处理器:
装修厨房的第一时间就决定要装垃圾处理器了,这一年多的使用体验于我而言是相当幸福,切实地省了很多力气。我家在魔都,魔都垃圾分类管得紧,我想全国人民都是知道的。而且我家还在六楼没有电梯,垃圾房下楼后还要小走一段距离,如果每天下楼倒湿垃圾的话,简直心塞。
装了垃圾处理器之后,家里基本就没有湿垃圾了,干垃圾本身没啥异味,用垃圾袋装着,基本3天-5天下楼倒一次,简直不要太幸福。
我选的垃圾处理器是贝克巴斯的E70,算是相对比较主流的选择。机器个头实际看起来没有照片里那么大,一般家里的水槽下方都是可以安装的。

因为安装相对较为专业,建议还是让厂家的工作人员来操作,我当时装的时候换了一整套潜水艇的下水,管道装好看起来还挺复杂的,不过使用起来没啥问题。

下图是用了一年半以后的样子,可以看到管道里面有食物油渍附着,看起来还怪恶心的,因为我平时用起来不是特别讲究,做不到每次用完用热水和洗洁精去冲洗管道。但有一说一,这些残留对于使用问题不大,因为经常用也没有什么明显的反味问题,所以之后也就睁一只眼闭一只眼了。

先说优点,这款的马达是1HP的,采用750w的直流电机,处理器湿垃圾动力强劲,使用中除了自己的偶尔失误(后面会说到),用起来还是比较顺畅的。除了大骨等一些要单独作为干垃圾处理,其他的剩菜剩饭水果等等,都可以一股脑地倒入处理。
从下水管道可以观察到清理出的残渣相当细碎,一般的楼房下水管道没有什么压力。但如果所居住的楼房年代比较久远了,下水道还是没有改造过的铁管之类的,个人还是不建议安装。

垃圾处理器的开关一般分为两种,一种是无线开关,一种是空气开关。这款采用的是无线开关,不用台面钻孔,找个方便且相对隐蔽的地方黏贴上即可,我是装在了水槽上方的吊柜的侧面,这样孩子和宠物都不会误触,相对更加安全。

双槽安装要注意什么?
另外顺便说一点,我家水槽是双槽的,安装师傅垃圾处理器一般都安装在大槽下方,但我最后还是选择了安装在了小槽下方,使用起来没有任何问题,给各位参考下。

这样安装的原因是我的操作台在小槽的旁边,处理完食材之后脏东西直接往小槽里一推即可,设计台下盆也是考虑到这点,所以垃圾处理器一定更要装在这里才行,否则垃圾要越过小槽再扔到大槽里就很不方便。同时我的RO净水器也是需要放在左边的,所以安装时还是要仔细考虑自己的实际需求,也要结合水槽下方的空间规划,大小槽都是可以顺利安装的。

使用垃圾处理器可能会遇到什么问题?
堵塞:
堵塞一般是自己操作不当引起的,也就是处理了不该处理的东西,我自己使用过程中堵过两次。
第一次是玉米皮,也就是玉米外面表皮,很有韧性,处理的时候我也没有多想,直接就往里面塞了,结果水槽就开始返水了。所以要注意这类含有大量纤维有韧性的厨余,再举几个例子,比如笋壳,大量的花杆(比较粗的鲜花茎干)等等,各位可以举一反三。
第二次堵塞是家里来客人,吃瓜子的时候产生了大量的瓜子壳,以为能处理掉的,结果瓜子壳一泡水,纤维变得有韧性,然后又堵住了。。。这里就当给各位提个醒了,虽然垃圾处理器连排骨这种都能打碎,但大量的瓜子壳还是不要尝试了。
垃圾处理器堵塞的位置一般是下图打红圈处,这里有个单向的挡片,目的是防止下水道里的虫子回爬,我两次卡住的时候都是卡在这里。

解决方法:
教各位一个简单的处理方法:先把水槽的水盖盖上,然后放一水槽的水,拿掉盖子之后启动垃圾处理器,下方粉碎部件旋转过程中会产生旋涡,上方的水流会被快速吸入,靠压力一下子就会把堵塞的地方冲开,我两次都是这样解决的。各位不妨记录下这个方法以防日后会用到,如果这个法子还不行的话,那就要拆开下水了,这就是比较麻烦的大工程了。
还有一个问题是防溅盖的老化,防溅盖就是下水口上面的这一团橡胶保护,食材从这里塞进去,粉碎过程中的水也不会溅出来,下图是刚装上的时候,可以看到很新。

下图是用了一年多以后,可以看到有一定程度的老化,有时处理厨余垃圾塞的时候不注意,食材过大或者一用力顶到旁边,这个防溅盖还会掉落到机器里面,所以肉眼可见的有点老化和变形了,如果老化明显了,这个是要更换的,马云家可以找到,或者也可以咨询客服购买。

总结:
垃圾处理器是实实在在的提高幸福感和减负的厨房电器,已经或未来即将开展垃圾分类的城市朋友们值得拥有。
我选择的这款E70虽然不是最新款但足够满足日常家用需求,1HP马力动力强劲,无线开关操作方便,售后服务也不错。天猫店今年618貌似预售价格到手只要1999,翻看了下我的购买记录,入手的时候是2199,只能说早买早享受了。不过使用时还是要注意什么能处理,什么不能处理,万一真的堵住了会比较麻烦。
4.洗碗机:
新装修或者翻新厨房,装个洗碗机我觉得还是很有必要的。切配和洗碗向来都是厨房工作的大头,做菜本身是很有乐趣的,但准备和后续就有些磨人了,尤其是如果你喜欢做烘焙,就问你做完蛋糕之后收拾起来累不累人?家里有朋友来聚餐,大展厨艺的同时留下下图这些碗筷,就问你糟不糟心?当然这一切其实有一个洗碗机就可以轻松搞定了。

我刚装修的时候用的洗碗机是西门子的SJ235,清洗效果还可以,就是烘干稍微弱了点,如果洗完之后不及时开门或者忘了,第二天打开就会感觉有点异味。现在用的是海尔的EYW131286BKDU1,有自动开门功能,还有分区洗,目前用着还是比较满意的。

想必大家也注意到了我摆放洗碗机的方式比较特别,因为定做厨房橱柜的时候抬高了柜体,台面高88cm(为了切配和使用水槽轻松一点),使用台面的石英石直接把侧面一起给包掉了,实际效果还挺好看的。所以台面的下方就可以直接塞入独立式洗碗机了,一般的中式洗碗高度都没有问题,可能会有一点缝隙,然而看习惯就好了。

水电下水之类的直接装在侧面柜体就好了,机器就能尽可能推入台面下方与橱柜齐平。

这款机型采用了比较少见的晶彩屏设计,操作起来相对比较直观一些,同时对比实体按键,我更喜欢触控按键,如果遇到油污了,一擦就干净,不像实体按键那样容易藏污纳垢的。

同时13套的内腔容积还是非常能装的,下方有传统的筷笼设计,上方还有独立的筷架设计,每一根筷子都能分开摆放,冲洗得干干净净。

中式厨房重油餐具较多,为了提升清洁效果,这款机型采用了三层喷淋的清洁方案,增加了顶部喷淋臂。而传统洗碗机的顶部一般是喷淋头设计(可参考下图),喷淋臂的清洁效果显然是要优于喷淋头的,臂长优势和旋转冲洗把水流的覆盖面和覆盖角度都大大提升了。

分区洗解决少量餐具清洗烦恼:
另外分区洗这个功能是这款机型的亮点,也是我经常会使用的程序,要知道我们平时吃饭并不会产生那么多的脏餐具。尤其是对于1-3人的小家庭来说,早上几个杯子吃吃早餐,晚上可能就简单几个碗筷。如果点外卖的话,那餐具就更少了。所以有的时候就会纠结,这点碗到底要不要现在洗?这样洗一次是不是会有点浪费水电呢?

所以有时我们就会在水槽里面囤一些碗筷,但这样会有两个问题产生:
一是异味,不及时清洁的餐具会随着时间推移滋生细菌,细菌一多也就会产生异味的问题,尤其现在是夏天,可能餐具放一个晚上就臭了。
二是影响厨房使用:餐具堆积占了一个水槽,这样能用的水槽就少了一个,如果是单槽的话,那就更不方便了。而分区洗就解决了这个问题,我们可以选择只洗上层碗篮,或者只洗下层碗篮,等于把一个大容量的洗碗机给局部缩小了,带来的好处自然是显然易见,省水,节能,也节约时间。
下图左边为上层洗,右边为下层洗,普通杯子碗筷可以用上层洗,如果有锅具要洗的话就用下层洗,同时可以看到都有摆放筷子的地方,设计上还是考虑的比较周到的。

放两张对比图,都是用分区洗清洗后的效果,清洁能力倒是真的不用担心。


另外下图是同一清洁模式下的分区洗与全区洗的耗水量,可见节水还是非常明显的。

同时这款机器还有智能开门速干,以及高温微蒸汽洗的功能,这里就不进一步展开了,免得有强推的嫌疑。
洗碗耗材的话,我现在用的是水卫仕的洗碗粉套装,清洁体验不错且相比进口产品的价格来说又有一定的优势,味道清新,洗后无异味,杀菌,抑菌效果也不俗,顺便推荐一下:

总结:
洗碗机有条件的话还是装一个,你定会体会到它的好。海尔的这款在国货品牌中算是不错的,13套容量够用,独嵌两种安装方式可根据中式厨房来调节,高温微蒸汽针对中式重油污有更好的清洁效果,智能开门烘干很实用,烘干效率高也不闷碗,不会有异味。同时分区洗很好用,少量餐具也可以不用囤碗,即用即洗。
5.烟灶:
烟灶这块之前考虑过集成灶,但因为灶台位置旁边就是烟道,考虑到这部分台面的衔接以及整体的视觉效果,最后还是使用了传统灶台加油烟机的搭配。
品牌选择了浙江宁波的欧琳,欧琳的水槽做得很不错,烟灶这块虽然做得也很早,但名气感觉始终没有做响,其实它家的性价比和品质还不错。

灶台外观简洁大气,台嵌两用,灶台的材质个人还是更推荐玻璃面板,主要原因是好清洁打理。钢化玻璃加上防爆网和防爆膜的设计,能耐300℃的高温,正常使用一般是不会出问题的。

玻璃材质更易清洁:
黑色玻璃台面没有那么容易显脏,即便几天不擦其实也看不出什么油污,但还是建议养成良好的清洁习惯,每次做完菜之后顺手抹一下,这样油污不积累,清洁起来也方便。
厨房湿巾是清洁玻璃台面的好帮手,轻轻一抹就干干净净了,每次我都使用一张,先把灶台旁边的瓷砖抹一遍,再抹一下灶台就搞定了。

火力选择4.5KW及以上:
欧琳的灶台的天然气火力基本都是4.5KW-5KW的,能满足中式家庭的大火爆炒的需求,热效率均≥63%,符合国家一级能效。如果你家经常爆炒,建议直接上5KW大火力的,中式炒菜会更得心应手,当然相对价格会高一点点,一般使用4.5KW也可以了。
脱排油烟机同样也是黑晶面板的,也是一擦就干净,中间触控按键简单易用,大面板四维瞬吸,18m³/min大吸力,对付油烟没什么问题。

下方的一整条不锈钢储油杯,容量巨大,这样就不用频繁的处理油杯。有一点要吐槽的就是两边的照明灯亮度太低了,基本就是摆设。

脱排油烟机在安装的时候一般有两种选择,一种是像我这样直接上装饰罩,烟道的部分不包裹起来,还有一种是隐藏式安装,用上柜把管道包裹起来,当然这样成本会高些。两种方式如何选择看个人喜好,我觉得直接包装饰罩也挺好看。

另外安装油烟机的时候,油烟机与公共烟道的连接处一定要做好密封,现在的油烟机内部一般都自带止逆阀,所以饭点的时候公共烟道油烟倒灌也没什么影响,但如果连接处密封不严的话,油烟就有机可乘了,连接处一般是在下图的红圈位置,吊顶的上方,这样不影响美观,所以在安装油烟机的时候,最好有人在场,这个部分做到位了,后期基本就没有反味的问题了。

总结:
欧琳的烟灶套装性价比不错,一套在2K出头,能基本满足厨房的使用需求,面板建议选择防爆玻璃材质的方便清洁也兼顾了美观,火力大小建议选择4.5KW-5KW的,能满足中式爆炒的需求。如果不喜欢传统烟罩的,可以考虑集成灶,上方橱柜空间也能利用起来,集成灶做得比较好的品牌有火星人,亿田等等,建议线下看实机再选购。
6.RO净水:
反渗透净水器是家用饮水设备现阶段的首选,避免了自来水运送过程中可能产生的二次污染问题,在终端将水质一步净化,也避免了病从口入的隐患。
RO净水现在对于年轻人来说接受度和普及率还挺高的,我给爸妈家装了一个之后,他们尝试了水的口感以及直观看到了TDS笔显示出来的参数差异,没想到还是比较认可的。
RO净水器一般分为直出和桶装的额,建议还是选择直出设计的,一是没有储水桶节约水槽下方空间,二是没有二次污染的风险。
我家现在用的是佳尼特净热一体反渗透净水机 FA1,佳尼特是史密斯旗下的品牌,个人感觉走的是性价比路线,来安装的师傅也是穿的史密斯的工装。

这款机器因为有加热功能,所以安装起来略微复杂,建议还是让专业人员来安装,自己不要瞎折腾,可以看到主机和水泵是独立分开的,这款机器内部因为有热胆,所以把水泵的部分外移了,至于为什么不把热胆外移?当然是因为安全性了。

龙头的整体高度在27cm左右,长约17cm,比起传统的净水器的小龙头来说要大出不少。

热水即开即用:
龙头上能看到热水温度显示,以及三个按键,可以直接取用过滤好的冷水,也可以接热水。内部加热罐的容量是2L,过滤好的净水进入加热罐后烧开,随后保持在98℃,全程不与空气接触,没有二次污染的问题。2L开水用完之后机器会自动补水,再次自动烧开。

这台机器的制水速度是1.2L/分钟,比400g通量要大一点,实际测试下来也确实如此,接近600g通量的制水速度。烧汤什么的接水速度确实挺快,同时下图可以看到龙头高一点也是有好处的,直接放在台面上接水,平时直接用水杯,保温杯接水都没问题。

过滤效果没什么问题,我家一般自来水的TDS在150左右,过滤后稳定在15左右,净化后的水口感不错,当然要说水甜甜的,有回甘之类的我觉得就有点扯了,口感上就是很干净的水,没有奇怪的味道。机器的防TDS爬升控制得很好,任何时间接水喝,水质都保持在很高的水准。一夜醒来之后的第一杯水,经测试TDS也控制在平时的水平。对比之前的净水器,每次一觉醒来TDS都飙升到100多,每天都要先放个1分钟左右的水才能放心喝,“0陈水”设计就方便多了。

即出热水的设计在实际使用中还是很方便的,喝水泡茶之类的不说了,一人食的时候想煮个面条,直接接热水煮面就能节约不少烹饪的时间,2L的热水储存量一次放个600ml自然是没有问题的。

实事求是地讲,热水用完之后会有一个补水烧水的过程,如果你刚好遇到热水用完了,那就只能等一下,烧水过程中可以通过液晶屏实时地观察到即时温度,我算了下时间,2L水从常温到烧开,需要8分钟的时间,当然需要站着等的机会还是比较少的,你也可以在加热过程中实时接温水来喝,我一般就是这么做的。

另外这款机器并不能自己换芯,滤芯上有芯片锁,同时非官方渠道也买不到滤芯,所以只能通过扫描龙头上的二维码预约官方换芯,扫码注册机器后点击滤芯卡购买即可。
一级滤芯的价格是280元,相对市场上的同类产品是偏贵的,不过里面也包含了人工上门的服务成本,前两年只需要换第一级滤芯即可,第三年需要再加换RO膜,价格是700元,折算下来的滤芯成本是每年500元。使用体验确实不错,但后期使用成本也不便宜,这个就看个人的选择了。

总结:
RO净水器尽量选择直出的,400G通量或者以上为佳,能保证基本的使用体验。佳尼特FA1集成了净水和加热两大需求,不再需要烧水壶,饮水机这类小家电,单龙头双水温,冷水热水即开即用,省出了厨房台面的空间。3年长效RO膜,无需频繁更换,再加上A.O.史密斯出品,有良好的售后服务团队保障,确实是不错的选择,不过后期使用成本不低,可根据实际需求理性选择,好价基本在5K不到,喜欢的可以关注下。
7.微波炉:
前面说到了蒸烤箱能替代微波炉热饭菜,那为什么我们还要买微波炉呢,事实上这也是根据实际需求出发的,我个人每天早上都要喝一杯牛奶,冷藏的牛奶如何快速变温 ,无疑微波炉就是快速的工具,所以我家的微波炉基本就是用来热奶的,从下图可以看到内部完全没有油渍。

大品牌品控更可靠:
微波炉的选择上我还是更建议大品牌,品控和售后相对好一些,我现在用的是美的,型号PM2005,800W,20L的变频微波炉,主要看中颜值比较高,不需要光波,水波这些功能,只要简单的加热功能就OK了。

刚入住的时候也是因为颜值买了一个圈厨的微波炉,结果刚过一年保修期就坏了,也就是每天热热牛奶这样,这里点名批评一下,给大家排个雷。

美的这款操作面板比较简单,按键都搭配了中文标注,上方有10s,1分,5分钟的快速启动键,上手非常简单,10s我有时会用来快速解冻黄油,1分热热冰牛奶刚好,5分钟还从来没用过,因为都用蒸烤箱代替了。

内部是转盘结构的,比较复古,加热的时候装盘会转动,要食物受热更加均匀,当然市面上也有非转盘款的,清洁起来会更简单些。

安装的位置和各位分享下,我觉得吊装微波炉相对比较科学,上柜下方可以做一个类似我这样的开放格,或者用支架直接固定在墙面上也可以,这样可以省下厨房台面空间,做立体布局,其他的小家电就能顺利摆放了。当然省力点的也可以微波炉架子,就是美观度上没有那么好。

插座我是安排在了上方的橱柜里:

总结:
微波炉尽量挑选类似美的,格兰仕这样的大品牌,品控和售后会好一些。同时挑选的时候根据自己的实际需求,如果要热饭热菜利用率比较高的,可以挑选容量大一些的,同时内部好打理一些的。如果家里没有蒸烤箱之类的产品,也可以选择微烤一体机,偶尔烤一些蛋挞鸡翅也是比较方便的。
这款美的PM2005颜值是真的不错,最大800w火力,会在100-800w之间智能变频,三档快捷时间设置使用方便,算是比较安心的基础款微波炉选择。
最后简单总结一下各类家电的选购关注点:
--冰箱:大容量是前提,风冷无霜是首选,喜欢囤冷冻食品的建议多关注冷冻室的容量。
--烤箱:建议买蒸烤箱,容量能大则大,各品牌旗舰款一般不会错,内胆材质,外置水箱,蒸汽发生器,热风能力强不强都是选购的重点。
--垃圾处理器:推荐马力强劲的直流电机,虽然声音大点,但粉碎彻底。双槽安装根据实际情况决定安装位置。
--洗碗机:能上13套就上13套,选择碗篮布局符合中式需求的,烘干要给力。
--烟灶:油烟机排风量数据要关注,越大越好,灶台材质推荐防爆玻璃好清洁,同时4.5kW及以上火力更适合中式爆炒。
--RO净水:建议选择400g通量及以上无桶净水器,有热水使用更方便,同时需要关注耗材寿命和更换成本。
--微波炉:如果只有简单加热需求,选基础款即可,没必要选多功能款,同时认准大品牌,品控更放心。
我是海绵菌,觉得文章不错,记得点个赞再走,下次见~