溢出屏幕的时尚感,还有一只超大的积木熊“看家”!
珠海佳鸿装饰
2021-09-02
客户背景:
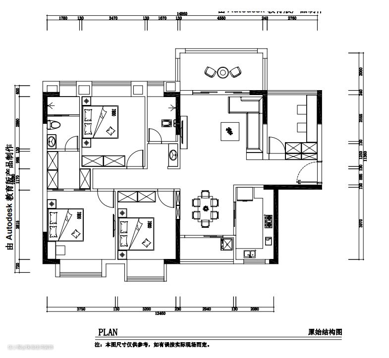
1、四房需求,主人房,长辈房,儿童房,书房
2、想要舒适的家庭工作环境
3、主卧想要一个衣帽间,卫生间干湿分离

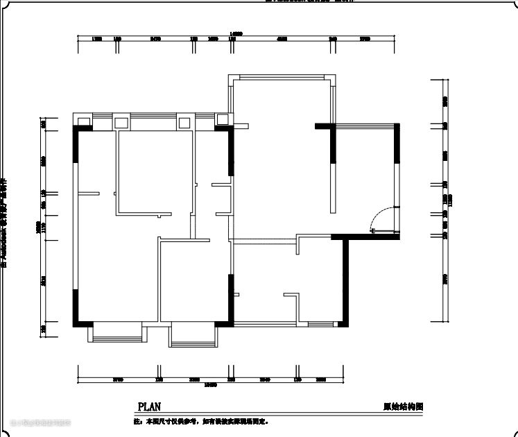
存在缺陷:
1、公共区域梁位较多
2、餐厅空间偏小
3、储存空间较少

改造后:
1、增加入户镶入式鞋柜,客餐厅做镶入式储物柜、酒柜,增加了活动空间,确保每一处面积都得到合理使用
2、采用无主灯设计,整体空间维度感更强,无压抑感觉
3、入户阳光房改造书房,明亮安静,区域划分更清晰
4、增设衣帽间,储物梳理空间独立
设计灵感:
现代人生活节奏快,面临着各种生活和工作压力,家必然是一个舒适的港湾。家里是卸下各自疲倦面具的归属,我们都渴望在家中找到一种温馨、自由自在、毫无拘束的感觉,让自己能从一个繁忙的工作,固定的生活环境解放出来。一个简约舒适的休息空间远胜狂野喧嚣释放压力来的彻底!
设计亮点:
采用线性灯,射灯设计,摒弃传统大灯想法,前卫时尚,空间感十足。
设计材料:
岩板、大理石、钛金条、线性灯等
客厅

▲丰富流畅的线条元素,黑框玻璃搭配浅棕色系窗幔,低调又不失格调。由客厅望向阳台,明亮的落地窗,洒落一地柔和的日光。

▲客厅的整体硬装偏精致大气,搭配绒面灰白沙发、格子布艺点缀,让整个空间更有质感。用护墙板的设计,层次一下马上就丰富了起来。环状的层叠壁灯让客厅的色调变得有趣,是画龙点睛的一笔。
过道

书房

▲设计师在书房的设计上选用开放式书柜搭配风格稳重的木质小方桌,营造自然与舒适感,既追求明亮开阔的工作环境以保持积极的情绪,同时又能有独立的区域划分进行思考和学习提升。
主卧

▲卧室采用钛金条进行装饰,奶灰与高级棕色的绒面床品,带来细腻触感,营造简洁优雅的空间。一侧推拉式衣橱十分方便,又似隐匿于墙内,美观而大方,满足屋主的储物需求。
长辈房

▲立体床头灯的暖黄灯光,为卧室带来充裕的光线与安谧的室内环境。墙面保持素色的简单感,以深色系床铺的沉稳迎接长辈的审美。床品的双色配搭,冲淡深色系的压抑,空间舒适轻盈!
儿童房

▲儿童房以粉色调为主,浅色背景墙与深灰色床头营造洁净舒适的氛围。定制小书桌方便学习,云朵造型床头灯与艺术字体挂画烘托出浪漫的气息。