绝了!96㎡堪比200㎡,小庭院比我家都精致
住范儿
2021-10-01
在喧嚣的城市生活中,拥有自己安静又舒适的落脚处,几乎是所有安家的人心之所向。
今天给大家分享的这个家,论风格,中式、日式、北欧风的都能看到;论实用性,全屋的柜体收纳都做到了极致;论舒适度,看过庭院的人都狂呼羡慕!
当然,房屋改造前,同样有这些头疼的问题:
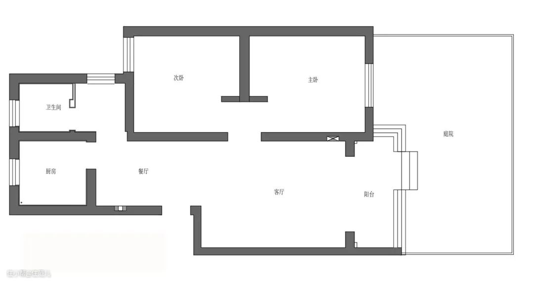
• 厨房空间有限,利用率比较低;
• 家里常住人口只有两人,次卧基本都闲置了;
• 原来104㎡的家里,一些大件家具需要重新布置到新家中,以家具的颜色和材质协调搭配。
▼改造前

因为房子是老小区的砖混结构,墙体基本不能改动,所以只能在固有格局上进行微调,从动线、收纳等实际使用细节上进行优化。
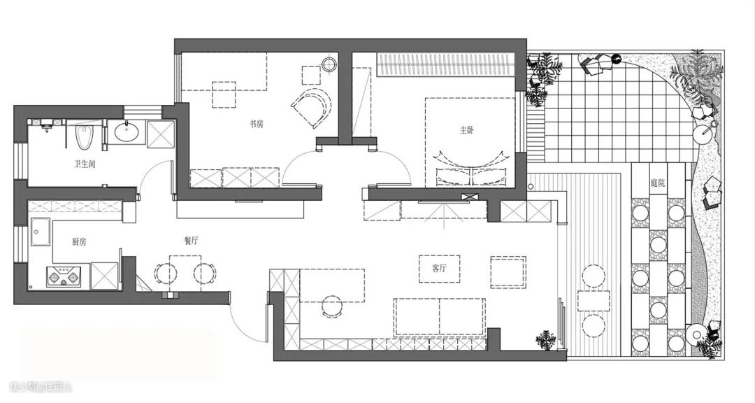
原来的阳台纳入客厅,核心活动区更加宽裕,也能布置出角落的办公区。
把厨房门洞的位置挪动一下,L型的厨房台面,就变成了U型,更方便收纳和日常使用。
▼改造后

屋主夫妻俩很喜欢旅行,在了解不同国家风土人情的同时,也会捎带回来一些玩偶手办纪念品;看过不一样的生活方式,更懂得生活就在自己的舒适习惯里。
所以两人两猫的家,既有北欧的中古家具,也有中式传统圈椅,还有让人印象深刻的日式庭院,共同组成了这个独一无二的“世外桃源”。
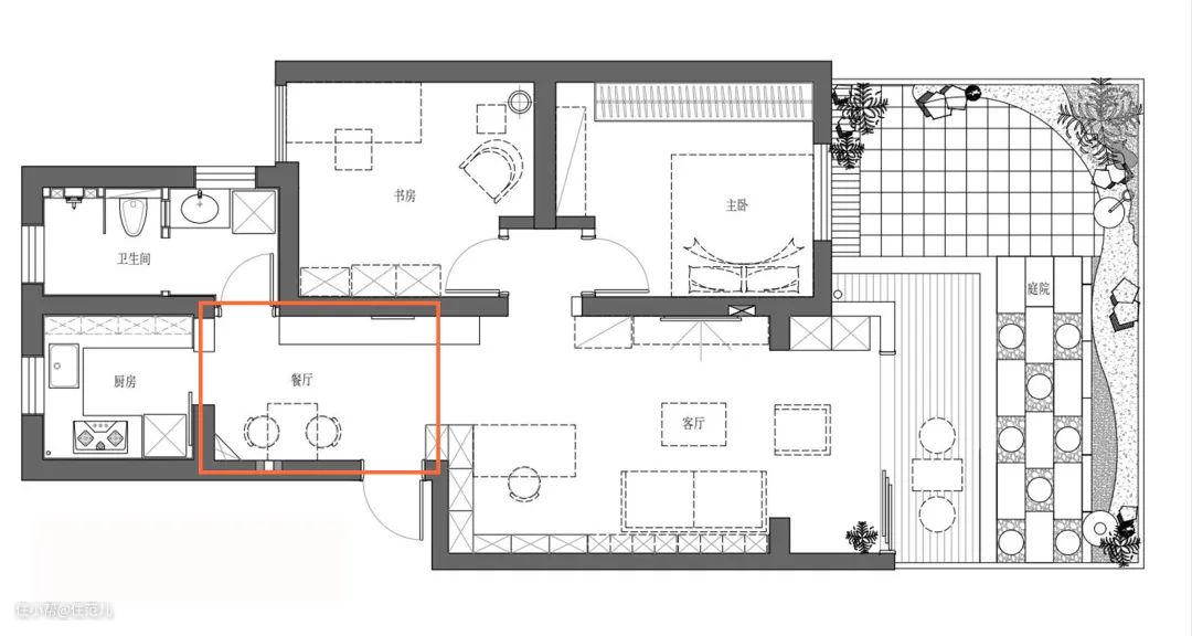
- 玄关+餐厅

玄关一角就能感受到完整的温馨木色氛围,入户门朝向室内的一面,特意装饰了符合室内整体风格的木条,悬挂着日式门松,寓意高洁长寿。
右边的通顶高柜是玄关的收纳主力,中间的开放格用来随手放包和钥匙等小物,下方悬空方便脱鞋换鞋。

和玄关紧密相连的左侧区域,是小方桌、大奖椅、索耐特椅和PH5吊灯组合成的餐区,墙面的软木板装饰,遮住丑丑的电表箱,也是增加节日氛围的必备好物。
折叠小餐桌足够两人日常使用,如果家里来了朋友,打开拉出之后容纳5~6人同时用餐完全没问题。

靠近厨房的转角没有浪费,用三角悬空收纳柜充当餐边柜,正正好好放下夫妻俩的藏酒;
悬空的设计,增加了小空间的视觉轻盈感,也不会在地面上留下任何清洁死角。

玄关和餐厅正对面,是书房的外侧墙面,同样用悬空柜体设计,串联起两个空间,作为“第二玄关”,随手放置大件杂物也很方便。
这两处的柜体,是屋主入住之后发现比想象中更实用的地方,小家电、零食和杂物都能放,逐渐成为家里的集中收纳区。

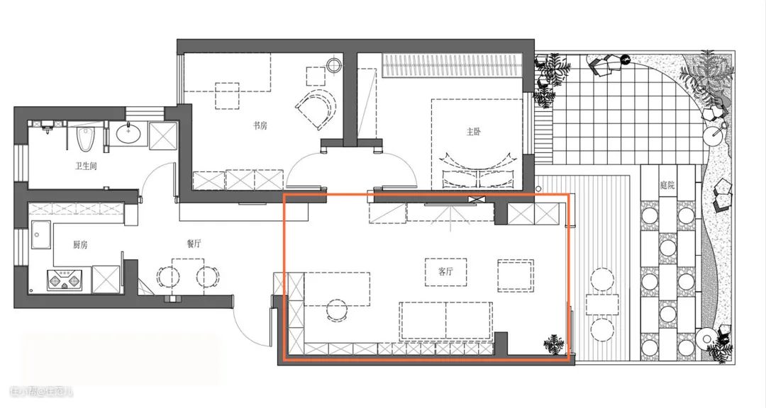
- 客厅

客厅最大的改动,是把原来的阳台融入了客厅区域,整个空间瞬间变得更加通透宽敞。
先考虑需求习惯,客厅是两人呆时间最长的核心娱乐区,看书、喝茶、聊天、看电视、撸猫,这些需求都必须要得到满足;

再拿自己喜爱的家具,搭配出独特的风格:中式圈椅、罗汉床和日式餐桌,统一的现代极简设计,在同一个空间,完全不违和。
电视旁边的餐边柜、茶桌、书架等大件家具,都是从原来的家里带过来的,重新安置在新家,保留那份温暖和回忆。


背靠着书墙,闲时随手翻阅细读,品上几壶好茶,舒适的下午时光~

除了自带的大件家具,家里的定制柜都是统一的白色通顶柜+无把手设计,经过设计师、施工方和商家多次沟通,精抠尺寸,确保了最后出来的效果严丝合缝。
阳台融入客厅,客厅的功能区整体往右移,左边角落正好预留出办公区域,作为建筑师的男主人,方便在家舒适工作。

L型的定制柜收纳着小两口收集的手办玩偶,书桌旁的开放格解放了桌面,杂物不会乱堆放,下方也贴心的预留了电脑主机的位置。


原来的阳台已经成为客厅的一份子,通顶柜收纳清洁物品,下方悬空好清洁又不显柜体笨重。

家务柜对面没有再安装柜体,特意留空用来撸猫休憩,等到夏季的傍晚或者初雪的季节,这里就成为最佳的观景区。
▼豹猫“来福”和英短渐层“阿nie”

▼从阳台往屋内看

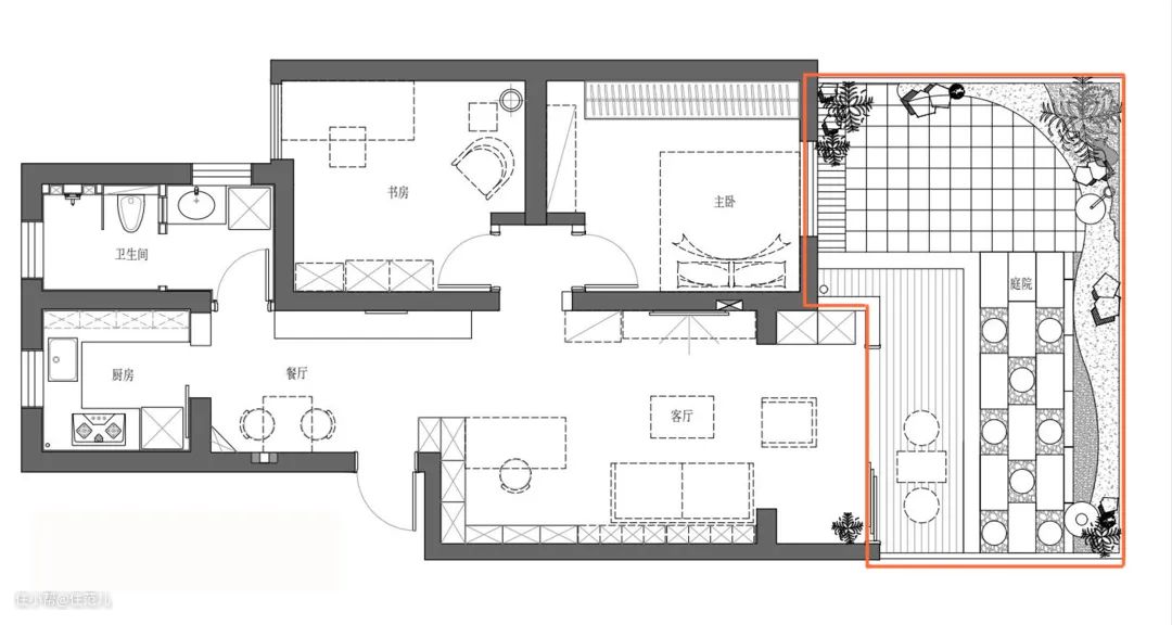
- 庭院

最流连往返的,是阳台外侧的日式庭院,用竹制的围挡圈出私人区域,向外看去,享受到的是城市生活中少有的醉人绿意。


三折玻璃推拉门,配备卷帘防盗门和遮雨棚,兼顾颜值和安全实用性。
铺设防腐木的地台延伸到整个庭院的二分之一,放上小矮桌和蒲团,不管是夏季纳凉,还是冬季备上烤火炉取暖,多种打开方式。


从地台的楼梯往下走,是青石铺成的小路,两侧的石灯笼和水钵,表面寄生着苔藓绿植,造型古朴自然,仿佛瞬间进入了宫崎骏动画中的世界。

到了傍晚,在庭院也能欣赏到绝美的落日晚霞风光,内嵌的灯光和灯带让光线不会太突兀,氛围感营造得满满当当。


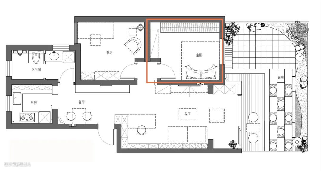
- 主卧

整面墙的衣柜设计在床的对面,进门左侧的凹槽区域,提前就计算好要摆放之前家里的收纳柜,用作女主人的梳妆台。

通顶衣柜不用担心落灰,柜门尽量缩短,就算打开,也不会发生撞到床边的情况。


- 书房

另一间次卧,直接改造成了更加安静私密的书房。
进门的凹槽就是读书角,从比利时收藏家手中辗转买下的手工地毯,和木色家具简直不要太相配!

北欧设计款的酋长椅和三层PH落地灯,大师的经典设计不管经历多长时间,都耐看不过时;屋主喜欢在这儿看书,家里的猫猫“来福”就喜欢在这里打盹。

书房放下大件家具之后,已经没有足够空间来安装落地的储物柜,于是用吊柜来增加储物,是不占地面面积的好办法。

女主人喜爱传统文化,闲时会练练书法和国画,所以书房准备宽大的桌案是必须的,笔墨纸砚都能整齐的摆放好,方便随时开始。



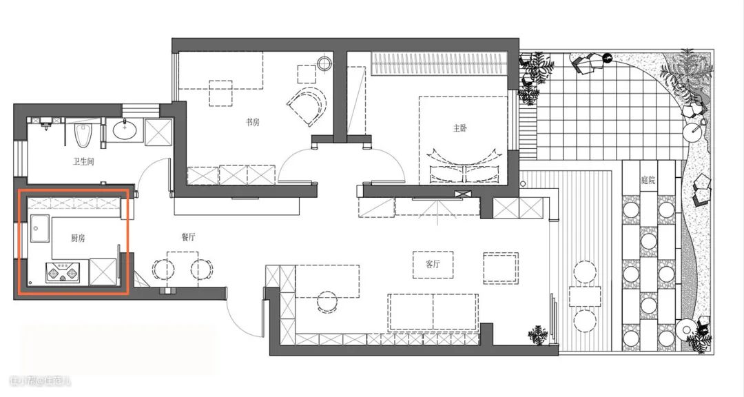
- 厨房

厨房最大的改动就是移动了门的位置,这步操作一是让厨房的台面更大,从原来的L型变成U型,提高利用率和增加储物空间;
二是让厨房和卫生间的入口,能隔开多一点距离。

橱柜和家里的定制柜一样,保持无把手的流畅设计;
吊柜下方增加开放格,常用的物品可以随手拿取,粘贴感应灯条,是让厨房更好用的小秘诀。

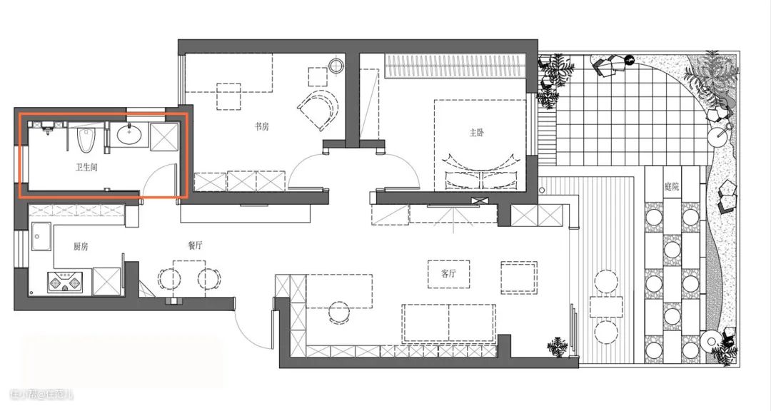
- 卫生间

悬空的浴室柜下方,正好放下两个猫砂盆;卫生间洗衣房、洗手池、马桶区和淋浴区一字排开,干湿分离。
每个功能区之间用玻璃隔断和镂空窗口分开,这样设计布局的好处,就是室内的通风和采光不受限制。

聊起改造完家里最喜欢的地方,首选的就是客厅了,虽然面积有限,但把阳台区域合并之后,换来的是更加舒适的办公区、娱乐区等等核心功能区。
其次就是庭院的设计,夸爆新建的地台,作为客厅和户外庭院的过渡,好好布置一番之后,让利用率提升了200%!
喜欢今天的案例,也别忘了关注我们,持续分享好看又好住的家~