【83㎡现代简约】生活宜简,卧室这样配色太出乎意料了!
珠海佳鸿装饰
2021-10-07


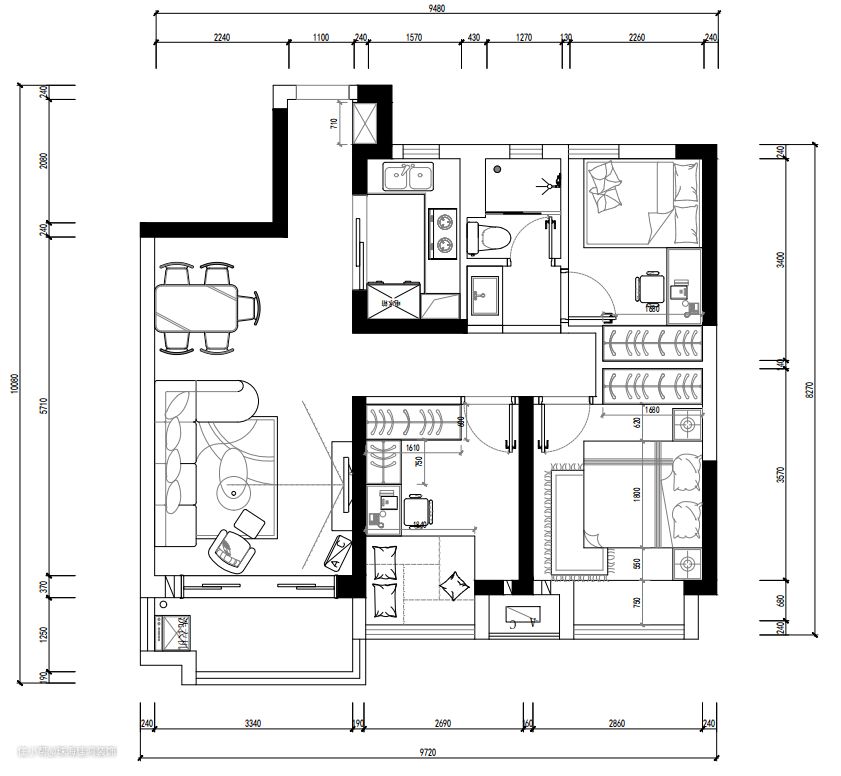
户型解析
存在缺陷:
1.次卧空间比较小,满足不了业主想要增加书桌,充当阅读区的需求
2.原始户型楼层不是很高,但是业主想要有设计感的天花设计
改造后:
1.拆除次卧的飘台,做一个榻榻米在窗旁,最大程度的增加空间的利用率
2.做边吊内置灯带,带来设计感的同时给予人温馨的感受
设计灵感
全屋没有过分的装饰,客户注重实用性,对设计比较喜欢现代的黑白灰色调的组合。在这个快节奏的时代,整体的空间给人一种慢生活的舒适感。整体的设计简约但不简单,以实用第一美观第二的原则营造出适合久居的现代简约生活风。
设计材料
枫木、不锈钢、岩板
PART.01——客厅


电视墙以爵士白的大理石加窄框线的设计,让简洁的空间优雅而大方。随性的沙发布置,呈现一种休闲轻松的生活氛围,圆茶几的摆设,更具有现代气质。
PART.02——餐厅

岩板餐桌与布艺坐垫的餐椅打造温馨的用餐空间,精致的餐具和尤加利叶的点缀,看得出来家人对餐厅的用心安排。一起用餐即是家人交流沟通的最好时候。
PART.03——主卧

主卧以雅白和高级灰奠定整体色调,棕褐色的床和窗帘与木纹地砖搭配起来,气质硬朗,不过分的点缀,让整体空间简约时尚,充满绅士感,安静沉稳的氛围呼之欲出。
PART.04——次卧

次卧深紫色+墨绿色,是家居的大胆配色。冷静与沉稳,遇上热情与活泼。
黑框玻璃窗带来了丰富的采光,同时相比单独的衣柜,一体式的书桌柜能够更合理的利用空间,而且看上去高端大气。
PART.05——儿童房

儿童房床卧+书桌+衣柜的布置,充分展示简洁,空间看起来更加的宽敞。以材质和功能去分化区域,并通过热爱的元素装点室内。莫兰迪的配色,让空间显得分外的温柔与舒适。