特别时尚的现代风格平层,这个客厅可太有感觉了
华浔品味装饰集团
2021-10-09
本期的业主是某时尚杂志的主编,家里有一儿一女两个孩子,业主特别重视孩子的教育,为了方便孩子上学,专门买了这套离重点学校很近的房子。今天我们将要分享的就是这套住房的装修设计方案。
由于业主本身的工作背景,让业主具备了比常人更敏感的审美能力。对于这套住房,业主希望我们能满足他挑剔的视觉享受,同时还能给家人精致的现代化生活,装修出一个集现代感、时尚感、艺术感于一身的居住空间。
基本信息
项目地址:广东省中山市
建筑形式:平层
装修风格:现代风格
不仅在视觉上,业主对生活品质也有很高的要求,在设计工作刚开始,业主就和我们的设计师提出了他的要求:
- 这套房的厨房要做成开放式的。
- 男孩女孩各预留一间独立的卧室。
- 整体设计要端庄典雅,要有艺术感。
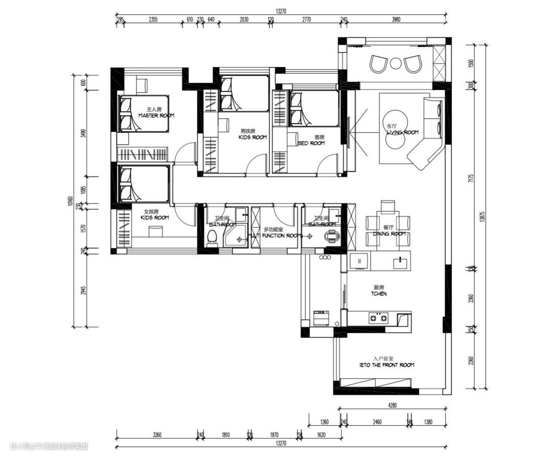
01户型图
通过沟通和实地测量,设计师完全掌握的这套住房的具体情况,并对房屋的平面布局进行了如下的设计:
- 入户门位置做门厅,增加房间层次,同时保证室内空间的私密性。
- 从门口到阳台依次分布着厨房、餐厅、客厅,这三个区域布置在同一个整体的空间中,显得房屋空间宽敞。
- 房屋左侧为休息区,右侧为起居功能区,两个区域划分明显,既能保证休息区的隐私,也能保证休息区足够安静。

02玄关

玄关处在入户门处,是这套房子留给人的第一印象。所以在这里,特意使用了灰色调的柜体,来向人展示清新雅致的空间整体格调。
侧边窗户使用整块的没有分隔框架的玻璃,特别通透,在这里外面的海天景色一览无余,仿佛在度假一般,给人轻松惬意的感受。
03客厅

客厅同样使用暗灰色调来展现空间优雅时尚的气息。电视背景墙使用花纹复杂的大理石拼接而成,自然形成的复杂花纹给客厅注入了华丽的气息,在灯光的映射下更显轻奢气质。
在家具的选择上,选用了深棕色的绒面布艺沙发,深棕色调稳重端庄,且更偏暖色,更容易平衡灰色调冰冷的感觉,让客厅气氛趋于温和。绒面材质更亲肤,更柔软,使用体验极佳,能给人更舒适更放松的享受。
04餐厅

餐厅相比于客厅,距离阳台窗户较远,没有强烈的自然采光。使用白色墙壁和灰色餐边柜进行组合,既让空间有时尚感,同时保证餐厅有足够的亮度,不至于让人感到沉闷。
餐厅的餐桌紧挨着开放式厨房的柜子,高度和地柜台面相当,桌面的材质上使用了同厨房台面颜色相近的白色大理石,让人产生一种餐桌是从柜子延伸过来的错觉。这让餐厅、厨房两个空间实现了无缝衔接,空间融合性极佳,设计感强烈,视觉感受更舒适。
05主卧

相比于客厅、餐厅等起居空间,卧室的设计更加关注休息睡眠这一主题。在主卧室,床头背景墙选用更暗的深灰色,暗沉的色调能给人静谧祥和心理感受,更有助于快速入睡。侧面的定制衣柜也沿用了同样的颜色,细节处理极佳,毫无过渡痕迹,视觉感受更顺滑。
衣柜采用通顶式设计,储存空间巨大,在柜子的中间部分,使用了玻璃门板,在这个位置存放业主常用的、应季的衣物,更方便搭配和选取。柜内内嵌暖色灯光,经过柜子隔板的散射,光线更柔和,增添了卧室温馨的气氛。
06男孩房

男孩房面积没有主卧室大,因此使用了更加紧凑的设计手法,床体设计在窗边,在门和床之间留出了一块空地,在视觉上感觉卧室面积更大。在床头旁边,特意定制了一组学习桌椅和书架,作为孩子的学习区域,在学习去左侧,是一排衣柜,可以存放孩子的衣物。
衣柜的下部室六只抽屉,可以存放书籍、文具等用品,弥补学习区面积有限的遗憾。另外,照顾到孩子的个人喜好,在卧室的软装设计上,使用了造型内容更卡通的挂画和小凳子,让卧室空间变得更有趣。
07女孩房

相比于男孩房和主卧室,女孩房的墙面和柜体都使用了白色,同时在床单、窗帘等软装配饰的选择上也都使用了更艳丽、饱和度更高的颜色,展现出女孩温婉、青春的气息。
房间在布局上大致和男孩房相近,不过依旧在局部进行了调整,扩大了学习区域的面积,顶部书架更大,可以存放更多书籍。最左侧的衣柜没有设计抽屉,这样无论长衣服、短衣服、还是各种裙子都可以存放,更适合衣服样式众多的女孩使用。
08客房

由于无法确定客人的喜好,客房的设计更加中规中矩,无论是色彩还是造型都沿用了房屋的主体风格。
在床与柜子之间做了一段顶部带有圆弧造型的短墙,在心理感受方面缩小了睡眠区域的面积,让人更有包裹感和安全感。
09卫生间

卫生间沿用了优雅的浅灰色调,在墙体和地面都选用了瓷砖作为铺装材质,防水效果更好,同时瓷砖表面光滑且易于打理的特点也给人干净卫生心理暗示。淋浴区的地面特意设计了多条横向的凹槽,防滑效果更好。
由于更贴近现代人的生活习惯,现代风格受到了大众的喜爱。而且现代风格由于造型相对简洁,更有时尚感,近年来经典装修案例层出不穷,越来越受到追求时尚的年轻人的追捧,如果您正好也非常注重空间的时尚感,那么相信现代风格一定是您装修的不二之选。