河北廊坊二层新中式合院
建房云图库
2021-10-13

建筑尺寸:面宽25米 进深10米
建筑面积:442.0㎡
户型概况:
2层 / 6室 3厅 6卫 1厨房 1储藏 4衣帽间 2储藏间 1棋牌室 2书房 2茶室 1早餐室 1佛堂 1花池 1廊道 2露台
平面设计

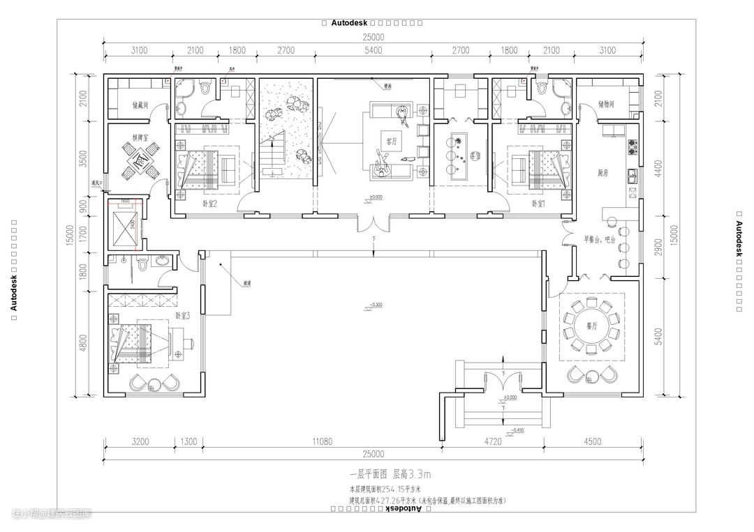
一层平面图
建筑由一间正房和东西两间厢房组成。东厢房为卧室,西厢房为餐厅;北面为正房,功能房间呈一字形排开,以客厅为中心左右对称布置卧室,最西侧为棋牌室和储藏间,最东侧为厨房和储藏间,厨房和餐厅经由早餐室过渡,正房和厢房间借由廊道加强联系。

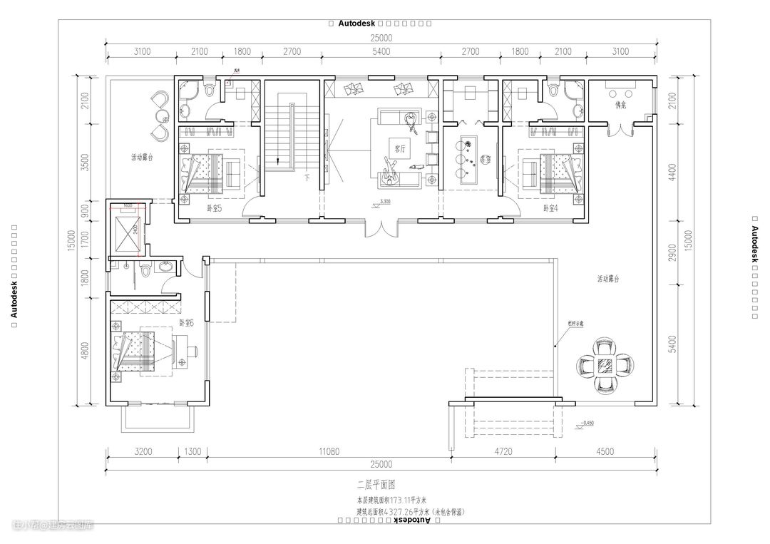
二层平面图
二层空间主要作为私密性较强的居家套间。整体布局仍以客厅为中心,配有衣帽间、卫生间的卧室套房,分布于两侧。独立设置佛堂于东北角,朝南变为超大露台,为佛堂提供清净之地。
造型设计

△南侧效果图
设计师对南北中式文化元素加以提炼,将北方典型的合院与南方典型的徽派建筑风格相融合,白墙灰瓦的整体配色,三段式的广亮大门,窗框、柱子、栏杆、大门,廊道等建筑构件无一不把中式韵味体现得淋漓尽致。

△西南侧效果图
建筑整体规整对称,由正房厢房围成内凹的院落。东西厢房与正房通过室外连廊连接,既方便了使用,又丰富了立面形态,彰显建筑风格。

△局部效果图

△局部效果图

△局部效果图

△庭院效果图

△庭院效果图

△局部效果图

△院门效果图