20年房龄的120㎡学区房改造,化身简约日式小住宅
苏州正森装饰
2021-10-20
这是一间20年的学区老房,业主装修这套房子主要是为了小孩上学期间陪读。原户型相对方正,但各空间面积比例失衡,北房空间相对局促。
如何利用好这间房屋的空间是我们为业主思考的最大命题,我们在保证基本机能空间的同时,还为这个四口之家创造出一个独立的储物间,满足日常的收纳需求。
项目信息:
地址:无锡 新华三村
户型:三室
面积:120㎡
预算:约40w
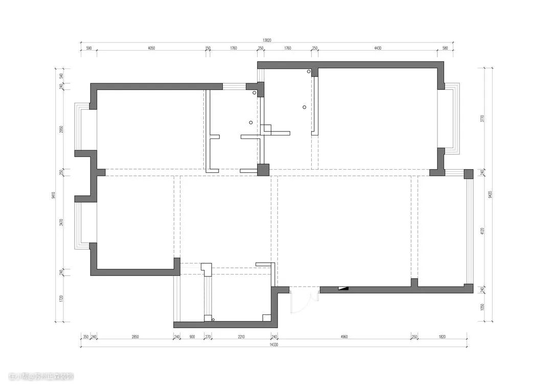
户型图

原始户型的缺点:
1.南阳台开间尺度较大,压缩了客厅的横向开间,使客厅的舒适度降低
2.入户没有独立的收纳空间,入户显得非常凌乱
3.厨房空间较小,因为北面的阳台压缩使得没有足够操作台面
4.北面2个房间的开间舒适度较低,尺寸问题导致床的尺寸不满足业主需要的1.5m床的尺寸
5.主卧动线比较绕,走道尺寸严重缩小了整屋的使用率
6.原始卫生间面积较大,空间的配比失衡

改造重点:
1.压缩厨房部门尺寸,增加了入户鞋柜的功能,使入户的体验不再凌乱
2.南阳台尺寸横向压缩,让客厅的开间得到释放,使得挤压出主卧的动线,并用隐形门的方式隐藏房门,使得木饰面背景更完整
3.北房的尺寸向走道借,使得2个房间开间变大后舒适度增加
4.设计出独立的储物间系统,可以堆放全屋的生活杂物
5.利用走道的尺寸和原墙体尺寸,增加主卧的衣帽柜收纳,让衣物有充分的摆放位置
玄 关

屋主日式风格,我们没有将空间打造成一个传统的日式住宅,而是取其自然的元素融入到空间之中。
悬挂结构的电视柜,在拖地时也非常方便,不会产生卫生死角。

电视背景兼具收纳功能,为小空间的打理提供了便利,藤编的躺椅让客厅更具舒适度。
由于空间层高不高,在顶部的处理上,我们最大化吊顶高度,使空间没有压抑感。

主卧门与木饰面融合,大面积的木色增加空间的温润感,进门如结合钢板挑面可以让业主平时添加一些装饰品和植物。增添些生活乐趣。

木饰面保持了空间的温润感,大面积的白色乳胶漆留白可以让空间保持对应的透气感,香格里拉帘的设计比纱帘更显质感增加了空间的光影趣味。

黑色的落地灯增加了客厅空间在晚上时刻的阅读功能,黑色的点缀让木色的质感更为凸显。同时落地灯温暖的色温也可以渲染客厅的角落,给人以安静温馨的直观感受。

棉麻编织地毯增加了空间的朴实感,内敛的空间情绪从中传递出来,选用了不锈钢腿的餐椅可以让餐厅更显精致和硬朗。
不锈钢配木色是比较讨巧的搭配。现在有很多清洗工具是专门针对地毯来使用的,非常便捷,所以在搭配空间软装时,地毯是一个非常好的选择。

藤编质感的休闲椅同样呼应了空间中的木色,椅子配了布艺的坐垫增加了舒适度,家具的对坐关系促进了在客厅的交流。

布艺沙发的质感增加客厅的轻松感,轻松的质感可以让客厅在自然光和木饰面的衬托下更有居家感。
在空间界面的处理上,我们对比各个面的比例与关系,利用材质来平衡尺度的美感。

钢板置物是我们经常用的设计手法,轻薄的体量使空间界面具有透气感,同时业主可以随时调整和改变置物的内容增加生活的乐趣。

家具由设计师依据空间统一把控,在尺寸、比例、材质上相互协调,营造温馨自然的居家氛围。

香格里拉帘更好地弱化南朝阳光的直射,让自然光感更显层次。

圆弧的柜体由全屋木作定制与设计师对接制作,我们仔细把控弧度与比例,让电视柜在空间中能呈现优美的弧度。
餐 厅

除了用木饰面增加空间的温润感,我们还用一些暖光灯带来增加空间的氛围。
钢板的安装需要提前预埋,在油漆工进场前就需把结构预埋好,这样收口处才不会有钢板的焊接痕迹。



餐厅台面与西厨水池根据餐厅的实际空间尺寸,设计出图定制成一体的结构,赋予了西厨和餐桌的整体功能。抽拉式龙头可以方便水池的清理和打扫。
餐厅结合吧台的构造,让餐桌兼具西厨操作台面的功能,中厨与餐厅的关系也非常紧密,便于日常就餐与整理。

硬装简化材质,增加体块关系,让家具和饰面有更好的融合感。由于原有梁位比较低,我们采用圆弧面来模糊梁的边界,使其更为轻盈。
卧 室

灰色艺术涂料的处理让卧室的墙面更显层次,皮具的卧室床盒,让简约的空间更显质感。
艺术涂料直接落地,简化了传统踢脚线的安装,让空间更干净利落。


保留原始飘窗的位置,利用飘窗深度设计成主卧阅读区,卧室的阅读区域保留出部分抽屉收纳功能和部分敞开的放书区域。

由于飘窗不能拆除,我们利用其深度,做了一组书桌与收纳柜,满足业主阅读办公的功能。
儿童房

利用悬空的书桌结构,内置钢结构处理,让小空间的书桌不再压抑和紧凑,书桌尺寸留出了亲子活动一起学习阅读的区域。
案例图文来自 设计师郭恒博