65㎡新家,她直接在客厅造个“太空舱”,完工后,又酷又有趣
拾色设计
2021-10-27
在空间设计中,虽说一切都要以实用为主,但随着每个人的生活方式不同,空间的功能性,也在慢慢改变。比如客厅,从最开始以活动、接待、视听功能为主,到现如今慢慢趋于多功能性定位了。
本期带来的这套案例也是如此,虽说户型只有65㎡,以及家里有四口人居住。但由于孩子在工作日会寄宿学校,男主会经常出差,所以对空间功能的需求率也并没有那么高。因此,在这种情况下,女主直接就舍弃客厅功能,并在客厅造个“太空舱”,从而为空间赋予了更多变化。
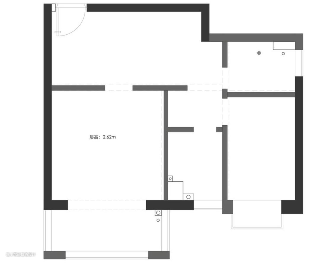
平面结构图

新房位于上海,两室一厅一厨一卫的格局,原户型最大的问题就是隔断较多,导致空间利用率不高,采光较差,以及缺少一个宽敞的活动区。而屋主对于新家的需求,则是希望能结合全家人的生活方式,最大化地将空间打开,从而打造出一个舒适且酷酷的新家。
平面方案图

结合屋主的需求,空间布局如下
1、在保留主卧和卫生间的前提下,将室内多余的墙体全部拆掉,最大化释放出空间。
2、入户对面增加玄关柜,让进门有一个缓冲区,并起到遮挡客厅的作用。
3、舍弃客厅的常规功能,并增加一个“太空舱”,延伸出多种功能性。
4、由于厨房的使用率不高,弱化厨房的存在,并以开放式设计。
5、餐桌居中摆放,让整个活动区以餐桌为中心,实现洄游动线。
玄关

进门对面增加玄关柜,在解决基本收纳需求的前提下,让入户动线也有了一个缓冲的区域。同时,该玄关柜还起到了遮挡客厅“太空舱”的作用。而一门到顶的柜体结构,也让顶面与地面的地板,有了一个呼应与衔接。
餐厅

玄关看向餐厅视角,相较于常见的温暖、明亮、精致、轻奢基调,屋主家则是以少见的暗黑风定位的,再通过大量的木饰面元素平衡,真的是又酷又有温度,丝毫感受不到暗黑风所带来的压抑。

岛台与餐桌居中摆放,让整个活动区都以餐桌为中心,实现了洄游动线。当然,该餐桌也不仅仅是为了解决日常用餐需求,它还兼具了办公、学习、阅读、接待等功能。

餐厅侧面设计一组储物功能柜,在提高收纳能力的情况下,还让冰箱实现了内嵌,从而让视觉表现更加工整、统一。而旁边的台盆柜设计,也自然地让卫生间实现了干湿分离的结构。同时,在后疫情时代,该台盆柜还方便了进出门洗手,使生活更加健康卫生。

当空间结构重新规划之后,卫生间与主卧,则采用玻璃隔断设计。这样一来,不仅起到了拓展空间的作用,也再一次保证了墙体的工整性。
厨房

由于屋主对厨房的需求率不高,所以在空间设计上,就弱化了厨房的存在。不过临窗处的一组橱柜,以及旁边的集成灶配置,也算是满足了基本的下厨需求。况且,餐桌旁的岛台也能提供一些收纳、操作空间。

客厅

放弃传统的客厅功能,并直接造一个“太空舱”,不仅满足了两个孩子周末回家的居住需求,也让整个睡眠区变得更有趣味性了。而在平时,这里既是一块强大的收纳区,也是女主的休闲区、瑜伽区。


阳台

阳台的布局比较常见,组合式的洗衣柜配置,既节省了空间,使用起来也会特别方便。
主卧室

拉开玻璃移门,就是主卧室,相较于室外的暗黑系,这里则是以灰白调来定位的,巧妙营造出了舒缓、自在、无负担的睡眠环境。

卫生间

卫生间的面积其实并不大,不过当外面有了台盆柜之后,内部也轻松实现了独立的淋浴间设计。同时,为了缓解多人早起梳洗时的尴尬,马桶旁边还是安装了一个迷你的立柱台盆。

整个案例看下来,除了色彩定位,让人有一点惊喜之外;空间的功能定位,也十分少见。尤其是在客厅利用“太空舱”,来代替传统的儿童房,更是兼具到了实用以及趣味性。当然,也正因为布局巧妙,所以空间感也十分不错,完全看不出这是一套仅65㎡的户型。
图源:夏天设计