120㎡北欧原木风方案:阳光温暖又不失格调,收纳也是亮点!
成都生活家装饰旗舰店
2021-11-04

- 风格:北欧原木风
- 面积:120㎡
- 城市:成都
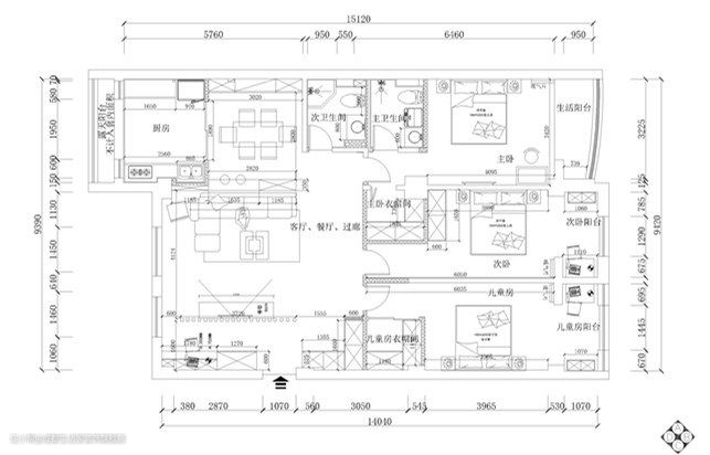
户型图

本案为三室两厅的户型,业主是一对80后夫妻,育有一子,家里老人每年夏天会飞过来住一两个月,帮忙照看放暑假的孙子。在设计时考虑到次卧的使用率较低,便将有单独衣帽间的卧室作为儿童房,主卧的衣帽间也得以保留。
玄关

原始户型并没有设置单独的玄关,在设计时便用间空的原木风电视背景墙作分区,隔而不断,保证空间的整体通透性。单独打造电视背景墙,保留客厅侧对落地窗的设计也保证了阳光得以充分的洒进室内。
客厅

客、餐厅之间采用间厅柜作为分区,同样是考虑到保持整体空间的通透,视觉上显得更加宽敞、明亮。
隔出来的玄关,则充分利用其空间,打造了开放式书房和穿鞋凳、收纳柜。
餐厅

客厅、餐厅、玄关、厨房皆以原木为主色,保证了风格上的协调性,让原木的温暖、自然属性进一步释放。
厨房
