30㎡小户型,客餐厨全都有,还有独立的狗狗房,1平米当2平米用
二十四城装饰成都总部
2021-11-07
在一线城市买房子不是一件容易的事情,很多人为了能在大城市更好的生活,会选择买一套小户型的房子过渡。今天给大家分享的这套案例就是一套30㎡的小户型房,这套房子的业主是一家“四口”。一个年轻的小姐姐@didi火腿妞妞和三只狗狗。房子虽然小,但客餐厅厨房一个都不少,还有单独的狗狗房,我们一起来看看吧!
房屋信息及设计说明

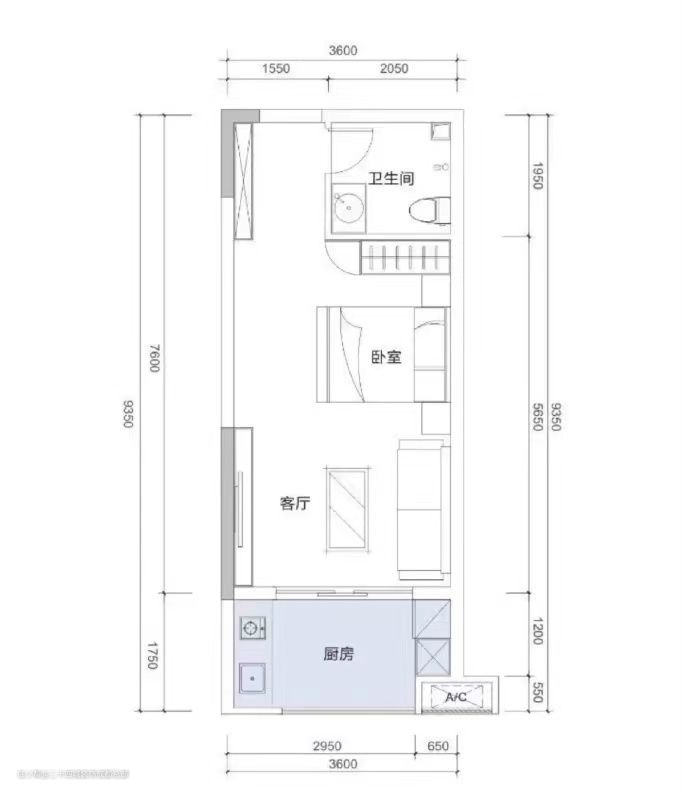
室内面积30㎡,是一厨一卫一厅一室的小公寓:
1. 玄关处的柜子从墙面直接拉通到卧室区域,把衣柜规划到了和鞋柜一面的墙上;
2. 卧室在高度上做了双层的分割,做成了上面卧室,下面狗狗房的设计,让女主和狗狗们都有自己独立的卧室;
3. 电视墙修改使用功能,用于摆放冰箱和斗柜,缓解厨房的空间压力;
4. 原本没有餐厅,卧室的占地面积变小后,挪出了一点空间做了个L型的吧台,重新规划出了一个餐厅;
5. 厨房重新规划成了U字型的摆放,把洗衣机和洗菜盆挪去了窗户边,让厨房更加的好用。
玄关


进门的右侧做了一整面墙的柜子,是鞋柜和衣柜的组合设计,门口的位置是鞋柜,鞋柜的中间做了镂空处理,可以摆放一些相框、小台灯等装饰鞋柜。往里是做的衣柜,没有做一门到顶,而是做的上短下长的分门设计,板门的设计搭配金色的拉手,简约大气又不缺细节感。
卫生间

进门的左侧到卫生间的推拉门还有一小段的距离,在网上淘了个袖珍的洗漱台和镜柜,小小的一套,看起来好可爱。虽然整体都不太大,但满足一个人日常的洗漱需求还是足够了。
卫生间没有任何的窗户,为了改善卫生间的采光,做了玻璃的推拉门,卫生间需要隐私性,所以用了磨砂玻璃,透光不透人,用在这里很合适。

卫生间内面积比较小,一个马桶,留个淋浴空间,面积基本上都用完了,就在墙面想办法,马桶侧面的墙上掏了个洞,做了壁龛,可以存放一些生活用品。
卧室

女主很喜欢狗狗,养了三只狗狗,她希望在房子装修设计的时候能考虑一个空间给狗狗也做个小房间,客厅厨房什么的肯定是不能考虑狗狗房的问题,唯一可以动心思的就是卧室了,但卧室的面积就在那里,平面上肯定是不能再做什么分割了,就在高度上做分割吧!

让木工师傅用木工板把床的位置在高度上分割成了两半,上面的空间是女主的卧室区域,下面的空间就是狗狗房了。



卧室的正面的隔断墙做到顶,满足卧室的隐私性,侧面做的开放设计,能更好的借厨房窗户照射的阳光,也能让空气更好的流通,开放面顶面加了上下拉的遮光帘,周末想睡懒觉又担心光线太强的时候,可以放下遮光帘,美美的睡个懒觉。

楼下就是狗狗们的房间了,相比之下,狗狗的自理能力肯定差许多,所以在墙面贴了白色的瓷砖,随便拿点白砖贴上,只是为了更好打理卫生。三个狗狗有了自己的房子,平时女主没在家的时候,让狗狗们回自己的房间去,避免了狗子们在家不受控制。
客厅

客厅和整个空间都是连在一起的,硬装上都是统一的木地板,大白墙加顶面的一圈石膏线。

沙发背景墙加了两个小隔板,可以陈设女主喜欢的玩偶,还可以放上一些装饰品,让墙面更加的丰富。白色的双人沙发,摆上各种各样的抱枕,让客厅看起来更加的温馨。

客厅的另一侧并没有做成电视墙,而是放的冰箱和柜子。一个人住也需要一个大大的冰箱,冰箱里塞满自己喜欢的各种食物,是件特别有幸福感的事情,但是对小户型来说,大冰箱的摆放就成了问题,直接摆客厅,既方便厨房拿取食材,也方便客厅拿饮料零食。旁边的斗柜里存放都是碗筷,厨房比较小,客厅可以为厨房分担一部分的储物压力。
厨房+餐厅+生活阳台

客厅往里的空间,做成了多个功能空间一体的设计,右侧一整排的橱柜,属于厨房区域,白色的橱柜和台面,让厨房看起来干净整洁。奶白色的油烟机,看起来很可爱。不过白色油烟机的清洁问题还是需要勤收拾的,但凡沾点油烟,它就不可爱了。对于喜欢煮饭又不能每天擦油烟机的朋友,还是不建议用白色的油烟机。

左侧做了个L型的桌子,既是个吧台又是女主的餐桌,侧面的桌面上还可以放烤箱、电饭煲、开水壶等厨房小家电,也能很好的分担厨房的摆放压力。顶面的吊柜可以存放酒杯和红酒等,拿酒倒酒坐下,小酌一杯,一气呵成,非常的方便。

窗户的位置是生活阳台区域,从左到右依次是洗菜盆、烘洗一体机和三层置物架,窗前洗菜光线更好,依次摆上烘洗一体机,把洗衣晾衣的问题解决了,再摆上一个置物架,锅碗瓢盆的有地方放了,完美。
(图片源于网络,如有侵权,联系删除)