越南狭长地块上的城市住宅:漏斗式的采光井获取阳光,舒适惬意
做建筑的老和尚
2021-11-23
城市住宅的用地紧张不论是对于公共建筑还是私人住宅建筑,都让使用者在满足使用需求的前提下纵向往上延伸,而对于狭长型的地块,往上延展的结果让内部空间的采光成为主要矛盾。更为准确地说,应该是建筑中间位置的采光问题,即便在城市中的住宅,往往面临左右两侧均是紧挨的建筑,它还是拥有前后两侧可以获取充足的阳光。而狭长型地块中的大进深,让它的中间位置会形成暗房间。如何解决这个问题呢?相对低矮的一两层体量的建筑,在中间置入一个中间庭院便可解决这一问题,而对于城市住宅为了满足功能需求往上延伸的现状,仅仅置入一个中间庭院,或许只能有限的从这个管道获得一点点的采光,如何让它的采光性能最大化才是问题的关键。今天小编就要给大家介绍一个越南的城市住宅,看它是如何巧妙地利用漏斗式的采光井解决这一问题,拥有一个舒适惬意的家居空间的。

建筑局部立面
该项目位于越南的城市地段上,典型的基地特征|:场地狭长,仅有一侧与城市道路相邻,两侧被邻居住宅紧紧挨着。这样的地块,确定了其建筑主入口的位置,自然地处在了临街一侧,与城市空间的交互,让人不得不注重临街一侧立面的打造,该建筑以一个醒目的红砖立面示人,并在立面上配置了诸多绿色植物,红配绿在这里并未让人产生不好的视觉观感,反而是粗糙的红砖将绿色植物景观凸显了出来。作为城市界面而存在的绿植,与城市空间发生了很友好的互动。

建筑外观

街道看向建筑

建筑外观

内部光影

楼梯
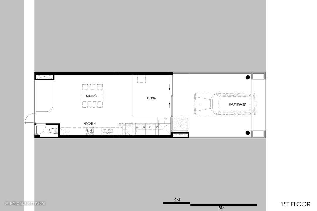
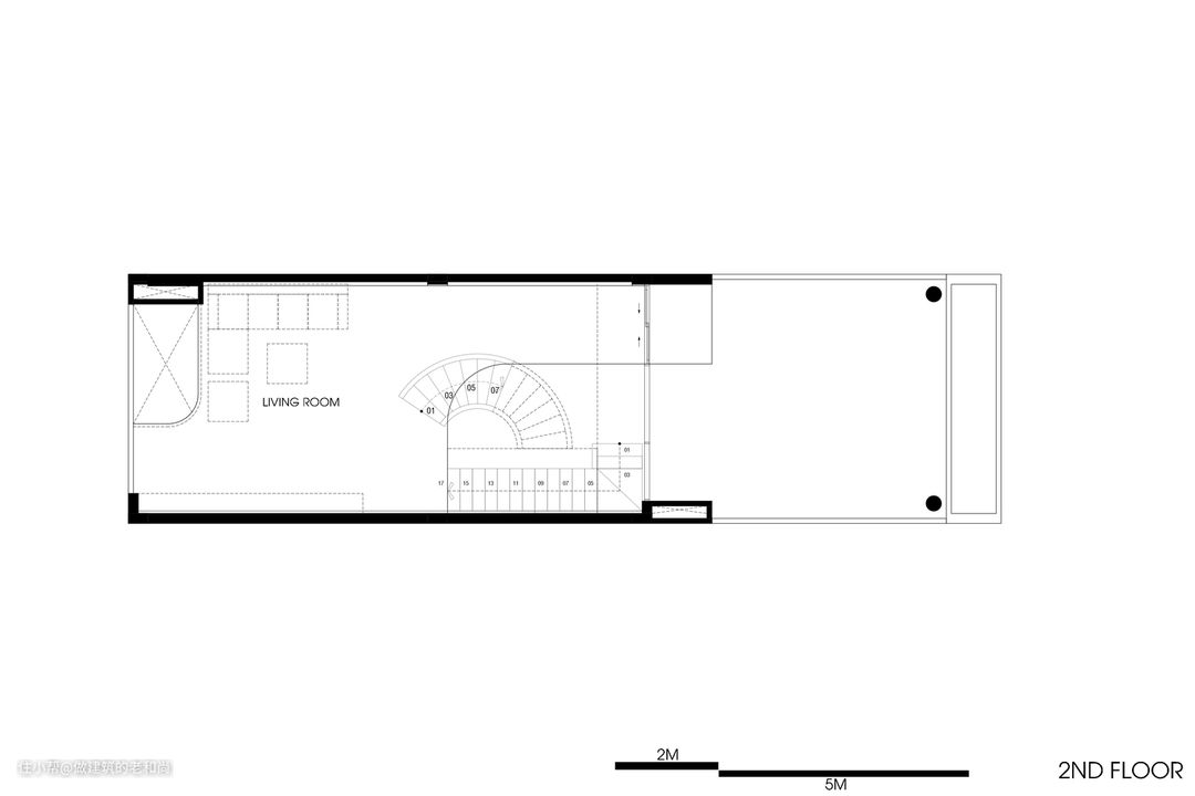
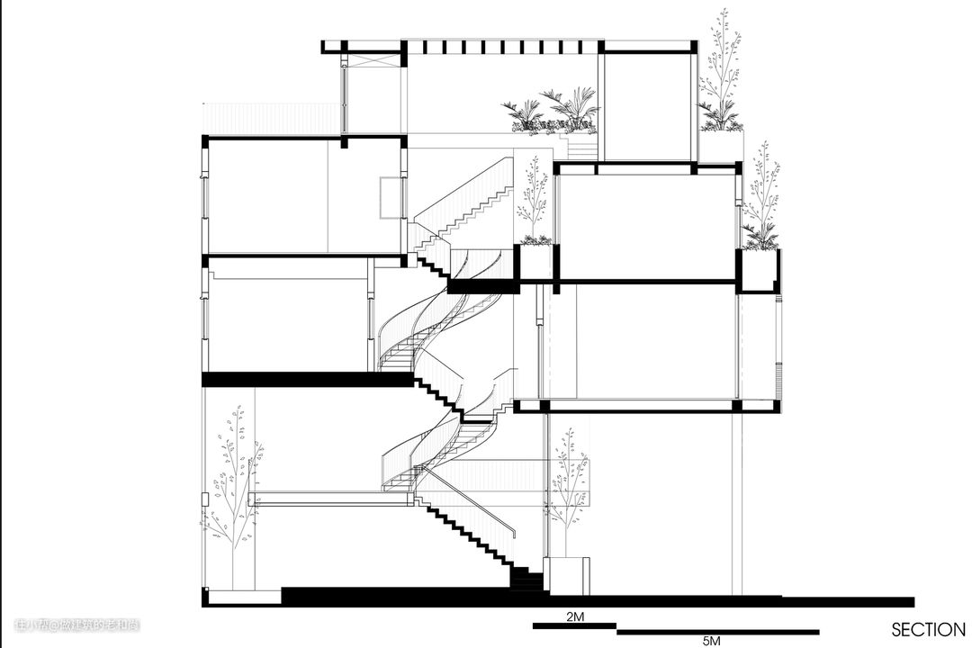
进深方向的狭长或许让中间部分的采光成为问题,但是将建筑作为一个整体的体块考虑,狭长让建筑可以有效地分成三个部分,前中后三个体量。中间难以利用的区域被自然地划分到交通空间及采光井的范畴内,前后则是放置不同的功能空间。不仅从纵向上将各个功能自然的分隔,由于开间的狭窄,为了保障最大的采光面,更是在竖向上将动静功能区进行有效的分区。

连廊与采光天窗

楼梯

仰视采光天窗

楼梯
底部的两层空间作为主要的生活公共空间使用,首层空间临近街道的一侧退让出一个庭院兼停车库的位置,并通过该位置的悬挑,让两层空间形成一个通高的区域。这样可以让位于二层空间的客厅,与一层空间的厨房和餐厅都能获取自然采光。而中间位置的采光井,不仅成为贯穿上下层空间的楼梯的位置,并通过一个漏斗式的退让,从下往上拥有更大的采光面,让更多的阳光进入该区域。

楼梯

入口庭院看向建筑

厨房与餐厅

弧形楼梯

入口庭院看向建筑
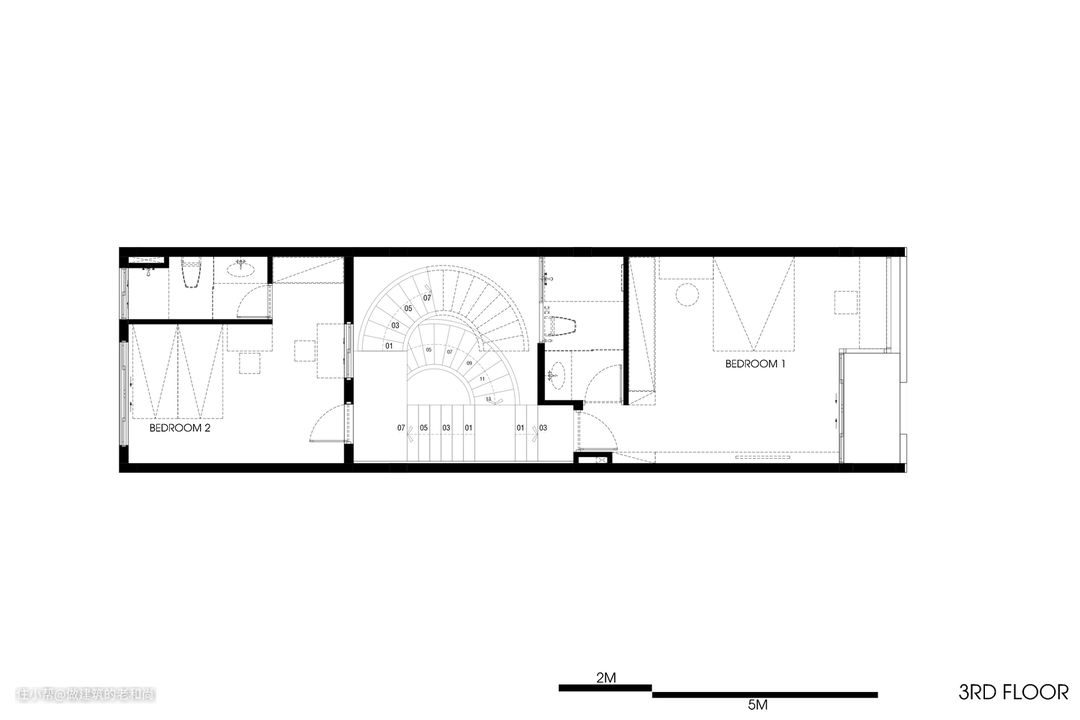
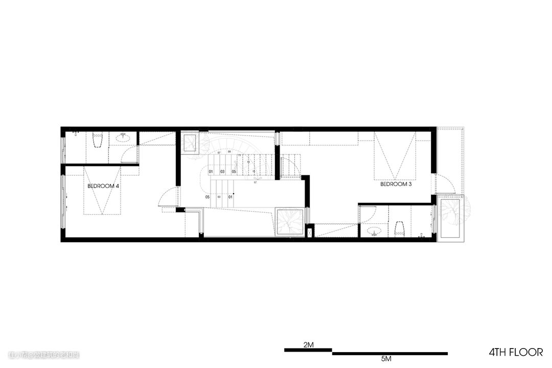
上层的三四层空间则是作为私密性较强的卧室区域,每层都有两个卧室,每个卧室都配备了独立的卫生间,让每个家庭成员都能拥有自己的专属独立空间。第五层空间则是一个工作室和洗衣房,洗衣房位于建筑的后半部分,与一个屋顶露台相连,两个空间通过一条空中连廊联系。

概念生成分析图

一层平面图

二层平面图

三层平面图

四层平面图

五层平面图

屋顶平面图

剖面图
中间位置的漏斗式采光井,同样也被运用在了建筑临街一侧的立面上,往内逐渐退让的立面,让建筑与城市空间的关系变得更加缓和,而不是生硬的交接。像这种典型的城市住宅,整个设计过程就像是解一道数学题一样,通过分析痛点,解决问题产生合理的方案,最终打造出一个舒适惬意的家居空间,这对于我们很多有类似地块的待建住宅,有着极其强的借鉴意义。
像这样的城市住宅,你喜欢吗?在评论区给我留言,告诉我你最真实的想法!
项目信息
建筑设计: Hinzstudio
面积: 400 ㎡
项目年份: 2019
摄影师: c Ng
设计团队:Phan Vn Trn Tun, Hà Huy Thch, Trnh Quang Giáp