小户型打造成现代风格,79㎡小两居演绎出时尚美感!
天津力天装饰
2021-11-27
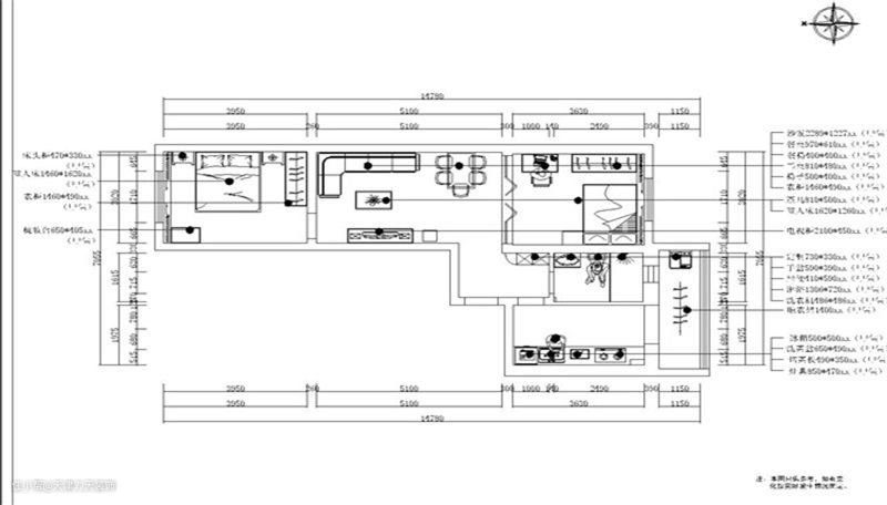
本案小区:盛海公寓
本案户型:两室一厅一厨一卫
本案面积:79㎡
本案风格:现代
设计说明:本案为盛海公寓两室一厅一厨一卫79㎡户型,本方案中的采光还是很不错的,很多程度的实现了空间最大利用率,拆改的部分很少,由于是小户型,需要考虑的细节有很多,再加上业主不想要装得太复杂,一切以简洁为主,又要时尚感,因此阳光力天装饰公司的设计师打造了全屋的现代风,今天我们就一起来欣赏这套79㎡现代风小户型效果图。

1.客厅:家具选用的暖色和灰色为主调,造型简单大方,外观和用料仍保持环保的理念,从整体视觉上看,非常的干净亮堂。


2.餐厅:与客厅相连,因为整个空间不是很大,所以一分为二之后,餐厅的面积明显小了很多,所以为了扩大餐厅的使用率,采用了四人餐桌,给聚会带来方便,而且为了与客厅分隔开,还专门设计了镂空屏风,增加隐私性,为一家人的就餐与生活增加光彩,有益于家庭的和睦。

3.卧室:在家具的选择上还是选用白色,遵从于自然,自由随意、简洁怀旧、实用舒适。整个空间的墙上没有做造型,整个空间简单大方,床头背景放了很多颜色的画,打破了空间的沉闷。


针对这套79㎡现代风小户型效果图,觉得这样的设计喜欢吗?为此,阳光力天装饰公司表示,该户型中,各个空间都比较方正,设计起来没有难度,甚至利用隔板设计,进行了空间上的分隔,形成独立方式。
想要了解更多装修案例信息,请私信咨询我吧!会给您一个装修上的专业性建议。