什么样的屋子能装下电竞房、花草间和15㎡的浴室?
在家ZAIJIA
2021-12-14
全屋高级灰却仍然温暖,屋里有家人可以窝在一起的地方,也有各自独自工作的房间。隐藏收纳、开放收纳和展示型收纳全都有,不再需要断舍离了。
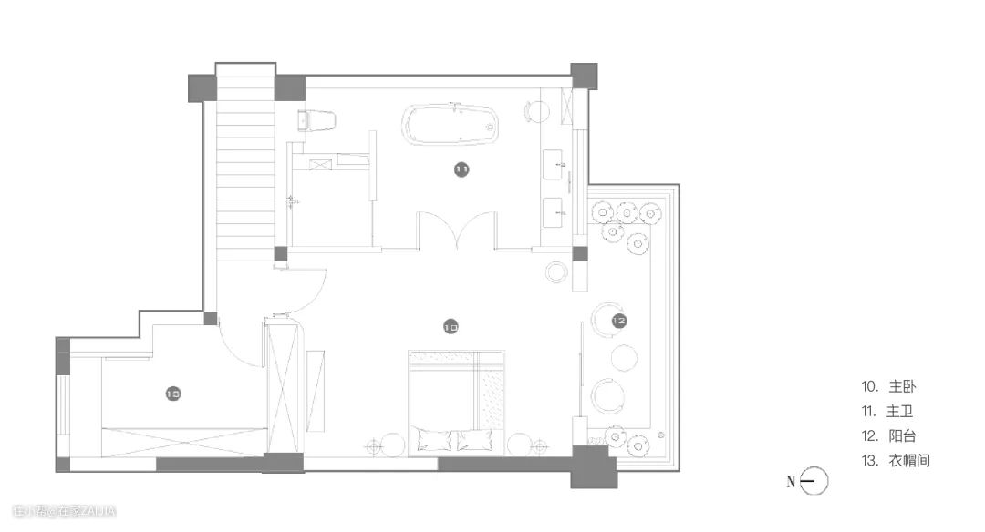
为了泡澡的仪式感,卧室对面设计了15㎡大浴室,带来绝对高贵的沐浴感受。

建筑面积:232㎡
使用面积:208㎡
户型:三居室跃层
装修花费:140W(含软装电器)
房屋坐标:四川 成都
认识TA

设计师 付楚楚
wooom studio物禾木木设计工作室联合创始人
从事室内设计行业7年,wooom studio物禾木木设计工作室联合创始人。一个好的空间,应该是自然发生,与人产生共鸣的。
—
大格局怎么改?
一南一北两书房,挑空分层做浴室
房间的主人是一对夫妻,两人喜欢滑雪而且都喜欢收集。女主人喜欢收集世界各地的茶杯和咖啡杯,男主人则是喜欢收集乐高和手办。
除此之外,男主人喜欢电竞,需要一个封闭书房不会影响到家人休息。女主人则喜欢种植花草,而且很需要生活的仪式感。


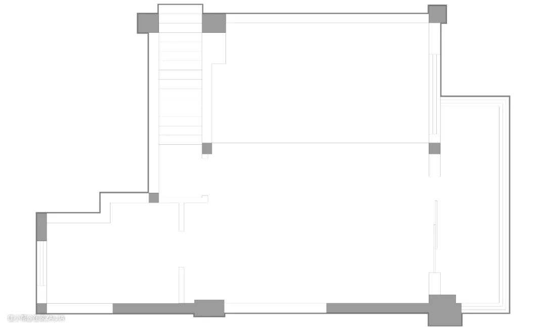
一层 改造前(上)改造后(下)
原户型一楼客厅区域挑空,挑空上正好面对二层的封闭卧室,也并没有达到通透的感受。
家里并不需要这么高的空间,设计师将挑空的空间搭建为两层。一层正好可以将男主所需的大书房放入,二层则放入了一间仪式感超强的卫生间。


二层 改造前(上)改造后(下)
一层的生活阳台是女主种植花草的地方,旁边的起居室改造成了花草工作室,原卫生间用来做洗衣房。
父母来家做客,可以将工作室下翻床铺下,变身为卧室。

一层客卫正对客厅,电视背景墙没有将客卫全部挡住。改造后,背景墙拉伸出去,将客卫挡在后面,保护隐私。
客餐厅天花板,梁结构和层高落差复杂,设计师利用圆拱弱化边梁,并且将中央空调隐藏在餐厅和客厅中间。

为了配合拱形的屋顶结构,在通向客卫的墙上,设计师做了一个对角的拱门。
施工方法和做拱门门洞是一样的,只不过是每个墙做一半。
这样做屋顶形式统一,电视背景墙也可以在并没有增加多少墙面的情况下延伸出去,和另一侧的墙壁形成一个看似围合的空间,从而达到遮挡效果。

二层将挑空区域搭建成卫生间后,原卫生间成为了独立衣帽间。
—
高级灰就是冷么?
黑白灰和木色搭配,点缀温暖
设计师采用了低饱和度的配色,以灰色为全屋的主调。

装修过的朋友应该有经历,同样颜色的乳胶漆,刷在不同墙上的颜色都有可能有区别。为了让墙面、门和定制柜的颜色相同,设计师费尽心思,最后的效果几乎看不出色差。
家里其他配色以黑白为主,餐厅白色圆形餐桌和黑色方形岛台形成经典黑白对比。

餐桌:knoll的郁金香桌,餐椅:ton18、ton30、panton椅,边柜:montana,吊灯:ferm living
岛台一侧的墙面餐边柜使用了黑色,而餐桌一侧的餐边柜使用了白色,在视觉上形成了一种色彩的延伸。


除了黑白灰,房间还使用了大量的木色用来增加温暖的感知。除了在视觉上就能起到复古感的鱼骨拼木地板外,一层厨房门以及二层卫生间的门都是木质玻璃门。

木质边框、灯芯玻璃搭配黄铜色的精致小门把,在满是极简的灰调中点缀了一些自然感受。
餐桌的三把椅子分别是,纯白的潘通椅,白色与藤编的TON 30以及全部是木色的TON18。餐桌和岛台的两盏吊灯形状有区别,但是颜色也选用了和木质相近的暖色。

整个餐桌区域的色彩和材质搭配都相互联系。看上去不同但是又都有相同之处,这样才能让大空间既有层次又不会显得凌乱。

厨房地板仍然使用木地板减少地板间的收口,后期使用会铺设厨房专用的地毯。

墙面选择的是小火柴的釉面砖,纹理更加自然,只是小砖的人工铺贴和美缝费用会贵一些。

客厅几乎全是灰色。电视墙拱门后面使用了茱萸色,作为儿童房色彩过度。客卫门前的柜子也刷成了茱萸色,保持色彩一致。

门洞后透过的这一点点粉,给全是灰色的客厅增加了温度,也有了一种知觉上的空间指代感。
过了茱萸色的走廊就是满是绿色的儿童房,因为还没有人使用,这里并没有做太多的布置。

应主人要求,家具单品几乎都选择了弧形的,房间中尖锐的边角都用圆弧的倒角处理了。这正好也和空间中用到的拱形相互关联起来。

客厅沙发和背后的弧形墙面无论颜色还是形式都可以很好的搭配在一起。

灰色沙发对面,临窗放了一个绿色的边柜,搭配木色的置物架。阳光从纱帘外照进,在这个角落形成了温暖的色彩变化,让冷灰灰的客厅变暖。

二层卧室的颜色依旧是灰色搭配木色,入口和天花板都处理成圆弧形。

床尾处4米的门正对浴缸,强调了女主人所说的仪式感。设计师认为卫生间的大小决定了使用者的舒适度,这个户型非常适合拥有宽敞舒适的卫生间。

而且泡澡本来就很有仪式感,设计师将浴缸放在了卫生间视觉最中间,用木色的地砖代替了地毯做出了地面材质变化提高使用仪式。
卫生间的灯光除了基础照明,使用了地脚灯、灯带灯氛围灯具,照亮使用区域的同时提升浴室的氛围感。打开氛围灯,打开香薰,看着百褶窗外朦胧的景色,沉浸在泡沫和懒散的心情中。


—
怎么区分收纳空间?
展示、防尘和杂物各有其所
收纳用的柜体大多通过颜色隐形起来,只有开放收纳用木色进行突出。
开放隔板一般用来收纳有展示价值的物品,如书籍、杂志和雕塑。

玻璃柜门可以放置一些需要展示又容易落灰的物品,如男主人的乐高、手办、鞋子还有女主人收集的杯子。
纯封闭柜子就可以收纳衣服和杂物。

花草工作室一面墙的球鞋展示柜,虽然是封闭收纳,但是玻璃材质仍然可以作为展示使用。
餐厅两边一黑一白两个餐边柜用来放置餐具用品和生活杂物。黑色岛台下面还隐藏了一个酒柜,用来存放红酒。
客厅沙发墙是一面3米多的隐形柜,收纳客厅杂物。经常使用的东西可以放在沙发旁边magis的360°可旋转收纳小推车上。


书房用开放式层板收纳随时能看的书本。

二楼的卧室主要用一个karakter libreria pensile隔板架开放收纳,床边放了TON14作为床头桌使用。


独立的衣帽间可以放下男女主人所有衣服和被褥用品。
由于屋主想保留隐私,所以图片没有展示出家里全面的收纳空间。

最后再来说说这个家的名字Kiroro。
开头提到过屋主夫妻的共同爱好都是滑雪,虽然空间中并没有一些关于滑雪的内容,但整个房子就是屋主夫妻最爱的滑雪场——“喜乐乐(Kiroro)”
这种大户型案例会将许多改造方法结合在一起,本案中对天花板结构的处理方法、给灰色提高温度的配色方式以及各种各样的收纳形式,在所有户型中都能用到。
▽
最近后台留言说
想看小户型
已经在安排了
宅sir还筹备小户型花小钱改造干货
大家可以在留言处
说说自己花小钱干大事的方法