出租小破楼神改造,198㎡轻奢顶复豪宅,挑空设计不输顶奢别墅
大显空间设计
2022-04-07
精彩看点,业主对每个空间都不满意,设计师如何迎难而上?出租小破楼如何翻新,变身5.4m挑空轻奢顶复式?斜顶阁楼鸡肋空间,改造后摇身一变多个功能区?
感兴趣的朋友,一起来看看吧~
业/主/故/事
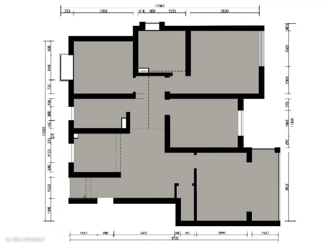
本案是一套老房子,原本是出租房,但现在业主潘先生想要收回重新改造翻新,业主夫妻二人与一双儿女,一共4口人居住。
关于改造方面的具体需求,潘先生这套顶复算上阁楼部分共198㎡,他对许多地方的格局规划都很不满意,空间的利用被大大浪费。
1、旧玄关阳台

▲老房改造前
原本的玄关一进门就是一堵墙,美观性十分差。北阳台潘先生只放置了一个水斗,空间都被浪费,想做鞋柜增加实用性。
2、旧餐厨狭小

▲老房改造前
厨房的空间也比较狭小,而且电器都比较老旧,潘先生还想把洗碗机、烤箱等智能电器也放进来。餐厅的区域空间利用不够合理,厨房的小空间满足不了潘先生想要的双开门冰箱,想请设计师在餐厅区帮他设计一下。
3、旧楼梯位置不好

▲老房改造前
客厅的缺陷尤为明显,楼梯放置在这里影响了整个空间的视觉效果,空间使用率也被大大浪费了。
4、儿子房功能缺失

▲老房改造前
北卧的儿子房潘先生要求设计师改造出一个看书写字区,作为以后儿子的学习区域。
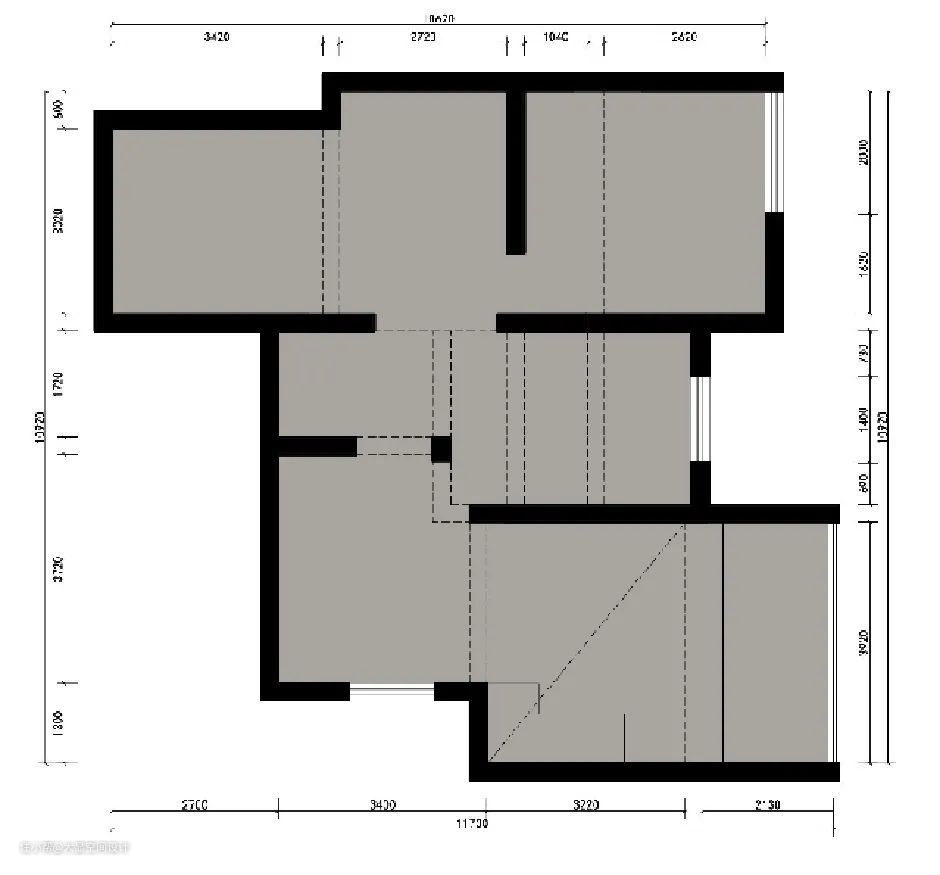
5、阁楼低矮,不好利用

▲老房改造前
阁楼的空间潘先生尤其不满,因为是斜顶,基本上空间都被浪费了,潘先生打算在二楼做上多个功能区,办公、储藏、洗衣,还有给孩子玩耍的娱乐区域等。
那么设计师究竟会把房子改造成什么样呢?
让我们一起拭目以待吧!
设/计/解/析
01
一层主生活区


作为主生活区,一层的整体设计为三室二卫+餐客厅+厨房+5.4米客厅挑空层。

改造亮点:
① 独立玄关双储物柜加强收纳,玻璃外墙采光充足;
② 5.4m挑空客厅,优雅大气不输别墅豪宅;
③ 餐厅毗邻厨房,形成最短上菜动线;
④ 将餐厅的背景墙延伸,刚好内嵌外移冰箱,背后刚好做个客卫收纳柜,U型厨房将空间利用最大化;
1.玄关/完善入户收纳

独立玄关处,左侧由厨房与墙的夹角空间规划为换鞋区,此处整面落地窗采光充足,通透敞亮。
将原本的矮柜改造成了现在的高柜,上方的空间被充分利用起来。北阳台也被纳入现在的玄关区域,作为鞋柜的空间。
2.客厅/深挖空间潜力

客厅是整体设计的亮点之一,客厅区域和二楼打通做成了挑高设计,楼梯区域被挪到了阳台的位置为整个客厅腾出了更多的空间。

客厅上方的挑空有5.4m高,两层高的落地窗,高级透光。

▲电视墙采用定制天然棕咖木格栅+玻璃展示格+定制天然岩板+地台组合呈现。

沙发背景墙选用了爵士白大理石纹路的岩板,与木栅格一起既简洁又时尚。

顶面交错的吊顶设计,配以旋转水晶吊灯,感官张力里展现出城市新贵低调奢华的生活方式。
3.餐厅/颜值与功能同步


餐厅与客厅自然流通,没有隔断,满足一家人的互动交流。用圆弧的造型替代了原本方形的吊顶和餐桌,潘先生想要的双开门冰箱也被放置在这里嵌入进柜体,充分利用了空间。

4.厨房/细节成就舒适

由于业主一家喜欢中式烹饪,所以采用了玻璃推拉门隔绝油烟气。
厨房U型设计,充分利用每一寸空间,“洗、切、炒、备”的下厨流程流畅合理,蒸烤箱、吸油烟机等电器安排,让一家四口的喜欢各种美食成为可能。

5.过道+一楼楼梯/细节成就舒适

考虑到未来的行走安全,设计师将多种灯光组合规划,阶梯隐藏灯带,打造行走的舒适和高级优雅。

尽头的kaws:seeing/watching 装饰画延伸客厅的基调,与玄关餐厅的背景画相呼应,潮流橙色,让空间的视觉艺术感达到平衡。
5.主卧/探索人居更多可能

主卧在一楼过道尽头,是自带卫生间的套房。卧室没有复杂的装饰,但灯光、线条、色彩营造出了卧室与众不同的立体感,无主灯设计、创意鱼骨纹木地板拼接凸显了时尚美学。

软包床头背景减噪吸音,高级灰皮床,以舒适为主,在这里,时间是缓慢而有质感的。

整面墙的到顶衣柜、起夜兼阅读吊灯、双控开关、床头插座,遥遥相望的净次衣架,还能准备第二天的穿搭,给予业主夫妻最便捷舒适的起居体验。

# 内卫

将原本的衣帽间打通纳入主卫,便有更多的空间来容纳浴缸满足潘先生爱人的泡澡需求。

6.女孩房/百搭生长可能
纯粹、放松、舒适,是业主对女孩房设计所坚持的格调。整体简约纯白的硬装,让软装、色彩百变成为可能,满足女儿不同成长时期的审美需求。

女儿房设计了一个榻榻米,舒适生活的同时也保证了储物空间。榻榻米的衣柜连通书桌书架,不论是办公还是娱乐都很方便。

吊柜开放格收纳女儿喜欢的各种手办玩偶,书柜两个台灯的使用,让光照无死角,细节之处彰显生活的体贴。
7.男孩房/趣味创意个性空间

结合男孩子的性别属性,男孩房以蓝色调+灰白色呈现,墨蓝皮革软床,雾霾蓝窗帘深浅和谐统一,床头竖线条浅灰色墙咔让空间更高级显大,顶部创意飞机吊灯带来个性与趣味。

男孩房进门处,几何隔板的墙面收纳展示架,满足儿子乐高、地球仪等兴趣爱好展示的乐趣,搭配线条书桌椅+学习椅,形成一处时尚简约学习区。
8.外卫/干湿三分离



由于外卫面积足够,可以实现干湿三分离,可以同时多人使用,避免一家四口和客人来时,卫生间使用高峰的压力。
洗漱干区延伸的墙十分巧妙,看似恰到好处,细想拍案叫绝。一墙三用,除了背面内嵌冰箱,方正过道,还能当做展示墙,展现业主心爱的孙悟空手办,潮流时尚味尽显。
9.阳台/多功能生活区
客厅阳台用木饰面装饰垭口,没做隔断,两层采光让客厅空间敞亮通透,高级豪宅范。

一楼的阳台区域多为功能性,是晾晒的地方,顺着自动楼梯上去则是二楼的休闲阳光房区域。
02.二层休闲娱乐区


▲二楼楼梯口
二楼是一个顶层阁楼区,我们将其划分成三个区域:娱乐房、洗衣房、客卧+客卫、储藏室,让空间充分利用,功能完善。
楼梯安置在了层高比较高的地方,防止磕碰。
10.书房/半开放式独立

在客餐厅二楼楼上,设计了办公区,旁边是一排矮柜,不仅保证了采光收纳储藏的空间也足够。在另一边设计了一排展示柜,嵌入灯带方便照明。
11.娱乐区/理想休闲模式

儿童休闲房,设计了一个榻榻米作为踏步台阶,小书桌、懒人沙发、储藏柜一应俱全,可以在这里尽情玩耍。
12.洗衣房/功能齐全完善

衣机和带搓板的台盆都被设计在洗衣房里,储藏矮柜里也能存放一些洗漱用品。设计师还在这里改造出了一个马桶,方便潘先生在二楼办公的时候使用。