锦鲤装修记丨不可不看的11条水电施工标准
生活家装饰数智整装
2022-04-28
所谓水电交底,就是在开工前,业主需要跟设计师确认好家里水路电路的走向,插座的数量、高度,下水口位置,以及对原水电布局需要做哪一些改动等等。
而设计师需要根据与业主确认好的水电布局在图纸上做标记,每一处的插座位置,水口位置,线路方向都需要标记好,最后施工师傅只要按照现场放样的线路开槽施工就好了。

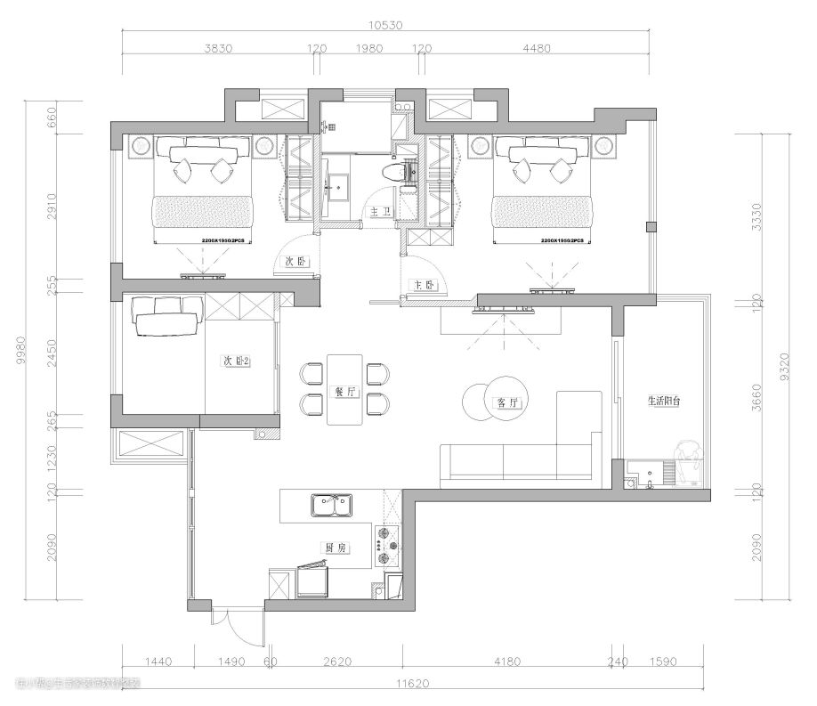
▲平面布局图
Z先生家使用面积85㎡,三室两厅一卫,厨房改成开放式,多功能房飘窗改榻榻米,该房主要作为度假屋使用,采用日式装修风格。
1
水电交底
水电交底主要确定三件事:开关、插座、水路。
在交底前,这几个点要好好考虑清楚:
·家具、家电的尺寸,和摆放位置
·是否要新增点位(水口、插座、网口)
·开关的控制功能(双控or单控)
至于如何保证最终方案的完整性,我们可以选择循序渐进,先把主要的列出来,再按需添加、修改。
Z先生家开关布局:
·玄关:双开双控开关1个,控制玄关与客厅。
·厨房:三开单控开关1个,控制厨房主灯,清洗配菜区顶灯和风扇。
·餐厅:三开双控开关2个,分别控制玄关、客厅、餐厅、筒灯。
·多功能房:单开双控开关2个,控制主灯。
·主卧:双开双控开关2个、单开双控开关1个,控制主灯与氛围灯。
·次卧:单开双控开关2个,控制主灯;单开单控开关1个,控制床头灯。
·走廊:三开双控1个,控制客厅、筒灯、走廊顶灯。
·阳台:单开单控开关1个,控制阳台灯。
为了更直观地体现开关布局,设计师可以在平面布置图上标出相应的点位,与业主一起对照检查,方便修改。

▲开关点位布局图
开关种类的选择以便捷为主,像客厅、玄关、主卧、次卧、筒灯等,最好选用双控开关,避免走回头路。
Z先生家插座布局:
确定插座的位置和高度,其实就是确定家具、家电摆放的位置,点位的高度要合适且不能被挡住。
首先,对家里每一处的功能需求一定要跟设计师交待清楚,因为不同家电、家具所需的插座高度都是不同的,前期沟通明白,最后的施工才能到达预期效果。

▲点位平面布局图
玄关:单联插座1个。
厨房:双联排插座2个,单联插座5个。
餐厅:餐边柜上方有1个。
客厅:沙发两侧各有2个插座,电视柜旁边有1个,电视下有1个四联排插座。
多功能房:书桌上方有1个双联排插座,床尾上方有1个空调挂机插座。
次卧:电视下方有1个双联排插座,右侧还有1个,床两侧分别有1个双联排插座。
主卧:电视下方有1个双联排插座,左侧还有1个,床两侧分别有1个双联排插座。
卫生间:洗漱台上方有1个双联排,浴室柜有2个。
阳台:洗衣机位置有1个插座,另外2个插座位于阳台两端。
Z先生家水路布局:
水路的规划比较简单,只需要搞清哪些地方需要热水就行。Z先生家的热水只涉及了厨房与卫生间,阳台只设置了冷水。这里要说一下,因为是度假房,不常住,所以也没考虑那么多。如果是常住,阳台也应考虑热水,不然冬天洗衣服可就难受了。

▲水路平面布局图
2
水电改造
水电改造的施工顺序是先电后水,坚持电路在上,水路在下的原则。
①电路改造
第一步,根据确定好的灯具、开关、插座、网络光纤接口的位置与数量规划电路铺设路线,对该路线需要开槽的部分进行弹线,确定开槽线路。
各点位高度标准为:
·开关下口离地1300mm-1400mm
·空调插座下口离地1800mm
·厨房插座下口离地1000mm


▲弹线
第二步,根据弹线的位置,使用电动切割机和冲击钻进行开槽,槽深度最好为30mm,水平方向的横槽长度不能超过500mm。

▲开槽
第三步,根据开槽的位置,铺设PVC电管及线盒,需要改变铺设方向的地方需要对PVC管进行弯折。
电管铺设原则是:厨房、卫生间的强弱电管应走墙面、顶面,不能走地面;客厅、餐厅、卧室、阳台的强弱电应走墙面、地面。


▲电管铺设
第四步,电管固定。在潮湿环境中的电管槽需用水泥砂浆进行填补,干燥环境中的电管根据实际情况选择填补材料,可选用水泥砂浆或石膏。


▲电管固定
第五步,根据铺设的线管及需要进行换线的部位,进行穿线(强电线及弱电线)。
穿线时用钢丝作为带线,牵引线缆在线管中穿梭,穿线前要根据施工图进行核对,并在导线两端标记记号。


▲穿线器穿线
最后,穿线完毕后,进行导线连接,严禁线头裸露,应用绝缘胶带捆绑严密,并安装压线盖,以防安全事故发生。
②水路改造
水路改造采用进口纳米级PPR环保管材,第一步同样需要根据事先确定好的给排水口位置进行弹线、开槽。
第二步,对PPR管进行熔接处理,将管材接口与三通或弯头加热后,将接口端插入三通或弯头内,不能旋转,等待自然冷却。


▲PPR管熔接
第三步,水路铺设。水路铺设优选走墙面、顶面,水路顶面布管每隔40cm固定管卡,保证水管布线横平竖直。布管遵循左热右冷原则,便于后期使用。

若在地面布管,水路要在电路之下,严禁水电同槽。


管道铺设完成后,需要做加压测试,压力值在0.6-0.8mpa之间,不出现漏水现象即为合格。

3
水电验收
水电改造完成后,需要对水电路进行验收,验收合格后将用水泥砂浆或石膏对水电路线槽进行填补。
电路验收标准
1
开关底盒高度:1300mm-1400mm
2
插座高度:完成后离地面300mm
3
空调插座:下口离地1800mm-2200mm
4
厨房插座:下口离地1000mm
5
强弱电开槽间距:150mm
水路验收标准
1
水管铺设:横平竖直,左热右冷,上热下冷
2
给水管与强电间距:不小于150mm
3
给水管交叉处理:过桥处理
4
冷热水管间距:不小于150mm
5
冷热水管出水口间距:150mm,且水平
6
加压测试:压力值0.6-0.8mpa不泄露