83㎡现代简约风,实用的转角柜设计
海域整装(浦西店)
2022-04-29
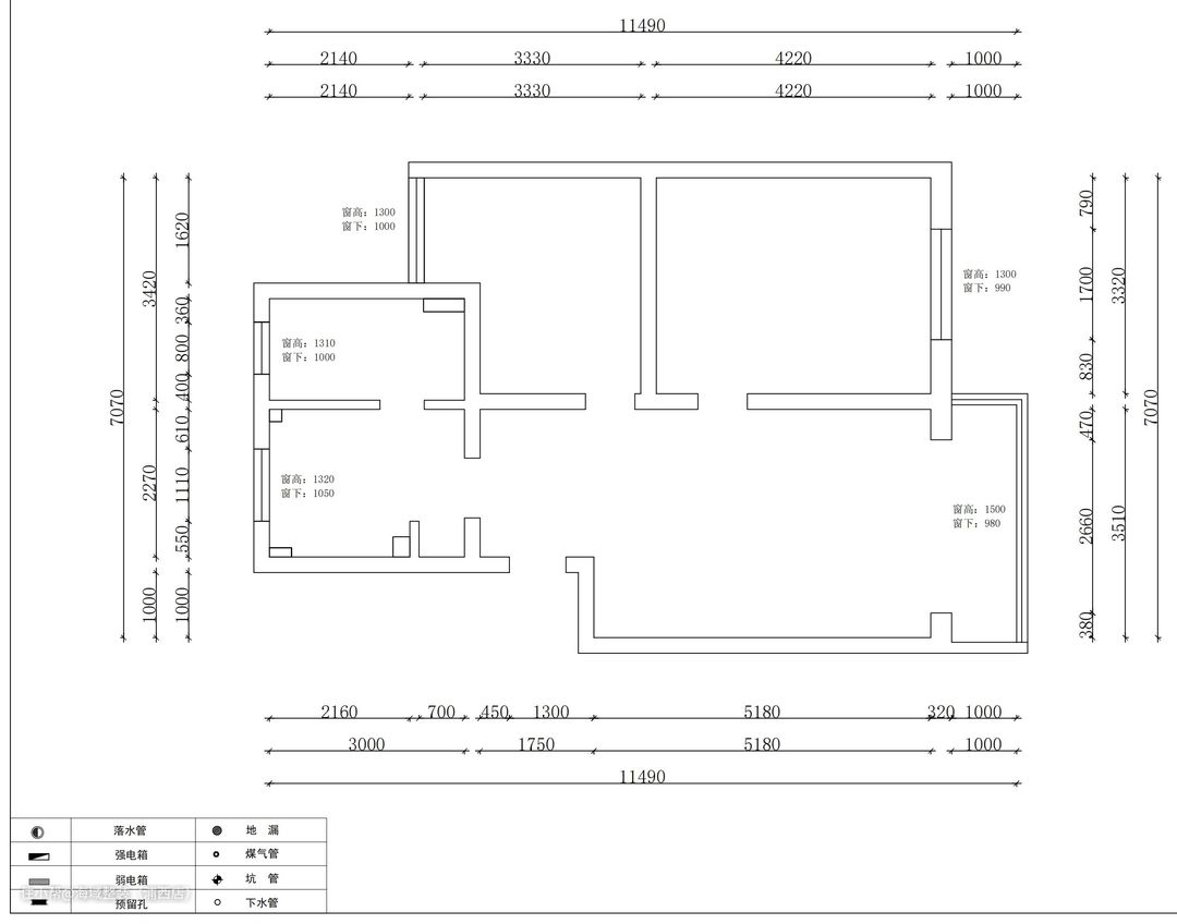
原始布局图

改造需求:
1、保持室内的采光,尽量亮堂些;
2、需要一个鞋柜,要有足够的收纳空间;
3、喜欢简约的、简单的.
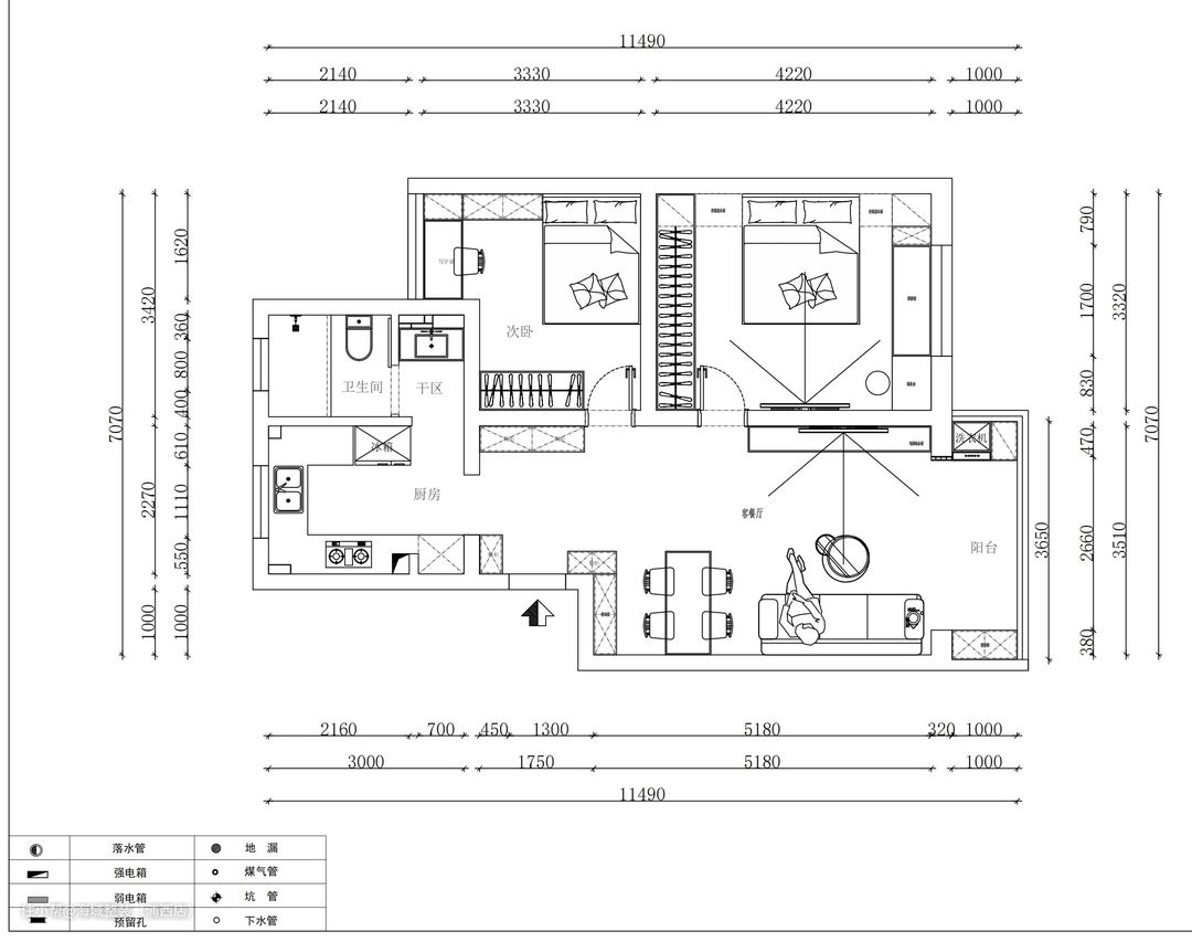
平面设计图

方案设计:
1、利用入户门的转角做鞋柜和餐边柜的一体设计;
2、在入户门对面、两个卧室都设置相应的大型收纳柜;
3、保证客厅的充足采光,将客餐厅合并布局。
玄关

玄关位置,布置了一个简单的转角柜,与餐厅的餐边柜融合设计。转角柜是推拉门的形式,表面没有小拉手,更干净和整洁。柜体底部预留部分的空间,可以放置换下来的拖鞋。
客餐厅



客餐厅是一体设计,沙发背景墙整体是采用深灰色乳胶漆涂制,使用简单的装饰画装饰,做大量留白设计,将剩余的空间交给餐桌部分点缀。皮质的巧克力沙发呼应深色背景墙,再搭配上空间中岩板茶几和餐桌,使得整体环境变得富有内涵。
厨房


厨房是U型设计,利用入门的边角做了内嵌的烤箱和冰箱的布局,收纳柜采用白与灰的对称设计,中间使用大理石板材,空间层次分明。
主卧



主卧的背景墙延续客厅背景墙的颜色使用,同样是深灰色乳胶漆。床体采用的金属支撑的材料,是金属床体+床垫的搭配,喜欢床软一点的朋友可以这样选择。衣柜是顶棚设计,采用实体柜门+玻璃门的配置,同时带有小型的格子用来放置摆件,这样的搭配避免了整体白色柜门的单一,而玻璃门的颜色也是与背景墙的颜色相呼应,视觉上也更舒服。
靠窗户一侧做了办公区的布局,借用一角做收纳柜设计,延伸收纳柜做办公桌 和梳妆台布局,同时给窗户安装布质的百叶帘,可以起到很好的挡光的效果。
次卧

次卧选用浅灰色乳胶漆为底,白色吊柜和原木书桌中间衬托的搭配。
卫生间


卫生间是干湿区分离,将洗漱台的部分设置到干区,满足日常使用不着急,里侧就是淋浴区。