小户型的轻奢感「50平」
海域整装(浦东店)
2022-05-02
上海/全包/3人/现代轻奢风格/旧房改造
户型解析:2成人/1小孩,共三口人,旧房改造。业主原本不打算装修的,只是局部装修一下,可是这是非常不划算的,局部装修与整体装修价格不会相差多少的,如果局部装修的话,整体风格也是非常有差异的,如果在局部装没有保护好其他区域,动一块地方便是要整体需要动,风险太大。业主思前想后便就决定整体翻新,也是为了给孩子一个好一点的环境,会整体提升家庭的辛福感。
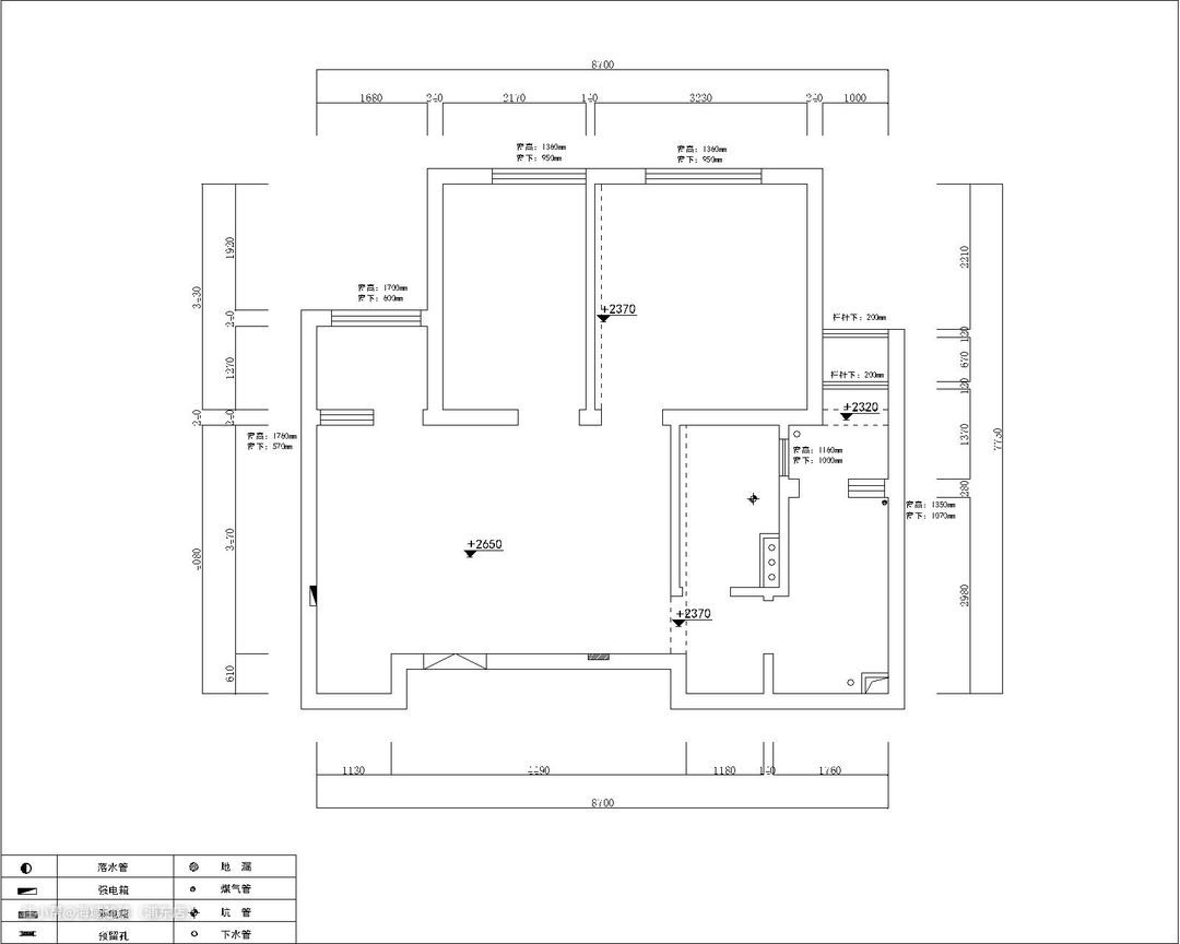
原户型:

改造需求1、儿童房的设计;2、厨房卫生间门需要改造;3、入户门设计;4、整体的储物空间增多;5、儿童房需要书桌。
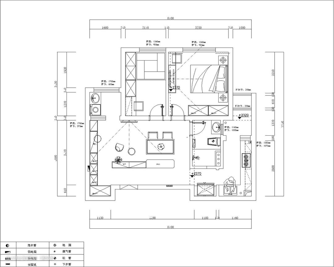
方案设计:

在原户型中一进门便就会一览无余,所以在此设计了一款可移动的柜体,方便清理,也提高整体的房屋设计的颜值。卫生间与厨房以前是同一个门,现在将卫生间的门朝向外面,这样大大的改善生活中的琐碎。从放置洗衣机的阳台开始设计了储物空间与休息娱乐区域。儿童房的设计采用榻榻米的形式节约整体房间面积空间,也增加房间的储物空间。
【餐厅客厅一体式】
进门便是餐厅与客厅的位置,在图中左边的位置设计了一款吧台,可以放置一些装饰与酒或是书籍,小空间也可以设计出时尚轻奢大方的感觉,优雅不失华丽。
整体望去最为醒目的就是那幅挂画,在整体色彩都偏向冷色系,所以现在添加一抹暖色系那就是一抹阳光的照耀,瞬间感受到温暖的气息。大象保护小象,又温馨有又爱。


蓝色的挂画就像小朋友在这个世界上不断的去摸索有趣的事请。


办公区域与吧台设计,棕色的柜体是一个很大的储物空间,解决了储物空间的问题。



【厨房】

【主卧】
房间最突兀的色彩便就是蓝色,与客厅的挂画相呼应,这就是父母与孩子的牵连,父母永远都是牵挂自己的孩子。整体知性且温和。



【儿童房】
走进来的一瞬间就能感受到房间的温馨与活力。

【卫生间】
