访问APP

224现代极简风,谁说大白墙不好看?这家的就很大气!

华浔品味装饰集团

2022-05-06

今天介绍的这个案例是位于建筑的楼顶,上面有一处阁楼。原本房间自带的格局属于中规中矩的样式,没有很大的新意。

设计师采用现代极简风作为设计主线,在房间内部大量采用白色乳胶漆通刷,形成大量的留白工艺效果,形成一种大气时尚质感,同时一些轻奢风格的家具和新中式风格的壁画融入也让房间里碰撞出两者和谐的火花,体现出一种时尚、美好、舒适的自在生活。

基础信息

设计面积:224平方米

设计风格:现代极简风

所用材料:白色乳胶漆、新中式壁画、大理石瓷砖、筒灯、大玻璃窗、水晶吊灯等

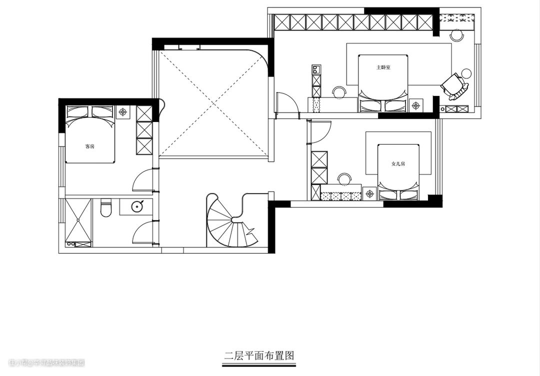
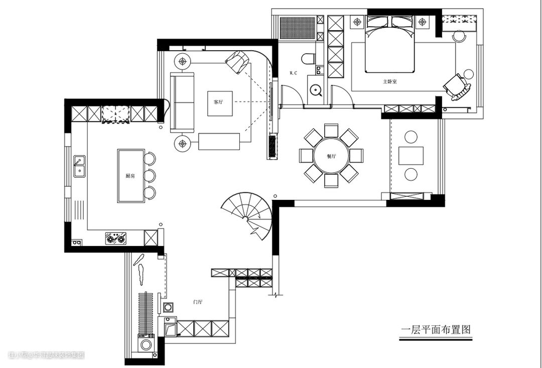
01户型图

业主家里有三口人,家里的老人在家里长住,所以设计师在一楼打造了老年房,方便老年人的生活起居。

螺旋样式的楼梯位于房间的中间位置,上下楼梯更加方便,并且减少了棱角,能够有效防止孩子的磕碰。

客厅、餐厅、厨房的大面积改造,让公共活动区域面积增大,符合现代年轻人的生活追求,一家人的活动空间充足,也能够享受悠闲自得的生活乐趣。

二楼向阳一侧保留了两个大房间,打造成为主卧和女儿房。大面积留给卧室,也相当于留给了自己和孩子更多的私人空间,进一步加大了生活的舒适程度。

西侧留有客房一处,家里临时有客人到访的时候,能够有地方休息。并且距离产生美,客房和主卧距离较远,彼此的隐私性也能得到保护。

02客厅

超高的挑空工艺使得客厅的上下维度特别大,看起来也比较宏伟。

整体白色乳胶漆通刷而成的墙面素雅而又高贵。简单的手法,打造出不一样的视觉效果。

一款弯曲圆形的垂线式主灯,在白色的基础色调上特别显眼,黑白配果然永不过时。

螺旋楼梯采用浅灰色作为基础色调,看上去更显淡雅。

大理石板打造而成的悬空电视背景墙特别有轻奢韵味,背景灯带形成的轮廓感,朦朦胧胧特别好看。

向阳侧两处上下对称的大窗户,能够保证客厅良好的采光性能。

悬空电视背景墙向外延展出一处镂空格局造型的储物柜台,一家人的全家福照片摆放在这里,岂不是其乐融融。

03餐厅

餐厅一侧墙面全部采用深灰色护墙板拼接而成,在其表面没有任何的多余装饰品,将灰色的大气与简约发挥的淋漓尽致。

而为了避免视觉上的单调,在对面白色的墙上打造了一幅大型壁画,画面上卡通狗狗的图案正在翘首以盼,仿佛正在等待归家的主人陪他玩耍,为客厅增加了可爱气息。

04厨房

厨房采用的是开放式的格局架构,使得公共活动区域增加面积更显宽阔。

厨房中间打造了一处简约造型的吧台,白色大理石台面易于卫生打理,同时搭配了黑色金属造型的高脚凳,使这里能够成为一处休闲之地。

厨房内部大体采用灰色作为主色调,这样能够减少油污等污渍的污染,耐脏性能更强一些。

05一层主卧

一楼主卧地板采用斜向通铺的木地板工艺,让地面看上去纹理清晰。

竖向条纹木格栅打造而成的床头背景墙,就如同水流一般一泻而下,视觉效果超棒。

床头两侧球形造型的壁灯如同皓月一般美妙。

床尾对面的背景墙仔细观看会发现其中的奥妙,设计师将其打造成满墙的内嵌式衣柜。柜门全部采用弹力设计,无门把手的配置使得柜门整体看上去和墙面一样平整光滑,既能增加收纳空间,又能保护原有的墙面不被破坏,简直是一举两得的设计理念。

06二层主卧

灰色壁布贴满了整面床头背景墙,使得主卧看上去更素雅高贵。

去除了一次的床头柜,进而打造成一个处梳妆台。起床后,女主人便可以在床边梳妆打扮,这更加方便日常生活。

另外值得一提的是阳台处的设计,主卧自带的阳台一侧已经全部打造成储物隔断,后期业主可以将这里作为私人书房进行配置,闲暇时间看看书也是不错的选择。

07二层次卧

次卧也是作为客房,面积并不是很大。因为不常住的原因,实用性得到满足就好。

内侧靠墙打造了大衣柜,能够收纳衣物,柔软的双人床也能为客人提供舒适的休息环境。

08女孩房

女孩房的造型相对来讲就要活泼一些,脏粉色的融入也让房间更显可爱。

床头背景墙上大大小小造型不一的人物图案以及床头精美的插花都让这个房间体现着青春洋溢的气息。