87㎡简约风,主卧爆改成书房,空间不够、设计来凑!
上海东易日盛总部
2022-05-10
项目地址:越秀苑
案例面积:87㎡
案例风格:现代简约
设计师:吴佳禹
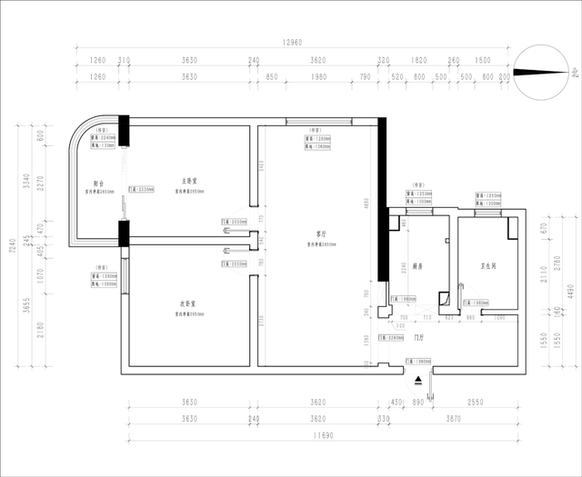
- 平面布局图
本案改造重点,主要考虑进门玄关问题,厨房、卫生间动线是否合理,以及满足书房和临时客卧的需求。针对这几点问题,我们平面上做了一下改动:
1、打破卫生间与厨房原始户型,卫生间做干湿两个区域,洗手台外置,提升空间利用率;厨房则改为更加方正的户型,做U型操作台,提升空间利用率;
2.客餐厅不仅满足基本功能区域,同时也在侧墙做了整体的橱柜,增加储物空间;
3.原本主卧改多功能房,平时做书房使用,同时添加了隐藏床, 客人如需暂住,随时可以当做客卧使用。
- 客厅

客厅入眼都是极简与自然的风格,用白色加原木色的搭配凸显出空间的素雅纯净,打造静养人心的温暖空间。绿植和室外空间的结合,打造出自然系的家居生活,感受独处的惬意和空间生活的随意性,电视背景墙采用了超大容量的储物柜,具有强大的功能性与实用性,开架的使用,让取放物品更加灵活。
- 餐厅

餐厅和客厅做了一体化的布局,四人座餐桌靠墙摆放,动线更加舒适流畅。橘色单椅的加入让空间多了几分灵动感。餐厅和客厅都采用了平面吊顶的处理,搭配无主灯造型,视觉上更加利落敞亮。

我们将原有的厨房调整位置开放出来,白色混油饰面、金属不锈钢、灯带的使用让整个空间更加宽敞,多人使用都不会感觉太拥挤,与餐厅的动线也更加舒适简洁。
- 多功能房

书房做了多功能房的设计,两人座的悬挂式书桌、简洁利落的开放式隔板以及雅致温润的空间配色,打造出一个敞亮舒适的空间。侧墙做了下翻床设计,让这里可以形成一个独立封闭的临时客房。