装修干货丨承重墙到底能不能拆除呢?
北都国际设计机构
2022-05-14
答案:不能,肯定不能,一定不能,谁说也不能
从字面上理解承重墙的含义就是用来支撑承受重量的墙体,如果把它拆除,承重结构是不是就改变了呢?下面我们就从几个方面来分析一下承重墙。
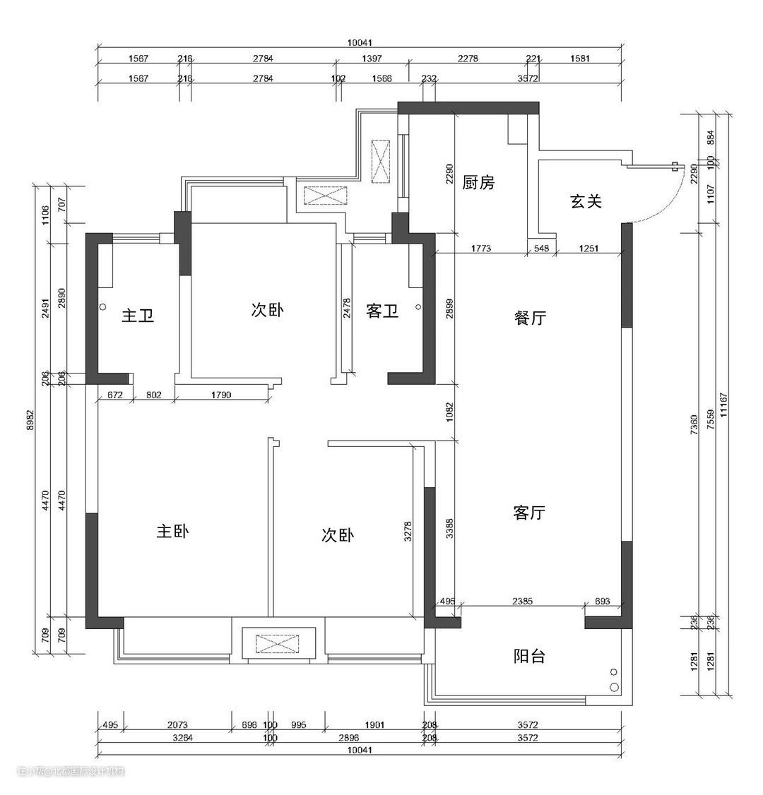
1、如何辨别承重墙?

以上黑色墙体均为承重墙
首先去物业要一份开发商的施工图照片或图纸,根据图纸来判断哪些墙体是承重墙?如果物业没有图纸的话,可以根据声音来判别,用金属物体敲击墙体,如果声音很清脆或者无回音,基本就能断定是承重墙;轻体墙在敲击的时候声音很沉重,同时伴有回音出现。如果还是拿捏不准的话,可以用专业的测试工具,一般承重墙都有钢筋的植入,如果用金属检测仪检测到有大面积金属物的存在,就断定是承重墙。
2、承重墙在哪些位置呢?
说实话,承重墙的位置并没有什么标准,每个空间的每一面墙体都有可能是承重墙。不要听网上说,一般卫生间和厨房的内侧墙体不是,这些都是骗人的。
3、承重墙的厚度是多少?

其实承重墙并没有厚度的标准,一般的承重墙厚度都会大于20cm,因为中间会植入双层钢筋再浇筑混凝土,因此厚度会大一些。
4、承重墙拆除后续有哪些呢?
a、物业会在验收时扣除您的装修押金,同时恢复墙体结构原样;
b、如果楼上邻居知道的话,邻里之间可能产生矛盾;
c、受力结构的改变,可能导致墙面开裂,重则出现下沉,影响楼体安全。

因此,承重墙说什么也不能拆除!!了解更多装修小常识,可以关注我奥!!