140㎡新中式四居室装修设计案例,超大横厅太幸福了!
山水装饰集团
2022-05-28
项目地址:中海城
面积:140㎡
户型:平层
风格:新中式
设计师:易宏英
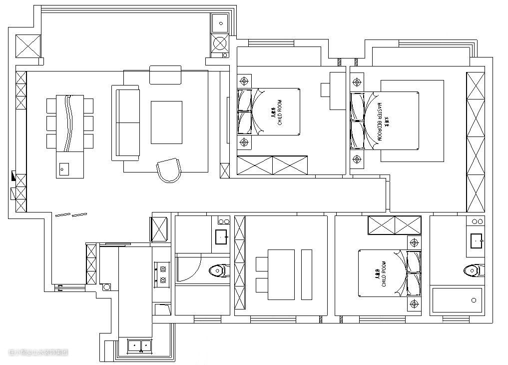
平面布置图:

闹市人潮汹涌,筑一道围墙,保留一方净土,宁静而致远。这是一套总面积140㎡的四室两厅,户型结构方正,拥有超大开间的横厅结构。与屋主沟通之后,定案为新中式风格,保留了空间的通透性,通过大理石等材质的加入,提升质感,整体呈现出简约大气之美。
入户

拥有独立的入户空间,为满足入户收纳的需求,设计师沿墙面定制了嵌入式一体柜。高柜全封闭式设计,看起来更显美观整洁。蓝色的展示柜部分增加摆件装饰,让入户有了一丝仪式感。为了避免入户见厅的尴尬,在入户门正前方设置了长虹玻璃隔断,搭配着金属框架,既是隔断,也是装饰。
客餐厅

超大开间的横厅结构,设计师利用已有家具,对空间进行了功能上的划分,一半是会客休闲区,一半是用餐空间。与此同时,为了扩容和采光,设计师还将阳台纳入了空间中,拥有更宽阔的视野。

客厅区域的电视背景墙,选择利用岩板进行整装,白色的基底搭配着浅灰纹理,同色系的护墙板进行点缀,形成对称规整的造型设计。

从用餐空间看过去,整个横厅一览无余,顶面与地面保持一致的造型设计让视线的延伸感增强了不少,空间更显开阔明亮,居住舒适度得到了明显提升。

丝绒沙发的后方,便是一家人的用餐空间。长虹玻璃隔断正好阻隔了视线,保护了家居隐私。大理石岛台的加入,与岩板餐厅连为一体,提升空间质感的同时,也延伸了餐桌的使用面积,功能上得以丰富。
卧室

主卧朝南,保留了独立卫生间的设计,为生活提供了方便。灰白交织的空间中,加入了烟灰粉进行点缀,搭配着白色护墙板装饰,依旧是对称式布局,带来视觉上的规整与有序。
书房

将其中一间次卧改造成了独立书房,空间不大,所以布局上以简洁实用为主。黑色的铁艺书桌造型简单大气,嵌入式的书柜加入玻璃门装饰。与此同时,特意在墙面增设了黑板墙的造型,既方便记录,也让孩子的创意有了发挥的空间。
简洁中带有质感,精心搭配的家具和软装,让空间更有归属感。这套140㎡的四居室,用新中式的诗意模糊钢筋水泥的印象,筑起屋主梦想中的桃源空间。