一房改四房,客厅里还挤出一间书房,看傻了!
曲美家居萧山店
2022-06-18
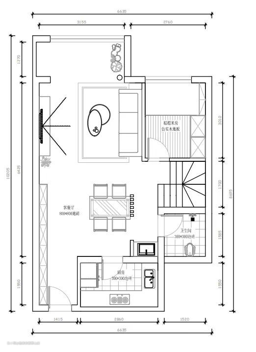
本案案例为125㎡毛坯房,户型周正,室内的采光效果好。原始结构一室两厅两卫,区域划分不清晰,没有规整空间的问题。根据业主的家庭需求,将一室两厅设计成四室两厅两卫,客餐厅、厨房、起居室等与卧室分层,上下层之间通过户内楼梯连接。


原始框架图
除此之外,这套户型常住人口较多,原始餐厅规划狭小,厨房除了正常拿、洗、切、炒的专区外,还缺少备餐,烧水,咖啡相关器具等区域,不能很好地满足生活需求。因此,设计师通过将餐厅原本的墙体位置往后移,留出800mm的空间给洗手盆的位置,如此一来餐厅空间得到扩大,厨房也可以改成推拉门的形式。

将空间分割成上下两层,必然会影响层高,因而在软装搭配时也更考验技巧。设计师选择以稳重大气的胡桃色为主色,以气质高贵的高级灰为背景色,再局部点缀跳跃的橙色、内敛的蓝色和轻奢金属元素,打造出沉稳舒适简洁的感觉的同时,触摸时尚的温度。


改造后的平面布置图
01 入户玄关
玄关是家的第一印象,整个入户空间实用又美观,结合卡座设计定制顶天立地的玄关柜,规划了常鞋区、换鞋凳、挂衣区、置物区、鞋柜、收纳柜,满足一家人的鞋子以及杂物的收纳需求。

在外观设计方面,柜体以简约白为主色,胡桃木色的加入提升了整体的质感,再加上一点亮黄色和金色柜门拉手的点缀,让整个玄关空间显得十分轻松明亮有质感。
02 餐厅
厨房虽然做了简约玻璃移门,但它的空间还是有限。所以餐厅除了要满足就餐需求,还需要额外分担烧水、泡咖啡等需求。因此设计师将餐边柜与玄关柜相连接,定制了一组容量和操作台面都足够大的餐边柜,既有足够的储物空间又能摆放咖啡机、烧水壶等常用小家电。

卫生间台盆做外移设计,为了避免卫生间门和楼梯口正对着餐厅,中间定制了一组长虹玻璃屏风隔断,玫瑰金搭配轻盈的玻璃材质,让空间更加通透。
03 客厅
为了在一楼留出一间多功能榻榻米房,只能牺牲一部分客厅空间,再将阳台打通即可让客厅不显得局促,还能增加室内采光。
整个客厅采用了“墙浅地中家具深”的配色方案,墙面刷浅灰色乳胶漆,搭配白色石膏线条凹出电视机背景墙的造型。瓷砖选择中灰色大理石纹,铺上条纹拼色地毯,增加层次。

轻奢橙色系简约三人位沙发,打破客厅的沉闷,增加整个空间的活力;再搭配同色系具有景深感的大幅装饰画,和金色绿植花盆,色彩得到过渡和延伸,非常和谐。胡桃色系的电视柜与茶几与餐厅相呼应,搭配人物石膏像和花卉,增加空间艺术感。
04 一楼书房
为了满足业主居家办公、临时留客、午休、收纳等的需求,在一楼留出了一间面积虽小却十分实用的榻榻米房。

榻榻米柜体以白色为主调,局部点缀亮黄色,可以让空间显得宽敞明亮;搭配了书桌、衣柜、榻榻米小床,增加实用功能。
05 二楼卧室
利用上下两层将活动区与睡眠区分开,是跃层设计最便利的地方。在这套方案就将主卧、次卧和女儿房三个房间安排在二楼,很好地实现了动静分离,保障业主的隐私。

- 主卧
主卧床头背景墙用木饰面板搭配竖条纹墙面软包,在视觉上让空间更显高。舒适的大床来自曲美凡希系列,高档实木搭配真皮的扇形床头,造型独特且十分舒适大气。整个空间同样以胡桃木色为主色调,大气稳重且质感出众。

- 女儿房
女儿房设计清新,符合少女青春烂漫的性格。床头刷娇嫩的浅绿色乳胶漆,搭配原木色的大衣柜和北欧风布艺床,营造舒适的睡眠氛围。为了满足孩子的学习成长需求,将书桌与衣柜做一体定制设计,实用又节省空间。

- 次卧
次卧采光较差,但空间相对较大,因此业主想要更突出它的收纳功能。结合床头柜设计定制一组L型的大衣柜,换季的衣物和被褥统统都能装下;再安排一张实木床,满足睡眠需求。
一个理想的家大概是——当你看到它时,会很喜欢它;当你触摸它的时候,有一种愉悦的质感;当你使用它的时候,它给你带来享受。