金地越秀凤鸣艺境260平4室轻奢装修风格
乐家网美居中心
2022-06-23
设计风格为现代轻奢,一家四口住,现代轻奢风格的装修风格迎合了现代人的喜爱,都市忙碌生活,回到家更喜欢的一个安静,祥和,看上去明朗宽敞舒适的家,来消除工作的疲惫,却都市的喧闹。这也是现在流行的装修风格之一:现代轻奢风格。








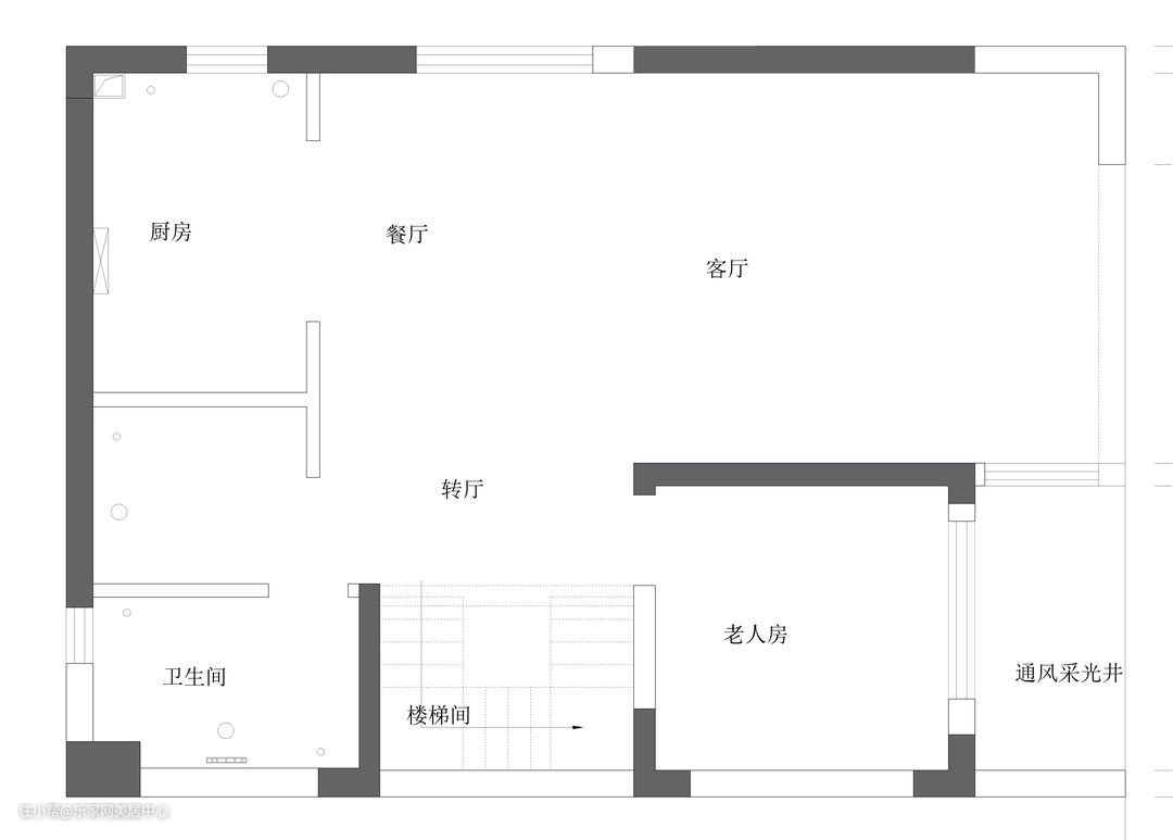
一楼为客厅、餐厅都是为了招待来宾和宴请朋友,在材料选择上影视墙做了当下比较流行的大板上墙,悬空的电视柜,便于后期好打扫。整个空间做的木饰面上墙,和地面能统一搭配,餐厅基本上都与厨房相连,厨房推拉门可做隐藏式的,不做饭时可做开敞厨房,使用时可以关推拉门,整体空间比较明亮,厨房的面积较大,操作方便、功能强大,两边做的酒柜,增加储物空间,餐厅旁边放有餐边柜,增加储物的功能外还不影响空间的动线。







二楼改动比较大,原有的两个卫生间改成一个卫生间 ,增加了一个卧室,改成了三室, 作为男女主人房,带一个衣帽间,男孩房,色彩用的是蓝色做点缀,简约舒适,没有过多花哨的装饰,整个空间活泼又不失明亮,复合男孩干练的个性,女孩房,用的粉色做点缀,简洁的家具,配饰,是每个小女孩的最爱,二楼考虑到饮水问题,进入二楼门厅处设计了一个储物功能强大的酒柜,留有管线机,可满足日常生活需要,整个空间整洁大方,主卧空间设有大的衣帽间,能够满足业主的收纳储物功能,床头背景墙设计的木饰面造型,既不张扬,又能体现男女主人的品味。





地下一层,设计成茶室,能满足男主人平时朋友聚会时聊天,谈工作,设计的倒台,能够满足平时喝茶倒水的方便,整个墙面也是做的木饰面处理,考虑到防潮,地下装有除湿机,同时地下一层都设计了卫生间, 满足使用功能,同时还留有一个书房,平时还以可以在地下一层做手工, 地下二层做的影音室,全墙面用的硬包,考虑到降噪处理,平时周末一家人可以看个电影,娱乐,做了地台处理,结合顶面,增加氛围感,可以享受观影效果,从车库进家门时也设计了鞋帽柜,增加了使用频率,满足家人的日常需要。