140㎡老房焕新,客餐厅书房一体化贯通设计让老客户赞不绝口
华然装饰
2022-08-05
HUARAN
国/轩/K/西/嘉
如果可以,请为生活停驻。
留点时间、锻炼身体,沐浴阳光,多些耐心,
关照一粟一羹汤,
愿我们都勤靡余劳,心有常闲。
【原创声明】本文中装修项目为华然装饰设计施工并现场实拍,图文原创,请勿转载。
#1
项目信息
Information
项目地址 / 安徽 · 合肥
项目户型 / 普通平层
项目面积 / 140㎡
项目风格 / 现代简约
设计施工 / 华然装饰
ABOUT
背景与需求
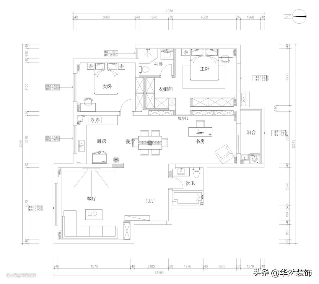
房地产市场进入存量房时代,二手房装修也越来越多,本案就是典型的一套有着十几年房龄的二手房改造项目,业主认为居住生活的改善不止于面积的扩容,决定生活品质的更在于装修品质,所以拿房后就考虑全部拆除整体重装。
这次装修的房屋原结构不理想,南北不通透、收纳系统不合理非常拥挤,在改造后F先生最满意的就是设计方案,尤其是客餐厅书房一体化的贯通设计,让老房焕然新生。
“都说装修是一件很难很繁琐的事,其实只要选对了家装公司,装修就变成一件很令人期待的事”F先生在我们拜访拍摄视频的时候开心地说。
F先生是华然的老朋友,2016年他的第二套房屋装修选择了华然,留下了满意、信任的印象。2021年购置到现在这套130多平的二手房,就再次向华然托付重任。
有过三次装修经验的他不再像第一次那样经常盯装修过程:“我的单位地点距离很近,但装修过程我很少来,因为很放心。上次装修的印象是满意,这次更满意!”
常住人口情况:F先生和爱人常住,孩子在外地,父母偶尔来住。
户型优化要求:原房屋房型不理想,南北不通透。希望在保留两间卧室的基础上优化房屋布局,提高生活舒适度。F先生热爱摄影、写诗、阅读,书籍较多,希望设置书籍的收纳和阅读区。
设计效果需求:经历过三次装修的F先生注重装修质量和饰材的品质。尽量简约、大方、品质经久耐用

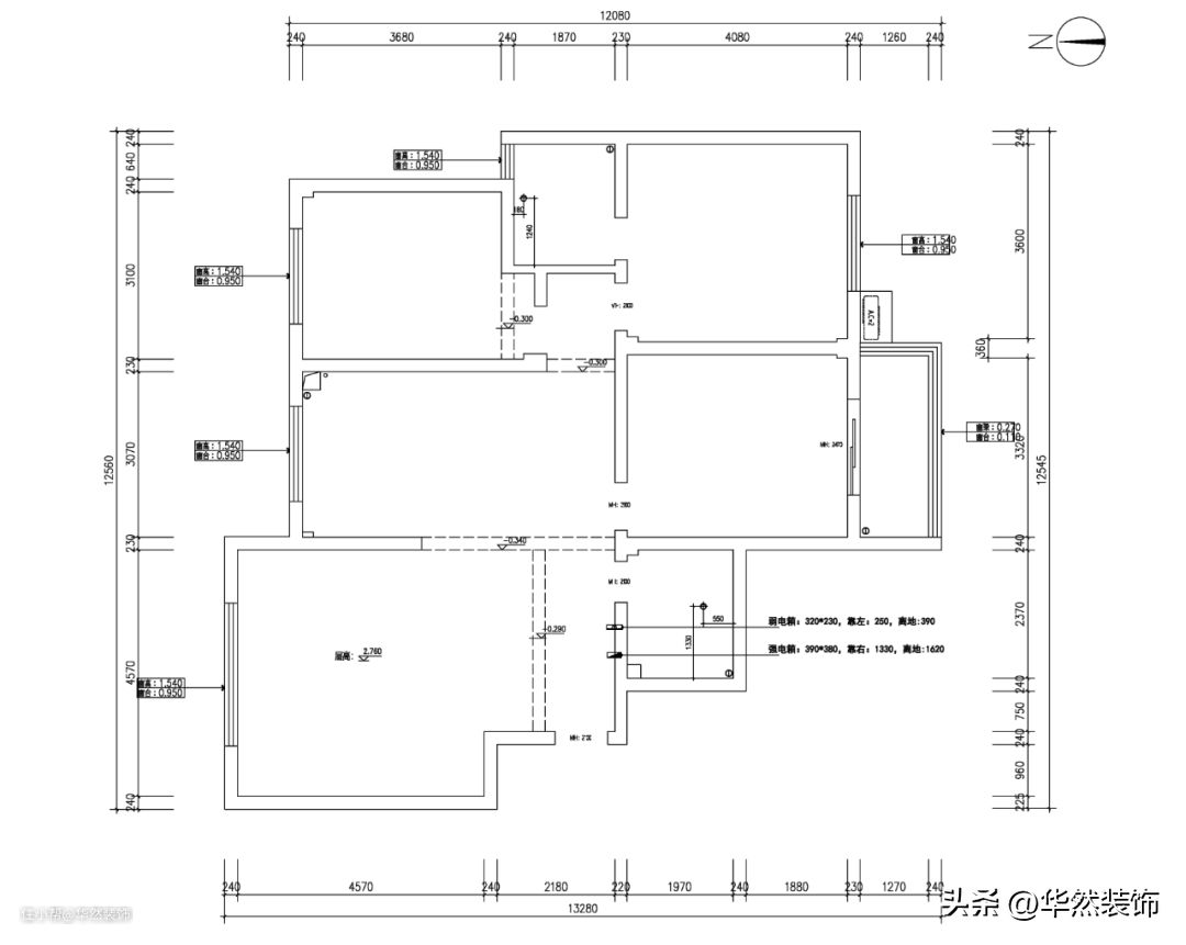
原始结构图

平面布置图
#2
项目亮点
Projrct highlights
- 大宽厅一体化贯通设计
- 拆除原户型南次卧的隔墙,打开做开放式书房。实现南北光线空气通透。厨房用四联动移门可分可合,形成了餐厅、厨房、书房、客厅一体化贯通设计。F先生即使专注于阅读,在客厅看电视的爱人也不会觉得孤单。
- 多功能主卧套房
- 优化两个卧室的房门朝向、墙体结构,避免了空间浪费,同时让卧室布局更舒适,尤其着重打造功能齐全的舒适主卧,衣帽间和一字型衣柜充分满足收纳需求。
- 高品质饰材的使用
- 全屋使用地暖,卧室采用全实木地板,厨卫集成吊顶采用大板和线型灯,隐形门设计等品质细节,让居住的每一天都是享受。
客厅 | LIVING ROOM

实景图

实景图
客厅电视背景墙背靠厨房,在原墙体上延伸40cm,使电视、沙发、吊灯能在一条线上居中对齐,让空间关系更合理。
墙面采用超大尺寸瓷砖和少量木饰面点缀,整屋色调统一、和谐,符合F先生简约大方的设计要求。

效果图

实景图

实景图
餐厅 | DINING ROOM

实景图

实景图
书桌背后的定制书柜+隐形门的设计一直延伸到了餐桌边,与次卧墙体齐平,让墙面整体感更强。同时也非常实用,解决了F先生的书籍收纳、餐边柜收纳等功能。
每一处细节都兼顾了实用与美观,这才是业主最为认可的设计。

实景图
厨房 | KITCHEN

实景图

实景图
最初计划厨房做完全开放式,后来在设计师的建议下增加了玻璃移门,保证了厨房餐厅之间的通畅无阻,也能消减厨房的噪音和油烟,美观实用。
橱柜采用大面积白色烤漆饰面板,光洁好打理,吊顶采用了大板集成吊顶和线性灯,获得均匀的照明和极佳的视觉效果。
书房 | BOOK

效果图

实景图

实景图
开放式书房是本次改造的亮点,书房、餐厅、客厅完全贯通。朝南的阳台用玻璃移门隔断,弱化了晾晒杂物,引进了光线,让书房、餐厅沐浴在明亮的日光里。
书桌背后是主卧,墙体采用定制书柜+主卧隐形门的设计,柜体有露有藏,日常收纳取用游刃有余。窗帘轨道隐藏在窗帘盒中,素色布品的点缀让空间更有家的温暖。
实景图
卧室 | BEDROOM

实景图

实景图
设计师优化了原有卧室布局,调整开门方向,提高两个卧室的空间利用率。尤其是主卧,配置了L形的超大衣帽区,床尾一字型的衣柜,再多的衣物床品都能轻松收纳。功能齐全的舒适型主卧套房极大地提升业主夫妇的居住幸福感

实景图
主卫是正方形,钻石型的淋浴房靠近窗户,便于潮气扩散。面盆、淋浴和坐便器功能依次展开,符合生活习惯,用专业设计让居住者享受充分的便利。
卫生间 | TOILET

实景图
主卫是正方形,钻石型的淋浴房靠近窗户,便于潮气扩散。面盆、淋浴和坐便器功能依次展开,符合生活习惯,用专业设计让居住者享受充分的便利。
#3
商品清单
Information
地面 / 诺贝尔瓷砖
墙面 / 万家吉祥墙布
顶面 / 奥普吊顶
橱柜 / 欧派橱柜
木作 / 尚柏衣柜
门窗 / 尚柏木门
卫浴 / 恒洁卫浴
【欢迎互动】喜欢这篇作品,就点个【赞】再走哦!也欢迎在评论区留下你的想法。
【私信咨询】如果您有住宅装修需求,请私信留言,我们会及时与您联络。