小户型福音!三代同堂的70㎡两居室,储物功能强大
珠海佳鸿装饰
2022-08-12
项目地址:万科城
设计风格:现代简约
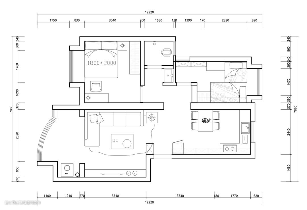
户型面积:两房两厅 70㎡
这是一套面积为70平米的两居室,是一个温馨的四口之家,屋主是一名家具设计师,希望新家能兼具功能性与美观度,拥有自由的交互空间和惬意的居住氛围。
陈设方面,整屋以温馨的浅色系,搭配灰色、咖色的家具,营造出简约而温暖的居室氛围,领导居住者迈向理想生活。
屋主需求:次卧增加收纳空间,厨房改成开放式。

户型缺陷:
1、需考虑入户空间预留鞋柜的问题。
2、次卧空间比较紧促的情况下,要满足祖孙二人的公用,小孩书本多,老人家念旧也很多东西,在有限的空间里要增大储物容量。
3、餐厅和厨房之间有墙体阻挡,不利于做开放式厨房。

格局优化:
1、解决鞋柜的问题,因为门口放不了鞋柜,所以就在入户做了一个到顶鞋柜,也不会挤压到餐厅区域。
2、减少了一个卫生间,把原来的次卫纳入了次卧,这样的话次卧整体空间变大,收纳空间也增加了不少,定制交叉上下铺,更合理的利用空间。
3、做开放式的餐厨空间,增强整体的互动性。
入户

进门便是顶天立地的收纳柜,一家四口的各种鞋靴包包都在里面。柜子是开放格和抽拉屉的组合,让进门-放包-换鞋入柜的动作流畅很多。
餐厨
设计师将原先窄小的厨房改造为开放式,使面积扩大一倍。厨房运用大面积的白色,避免了空间的厚重感。

采用L型布局,石英石操作台面与肤感白色、咖色橱柜相搭配,打造出了一个清爽的厨案空间。

原有灶台旁为摆放冰箱的空位,改造后将冰箱规划至餐厅。为了最大程度的保证空间宽敞,定制整墙餐边柜,顶部几组收纳柜,避免柜体顶部落灰的同时增加更多的收纳空间。

餐厅开启了整体空间的简雅风格,白色岩板餐桌清爽柔丽,能够很好地衬托出餐具的精致和食物的色泽。桌面的百合花插瓶也和墙上的山间绿野挂画形成呼应,打破空间的单调,增加用餐氛围感。
客厅

温馨的烟灰蓝色奠定了客厅的主基调,细节中加入灰、棕色调,丰富着空间色彩维度。沙发与茶几尺寸精巧,营造出简约生活氛围的同时,为客厅预留出更多的活动空间。

阳台和客厅以轨道窗帘实现软隔断,视野上更开阔。背景墙采用大理石+木格栅的设计,以创意kaws公仔点缀,彰显主人现代时尚的家居高品位。内嵌电视机整体空间设计更规整。
阳台


阳台左侧为休闲区,单人椅线条柔美简约,搭配设计感十足的金色边几,烘托出空间的优雅艺术格调。

设计师重新规划布局后,增加了收纳储物柜与洗衣功能区,把阳台改造成一个集洗衣、休闲观景与储物的多功能区,极大提高了空间利用率。
过道

小小的一幅肌理油画,为过道空间带来丰富的触感。
主卧
主卧整个空间以温柔优雅的基调来呈现,灰色床头正是公共空间主色块的延伸运用。

在柔和的灯光下,咖色和格纹的床品更显得温暖沉静,营造出静谧的休憩环境。
床尾定制梳妆桌椅,立体的LED镜,即使只是摆在角落,也独有一番美感。

侧边安排通顶收纳柜,用以收纳一些常穿的衣物,中部做开放格,可以摆放包包、香水等零碎物品。金属色衣架是女主每天保持精致的秘诀,衣物无褶皱,拿取更方便。
次卧

本案另一格局变化主要落在次卧,取消原有的次卫,为紧邻的卧室争取到足以摆放书桌椅和储物柜的宽度,腾出了余裕的学习和收纳空间。

因次卧需同时满足祖孙二人的居住需要,而定制了交叉上下铺,一旁筑起高柜,与高架床连结在一起,为睡眠时刻添入安稳包覆感,完整了立面配置。
卫生间

卫生间盥洗区被重新分离至过道,花砖的铺贴别致而优雅,各区域功能独立互不打扰,内部动线得到优化,流畅且自由,也增强了空间实用性。