86㎡长条形户型改造,他家全靠这些设计,拯救小户型采光!
上海东易日盛装饰
2022-09-06

案例面积:86㎡
案例风格:北欧风
户型:两室两厅
坐标:上海·又一村
——
无论是条糕形、一字型还是长条形,采光差是这些进深长的户型难以避免的问题。既然房子硬性条件没法改变,不如跟着这家上海的房子学一学,如何提亮空间,摆脱“小黑屋”状态吧!

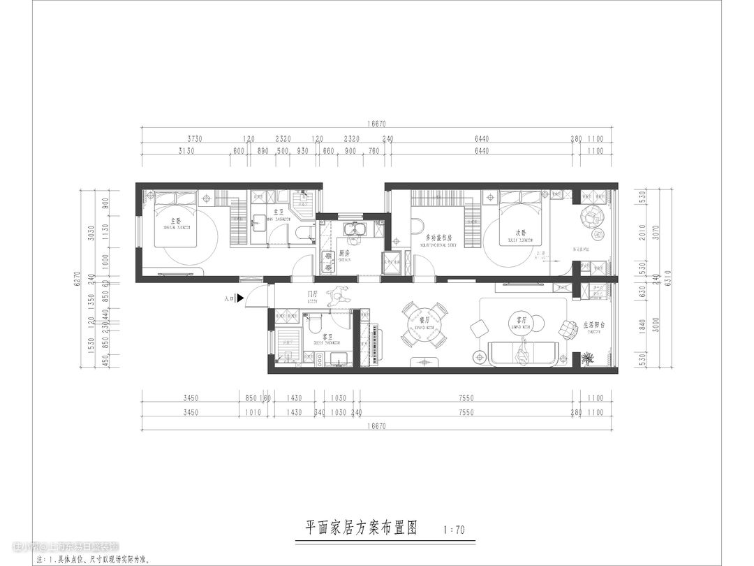
【△平面布置图】
整个户型呈现长方形,开间与进深的比例不够合理,得以导致房子内部昏暗,影响居住体验。为了打造舒适明亮的环境,设计师在不动承重墙的基础上,将生活阳台与客厅打通,引进更多的自然光;家居均采用低矮的造型,避免遮挡光线;整屋颜色用的是原木和米白,浅色系反射光线,可以起到显大的作用。这样一来多举并进,化解了长方形采光差的问题。
——
- 玄关

入户处打造了一小面柜体,中部和底部留空,内嵌灯带,可以给鞋子、随身物品提供收纳的空间。与玄关墙处于同一平面的还有卫生间门,我们统一采用木饰面装饰,将卫生间门做成隐形门融入其中,较好地维护了整个立面风格的和谐性。
- 客厅

阳台和客厅打通后,活动面积得扩增,室内更加明朗敞亮。两侧承重墙成为垭口的组成部分,我们顺着角落,在电视背景墙上放置几块搁板,一些精巧的装饰物可以放在上面,妆点美好的生活。

由于客厅的采光面只有一处,所以迎着阳台的方向,一切家具用的都是小巧、低矮的造型,尽可能避免对自然光的阻隔。地板采用人字拼,交错的几何图案丰富立体,可以增强视觉上的纵深感。纯粹的奶白布艺搭配温润的木质茶几,令空间更显明朗的同时,还多了几分温柔。
- 餐厅

地板通铺客餐厅区域,维护风格的统一性。圆形木质餐桌触感温和厚实,搭配造型别致的镂空餐椅,营造温馨的用餐氛围。我们沿墙放置了一面成品柜体,可以充扮餐边柜的角色,藤编元素质朴自然,细密的孔隙方便通风,维持柜体内部的干燥清爽。
- 卧室

这间卧室面积较大,我们在光线最好的区域,抬高地台,打造成一个灿烂明亮的休闲区。衣柜设计不同常规,底部悬空一部分,给书籍预留出空间,这样可以将多功能书房和卧室形成隔而不断的布局,维护采光和通风。
- 多功能书房

绕过衣柜,便来到多功能书房,根据户型特色,我们在卧室门后的墙面上做了一面拱形壁龛,多层搁板搭配灯带设计,存放各式书籍、摆件更井然有序。书桌沿着墙边的小窗户安装,悬浮式设计避免卫生死角,日常打扫起来更省心省力。