暖心窝的淡系奶油风,木色+纯白+阁楼,羡煞旁人!
圣都整装上海店
2022-09-09

有这样的一家三口,妈妈是链家的职能人员,爸爸专做二手房东,自己也有熟悉的施工队,很有自己的装修想法。
在一家人经过与设计师深入沟通之后,还是愿意相信“自己家”的品牌,在圣都完成了一家人对于家的终极改造,也收获了最终的惊喜!
户型丨3室2厅2卫
面积丨101㎡
风格丨奶油风
费用丨30万
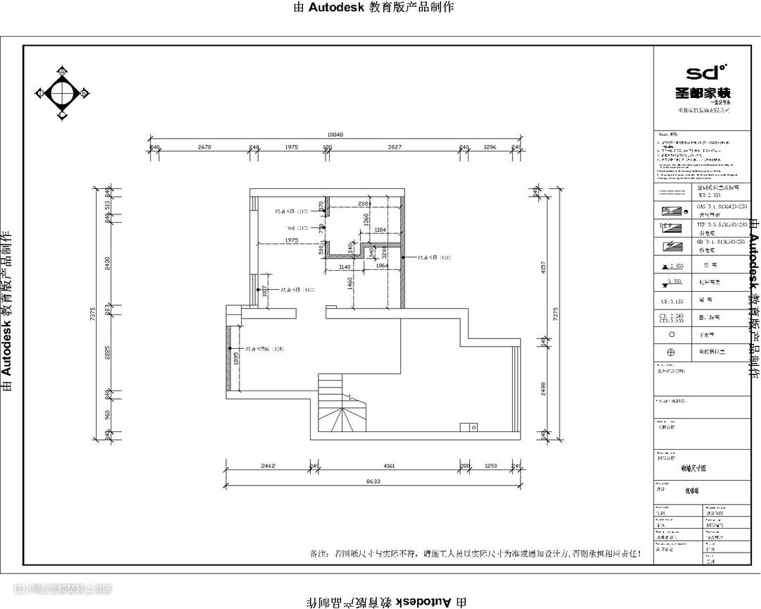
户型图


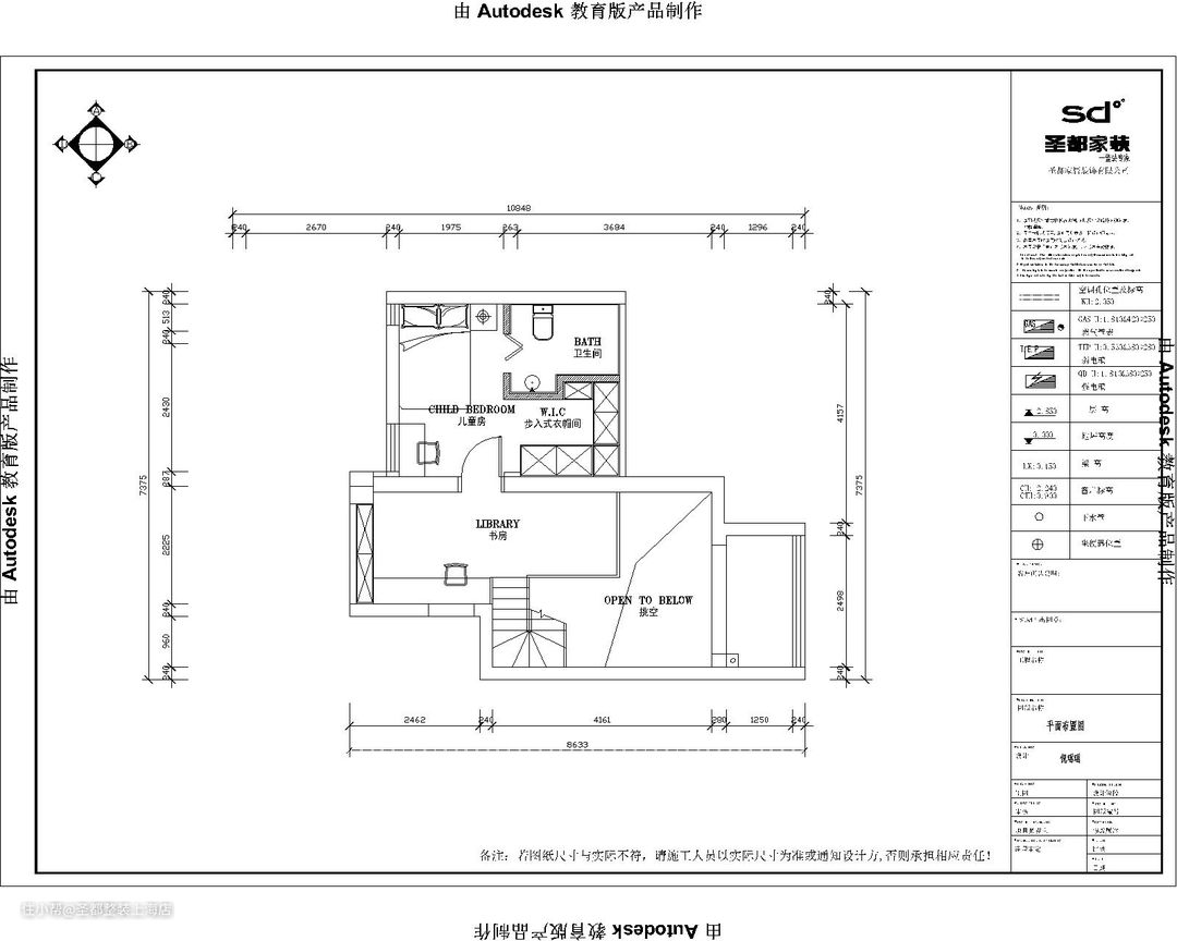
设计图


原始户型的层高较高,但层高在不同空间中并不一致,另外没有完整的餐厅,二楼也没有设置卫生间。因为顶楼是斜顶,造成了二楼采光不够,需要在装修中加以改善。
业主诉求↓↓↓
- 多增加一层楼层,想要合理分配第二层
- 二层增加一个卫生间
- 不需要餐桌,厨房做一个吧台
- 卫生间实现干湿分离,并能摆放洗衣机烘干机
- 客厅中需要摆放一张一米六的大书桌
- 入户门要避免对着卫生间
- 客厅的空间大一点,增加每个空间的功能性
客厅

整个色调是以温馨为基调,保留了原始层高特点。
将厨房,玄关,客厅,阳台,五个空间联通成一个整体,使得空间更通透。客厅与阳台的衔接处,做了一个弧形门洞的处理,弱化了梁的棱角。客厅摒弃了传统茶几,更换成了1.6米的书桌,方便平时办公使用,如有亲戚朋友到访也能充当茶桌和饭桌使用。
厨房

厨房改造成了半开放式的厨房,去除了传统的餐厅餐桌形式。把原本客餐厅和厨房的空间结构结合成一个整体空间。
设置了吧台,充当餐桌使用,满足一家三口的日常使用,也方便厨房内外的交流,不占空间。
厨房保留了金属移门,长虹玻璃既能装饰也能方便后期开通燃气,也不影响吧台空间的使用。长虹玻璃平时也能当装饰隔断。增大了入户玄关公共区域的视觉和随意的舒适性。
主卧

因为整体层高问题,主卧做了无主灯,以射灯和壁灯的形式打造灯光的层次感,色调以暖色为主,让整体空间整洁明亮,营造温馨的氛围。

整体空间限制,需要更多的储物功能,衣柜结合梳妆台的形式,预留梳妆台的空间,方便女主人日常梳妆。
次卧

二楼的小房间,是给小孩预留的。和一层空间分离,让他有一个玩乐和学习的独立空间。
小孩房

以储物为基准,做了L字型的定制柜,满足日常需求,可见柜体展示摆放书籍,方便使用拿取,沿用了榻榻米的形式,但是使用了可移动的床架,方便移动,让使用感得到了提升。
卫生间

采用了干湿分离,把生活阳台的洗衣机烘干机放在卫生间内,让客厅的生活阳台能变为休闲阳台,美观性也得到提升。
本案设计师

设计师:倪瑶瑶
从业时间:9年
所属部门:闵行一店经营五部
擅长风格:极简,现代,美式,法式