140㎡极简客厅干净整洁,采光也很好!
禧鑫装饰丨南通分公司
2022-10-11
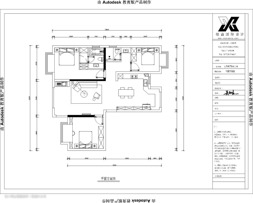
【导语】本案是140平的大平层,常住一家三口,偶尔会有老人过来小住。根据业主的要求,设计师保留了三个房间,将阳台和客厅打通,餐厨一体化设计,获得了一个宽敞的居所。



▲平面图


【客厅】打通了阳台与客厅,巨大的玻璃窗将光线引入,客厅就获得了极佳的采光。因为家具都比较低矮,搭配无主灯设计,更显得宽敞通透。

【客厅】灰色护墙板拼接棕色护墙板,独特的组合方式带来了些许情趣。壁挂式电视下方延伸出一字及地矮柜,设计了篝火装饰,传递家的温暖。

【餐厅】餐厅与做了厨房一体化设计,在多人下厨的时候可以将餐桌作为操作台使用。岩板餐桌和餐椅都加入了金属元素,带来轻奢气息。鲜花与餐椅的配色十分温馨柔和,令人舒适。

【厨房】根据业主要求,将厨房做成了开放式。M字型操作台弥补了空间的缺陷,还将拐角处空间利用起来。家电嵌入柜体内,与柜体形成一体。

【主卧】主卧以低饱和色调铺叙私人空间的温馨柔和,灰色护墙板拼接半人高的木饰面,层次分明。灰色软包床头触感柔软,看着就很治愈。

【次卧】次卧是给老人家住的,按照他的喜好选择了灰色调,用深浅来丰富层次感。衣柜做了嵌入式设计,灰白色漆面和米色墙面能够提亮整个空间。

【儿童房】孩子居住的房间需要明亮一些,三面窗子足以满足光线需求。为了给孩子一个安静的学习氛围,舍弃飘窗改造成柜+桌一体化设计。米色墙面与柜体表面浑然一体,看起来十分整洁。

【卫生间】为了做到干湿分离,洗手台外置在过道底端。圆形镜子挂在墙面,周围嵌入灯带,不仅可以补光,还增添情趣。岩板洗手台下是原木储物柜,悬空设计减少卫生死角。