室内轻奢休闲质感,窗外北麓骊山景峰
西安业之峰原创设计
2022-11-06
【案例项目】:骊君苑小区
【案例户型】:平层
【案例面积】:155㎡
【案例风格】:现代轻奢风格
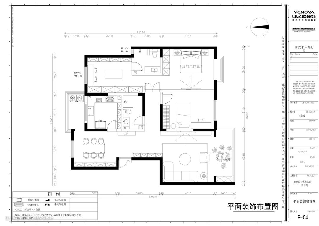
【平面结构】

本案是一个新房装修项目,客户是一家三口居住,夫妻二人带着一个上大学的孩子。四居改三居,根据客户需求整体调整格局。
【客餐厅效果展示】


客厅阳台正对着骊山北麓,考虑给客户在阳台设置一个茶水区。公共区域整体色调以暖色调为主题,旨在营造一个温馨宜居的空间
【厨房效果展示】

【主卧效果展示】

主卧做成一个大套间的形式,丰富了空间的使用功能,墙面通过不同材质和灯光的结合呈现一个恬适,温馨的居室环境。
【衣帽间效果展示】

【卫生间效果展示】

主卧做成一个大套间丰富使用功能。