200平三代同堂大家庭,黑白灰基调点缀调色软装,高级又温馨
华浔品味装饰集团
2022-11-28
业主一家三代同堂,6口人共同居住。业主的两个小孩已长大,需要独立的私人空间,所以在空间布局上需要4间卧室才能满足基本需求。
另外,男业主需要有间独立的品茶会客室和书房。在整体风格上女业主希望能够简洁大方而不失质感,不能太过简单,降低生活品质,也不能太过奢华,缺乏舒适感。颜色要朴实而高级,经得起时间的打磨。
另外就是储物空间要充足,壁柜的设计要合理美观又实用。经过与居者的深入沟通交流,结合大家的喜好和户型特点,设计师将本案定义为现代简约风,接下来就让我们一起来参观新家吧。

基本信息
建筑面积:200平
设计风格:现代简约风
所在城市:重庆广安
项目名臣:金融广场
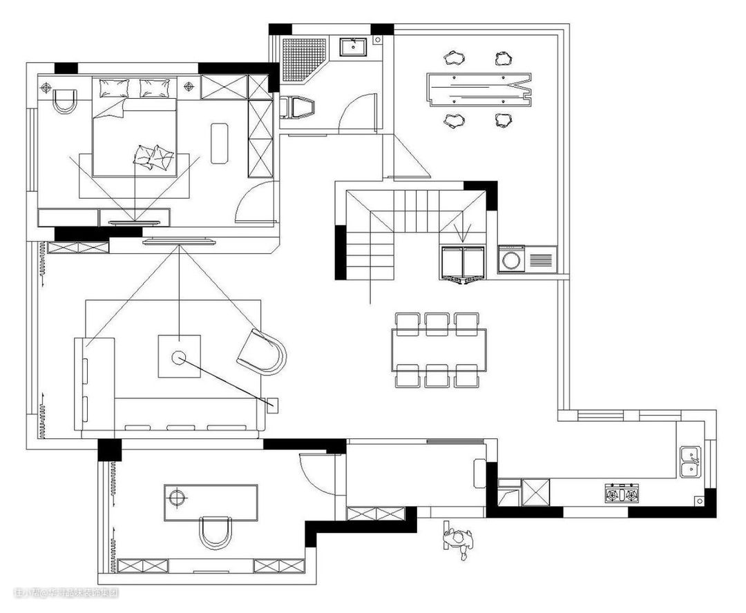
平面布置图
一楼

一楼作为会客区,包括客厅、餐厅、茶室。另外结合户型特点,设计师将入户左侧的小房间规划为书房,不仅空间上相对独立,还很安静。入户的门厅做了一个区域分明的规划,摒弃了传统的玄关设计,而是用一扇透明玻璃门将门厅进行了划分,非常简洁。
原本的厨房门进行了拆除,将餐厅与厨房之间的通道打通,让空间更加的通畅实用。
因为二楼有个露天阳台,所以设计师将客厅阳台做了入户式处理,扩大了客厅的容量,提升了整体的舒适度。同时考虑到老人腿脚不便 ,将老人房规划在了一楼,而且紧邻公卫,非常方便。
二楼

二楼作为主休息区,包括主卧和两个孩子的房间,结合大家的需求,在房间里还配置衣帽间、休闲区、书桌等,大大提升了居者的居住体验。独立的露天阳台,设计师将一部分作为生活区,一部分作为观景区,美观又实用。
入户

因为小朋友的玩具车、运动器材较多,为了保持室内环境的整洁,经过与业主沟通后,设计师摒弃了传统的玄关设计,而是将入户门厅进行了一个独立空间的设计,这样孩子的玩具车、鞋柜都摆放在门厅里,与客厅之间有了明确的隔断。
透明磨砂玻璃搭配黑色哑光钢边框的细叶推拉门,既简约又不失质感,起到了很好的隔断效果。

进门左手边的小房间划入了入户门厅的整体范围内,独立的空间用来做书房再合适不过了。
客厅

深灰色亮面地板砖、浅灰色木饰面、白色吊顶,层次分明又相互融合,视觉效果非常的舒服。考虑到层高较低,没有选用吊灯,而是用射灯和导轨灯带进行了处理,柔和的光线让空间显得格外温馨。
电视背景墙选用了花白色的大理石板,电视机内嵌,黑色花岗岩台面可以摆放花束或者各种工艺品,不仅简洁大方,还增添了艺术感。
原本的阳台空间,在靠墙的位置设计了一面铁灰色的壁柜,与电视背景墙相连,非常的整体。壁柜的款式也是多功能的设计,既是书柜又是储物柜,美观又实用。
一张橙红色的单人位皮质沙发背靠落地窗摆放着,像是一缕暖阳,让空间显得更加的温馨。

客厅的主沙发选择了一组浅灰色的皮质沙发,搭配上白色和深灰色拼接的简易茶几,简约又时尚。茶几上摆放了绿植和花卉,非常的温馨。
浅灰色的壁布上整齐悬挂着两幅装饰画,橙色、蓝色的色块使得整体空间颜色更加的轻快,充满活力。
餐厅

入户门厅与楼梯之间的空间摆放了一张白色简易餐桌,拉上门厅的磨砂推拉门,摆上鲜花或绿植,就是一个简单又温馨的用餐空间。
楼梯间

楼梯间选择了非常时尚简洁的设计。灰白色的阶梯、白色的导光灯带、透明钢化玻璃再加上黑色哑光钢扶手,简单的色系搭配,让楼梯间显得格外的精致雅观。