160平米现代轻奢风,告别高级灰,香槟色照样优雅奢华
华浔品味装饰集团
2022-12-19
今天给大家介绍的是一套160平米现代轻奢风格的家居空间。业主是一对90后夫妻,育有一双子女,目前跟长辈们共同居住,是三代同堂的六口之家。
女业主是一位温柔、贤惠的家庭主妇,很温柔,举手投足之间都透着优雅,她希望家里是温暖的、高雅的、有生活气息的,不喜欢黑白灰这种过于高冷的色调,喜欢淡淡的、温柔的色系,同时家私的选择上倾向于精致优雅的款式。储物空间不能少,而且要足够好看,整体风格上不要求太繁杂奢华,但希望设计师通过细节的处理体现出精致高贵的生活品质。
另外长辈们的年事已高,需要比较安静的休息空间。经过与女业主的深入沟通交流,结合居者的喜好和户型特点设计师将本案定义为现代轻奢风,选择了极其温柔的香槟色作为主色调,淡蓝色和金色作为点缀,再加上精致的家私和定制壁柜,为居者营造了一间极其高雅的家居空间。

基本信息
建筑面积:160平米
设计风格:现代轻奢风
户型:四室两厅两卫
所在城市:重庆
项目名称:长江大院
设计师:静雯

原建图

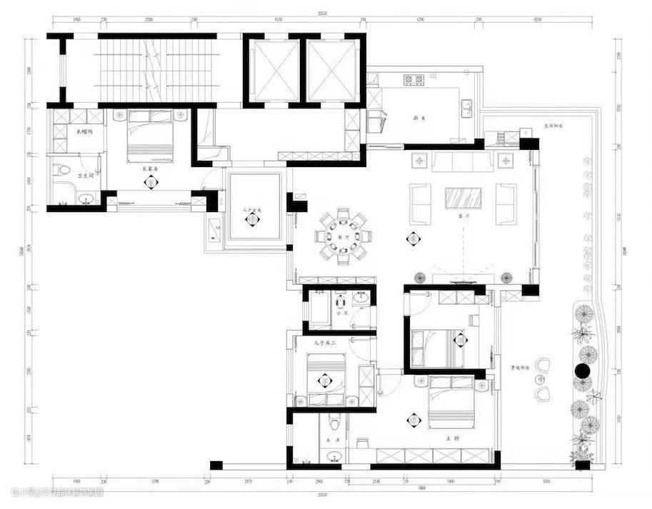
平面布置图
设计说明:
1. 本案户型的阳台非常宽敞,连接着客厅、次卧和主卧,为了优化布局,提升空间的使用性,设计师将阳台分成了两个部分,一端作为生活阳台,用于晾晒衣服等日常生活需求,另一端则做了一个观景休闲阳台的设计,为居者提供了一个非常舒适温馨的休闲空间。
2. 考虑到长辈喜欢安静,所以入户右侧相对独立的卧室规划成了长辈房,同时将原有的小阳台做了入户式处理改造成了衣帽间和卫生间,大大提升了长辈们的生活品质。
入户

为了保证门厅的采光,设计师采用了透明钢化玻璃代替原来的墙体,再加上香槟色的硬包、金色支架的玄关桌、装饰画和绿植的点缀,温柔而高级。
客餐厅

本案选择了米色的亮面地板砖搭配白色吊顶,极其简单的配色,却显得格外温柔。餐厅和客厅区域装饰了两盏相同款式的水晶吊灯,金色的支架搭配暖黄色的灯光,超级高雅。
客厅

电视背景墙选择了灰白色的不规则花纹花色的大理石板,电视机直接悬挂于大理石板上,下方摆放着了一张白色与香槟金拼接的电视机柜。
桌面上摆放的精致饰品和金色边框的相框,再加上两侧的盆景和艺术展品,整个空间显得非常简洁大气又不失艺术品味。

考虑到灰白色的大理石板稍显冷俊,所以设计师在两侧还用硬包做了修饰。香槟色搭配精美的雕花,再配上两盏金色的欧式壁灯,非常的优雅。
香槟色的硬包与电视背景相呼应,不规则花瓣形状的装饰物作为沙发背景墙的点缀,让空间变得格外优雅。
客厅的沙发选择了一套卡其色的皮质沙发组件,沙发上摆放着白色和蓝灰色抱枕,再配上一张圆形的透明玻璃桌面的简易茶几,简洁之中又透着高贵。
餐厅

白色岩板面的圆形餐桌用金色的金属边条进行勾勒,与吊灯的金色支架相呼应。餐椅则选择了浅灰色与浅蓝色的拼接色,高雅之中又多了一丝俏皮。
为提升空间的使用性,设计师在墙面做了一组嵌入式的壁柜,爵士白色的面板搭配透明玻璃,与整体氛围非常融合。壁柜中间还做了一个对景的设计,大大提升了用餐区的仪式感与尊贵感。
厨房

厨房的橱柜选择了爵士白搭配浅灰色,非常的简洁大方。上下两层不能色块的处理,让空间层次更加丰富。
主卧

由于主卧没有独立的衣帽间,所以设计师定制了一整面的爵士白色的嵌入式衣柜,同时将梳妆台也融入其中,非常节省空间。
儿童房

考虑到孩子对学习空间的需求,设计师在房间里做了一体式的定制壁柜设计,将孩子的书桌、书架、衣柜统统融入其中,大大提升了空间的功能性。
阳台

白色的铁艺长沙发上摆放着蔚蓝色的布艺坐垫和靠枕,在阳光的映衬下格外耀眼。一张白色椭圆型的简易茶几、一张米色的单人沙发椅,再加上茶几上的鲜花,一起都显得那么温馨那么惬意。