160㎡现代轻奢风,“大通顶”设计,即刻拥有超大客厅既视感!
华浔品味装饰集团
2022-12-26
这款案例的原有户型打造并不是很科学,室内采光性能和通畅程度没有得到最大程度上的释放。业主是在大学任教的年轻教师,有着最时尚前沿的审美观念,想要一处拥有时尚潮流质感的装修风格。
设计师通过对原有的格局重新打造,打通大阳台使得其空间变得更大,设计了超大面积的大通顶,赋予公共面积更加宽敞的即视感。
沙发背景墙通过不同的材质变化体现出层次感的变动。合理增加调酒的小吧台,体现出业主对于生活品质的追求。空间整体采用暖灰色色调为主,深木色的木纹、杏色墙板纹路以及硬装软装的合理搭配来体现出空间中的高级感。
基础信息
设计面积:160平方米
设计风格:现代轻奢风
所用材料:大理石地砖,筒灯,艺术漆,钛合金木地板等
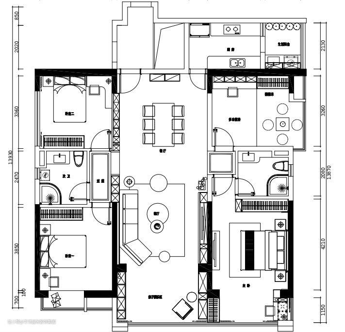
01原建图

客餐厅公共活动区域位于整体建筑的中心位置,进一步凸显出对于公共活动区这个生活重点。
四个方向的角落设计成四个独立的卧室,这样能够最大程度上减少互相之间的打扰,保持私密程度。
02平面布置图

向阳一侧打造成厨房和生活阳台互相联通的设计,这样一些厨余用品、菜品都可以在生活阳台上柜子中存放,减轻厨房的空间压力。
留给主卧的使用空间超大,能够最大程度上满足对于休息睡眠质量的需求。
主卧紧邻多功能房,一些兴趣爱好、业余需求都可以在睡前前有的独立的进行空间。
01客厅
从这个角度看过去公共活动区域最引人注目的还是这款大通顶的设计。

并没有像传统的设计方式一样,客厅和餐厅各自成为一体,而是采用线型灯带将所有的面积“框选”进去,以捕捉最大的视角范围,营造出宽敞通透的感觉,在直线型灯带的映衬下仿佛时光光轴一般美妙。
圆形的灯环在不同的角度释放着自己的光芒,既能补光,仿佛又是一处工艺品。
餐厅的墙面去除了所有冗杂的设计,返璞归真,选用最简约的墙布铺贴,让筒灯的灯光照在上面,形成最为简单的光线图案,投影间尽显简约设计感的美妙。皮质沙发的选择非常具有年轻化的色彩,特别是这种藏青色的选择,青春的气息浓厚,而且色调颇为耐脏。

一幅抽象的轻奢挂画放置于地面之上,也显示出对于自由、不拘束生活格局的追求。这款藏青色的沙发造型非常别致,并不是采用传统的L型或直排式,恰到好处的有一个钝角的角度,形成一种包围式的感觉,并且还兼顾到了进出的方便。

在沙发的一角配有框架式的简约吧台,放个水杯、手机都很方便,并且不需要花费很多资金,就能够达到方便生活的效果。为了避免色彩上的单一,在靠近阳台的地方增添了一处橘红色色调的皮质单人沙发,色彩极为靓丽显眼,使得整体的色调变化呈现出多样性,色彩点缀恰到好处。在这里再介绍一个非常实用的设计,茶几是每家每户装修不可缺少的软装配置,而小型的圆形茶几既显可爱又不占空间,还能防止边边角角对于小孩的磕碰,安全性能更高,推荐给大家选择这种软装搭配方式。


02卧室一
卧室的打造较为简约,首先这种斜向木纹质感的木地板铺设让房间呈现出一种温馨的基调。

沿着墙体打造出一处拐角状的写字台,这样能够提供更多的物品存放空间。
如果孩子在这里休息的话可以作为书桌,并且有更多的面积摆放书籍。

墙尾处的空间打造成为衣柜,毕竟作为卧室来讲,收纳能力是必不可少的一处得分亮点。
由于空间的局限性,衣柜采用推拉门的设计,这样能够进一步的收缩空间,不会出现平开门占用走路空间的问题。
03卧室二

这处卧室沿用着主卧设计风格,整体的设计较为简约,没有过多的装饰。
同样打造的小型书桌也可以作为梳妆台使用,简约的风格是对于良好的休息质量追求的真实写照。
04休闲区
休闲区打造了一处小小的吧台,整个柜子就像酒吧里的设计一样,打造成多功能的酒柜,内部可以存放一些美酒。

小小的操作台也可以作为调酒的地方,并且每一层的柜体下方都配有灯带,光照效果极好。
搭配框架式的高脚凳,整个休闲区的格调一下子就提升上来。