海珀兰轩143㎡现代风〡谁懂啊,这套的设计真的好高级!
银川九鼎装饰
2023-03-31
- 设计说明 -
Design description
本案以现代的形式来满足居住者对于简约而不简单的居室环境要求。现代人快节奏,高频率以及满负荷的生活节奏,导致了人们需要在一天的工作之余,想要得到一个简约型的空间来得到心灵的放松,希望能够在家中摆脱世俗的繁琐、复杂并且追求简单、自然的生活状态。
- 项目分析 -
Project analysis
项目地址:海珀兰轩
项目风格:现代风格
项目面积:143平米
主案设计师:李卓
- 设计亮点 -
Design highlights

将客厅、餐厅、书房结合在一起
让动线更加流畅
视野更加开阔通透感十足
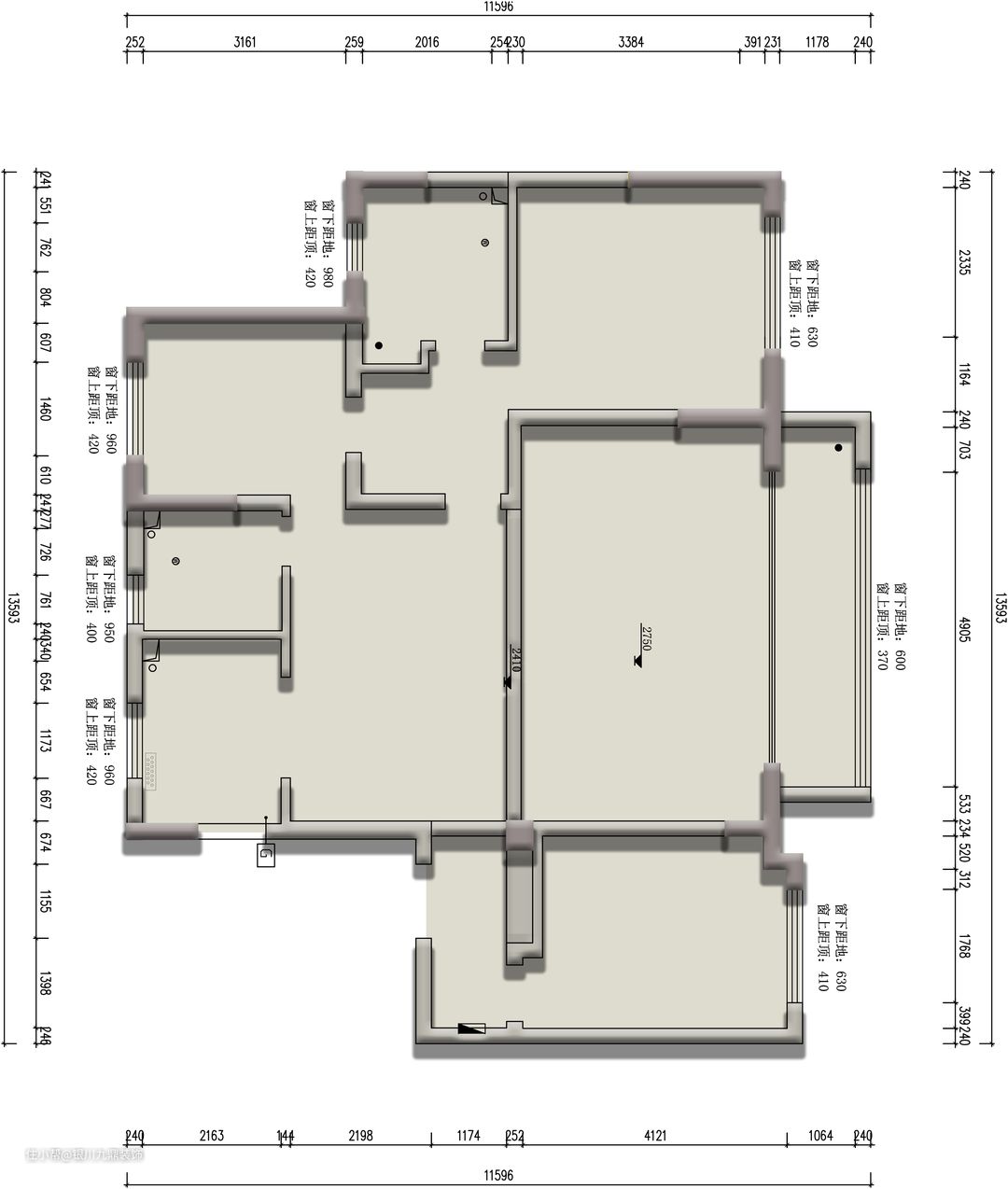
- 设计图纸 -
Design drawings

△原始结构图

△平面布置图
- 玄关 -
porch

入户门口玄关是一个缓冲过渡地段。虽然是居室空间中狭小的一角,却对整个居室的风格起着至关重要的作用。玄关处的鞋帽柜精心设计,以实用为主,搭配暖色光源使空间明亮又富有想象力。
- 客厅 -
Living room

客厅的大窗户通透的采光使空间的人和物尽情的享受自然阳光的沐浴。

整体设计追求空间平衡,对设计语言精心构建,在独特的现代理念中力求生活的本源:知性,优雅,具人文气息。

用美学的态度去处理空间关系及各种材质的和谐与冲突,并赋予每一种生活机能充满高度的人文关怀的喜悦与使用情趣,始终形成回归本真的生活。

书房客厅融为一体的动线设计布局,休闲之余自然随意的翻阅历史著作和现代经典文学。弧形的书架设计,使空间充满活力。
- 餐厅 -
restaurant

格调统一的家具和配色,干净澄明的底色,营造出清新且无压的现代质感,利用高低的错落和材质不同的肌理,创造出高级的、充满包容性的空间气场,隐喻的美感在每一个细节处散发着优雅的品味。

客餐的一体化设计,模糊了传统的空间界限,有了更丰富的连续感,设计从细腻的材质对比和空间尺度的收房入手,重拾了材料和人感官的联系。
- 卧室 -
bedchamber

主卧柔软细腻的皮质床靠和造型别致的床头柜,色调调皮又给人轻松舒适的感觉,在与浅色衣柜对比中调和出别样的空间质感。

次卧在精致的设计基调下烘托出玲珑简洁的优雅,睁开眼就能感受到阳光的温暖和煦,纱帘的自由舒展,辽远的窗景映照的空间如此澄明,精致中照拂日常,浪漫和理性在这一刻完美结合。
设计师介绍

李卓
毕业院校:河北保定学院环境艺术设计系
从业年限:15年
擅长风格:现代简约、新中式、诧寂风、现在轻奢、北欧风格
设计理念:设计源于生活并高于生活,一切设计是以人为本。从实用的角度,到超载的发挥,构成艺术的主体。
经典案例:中海悦府、公园华府、铂悦公馆、凤凰尚筑 、天山熙湖、江南赋、 海珀兰轩等