只给装修工人效果图,能装出效果吗?
设计馆
2023-04-11
装修是一个无底洞,为了省钱,装修时就在网上找几张效果图,然后让装修工人直接对着效果图来做,可以做出效果吗?答案是否定的,这样做最有可能的是装修工人给你装出“四不像”的装修效果,让你家成为大家的反面教材,除非你自己就是装修工头,对装修行业很懂并且很有时间。

1、装修工人精力有限:
术业有专攻,工人擅长的是施工操作,而把控装修效果是设计师才擅长的。
只有效果图的话,装修工人需要琢磨的东西很多细节!

工人不是设计师,没有设计方面的专业,即便是琢磨也有可能是错的,而且工人精力有限,按部就班地干活才更高效,不可能给你看一下效果图琢磨一下再施工。除非,你给工人的价钱已经是包括“设计费”了,但有这个经费的话,何不直接请给专业设计师呢?
2、装修项目有很多:
首先装修有很多项目,比如水电工、泥水工、木工、油漆工等等,每一个项目都是由不同的人来做的,并且每个人做事的时间点都不同的,他们之间缺少沟通衔接。

只有效果图的话,每个工人看效果图都有自己的理解,然后都给你添加一点想法(或偷一点懒)的话,这里差一点、那里差一点,一不小心就做成“四不像”了。
3、效果图看不出材料:
除非是出租屋的风格,就贴个地砖刷个墙,否则装修要用到的材料可不少。
在效果图上,你根本就看不出来方案里面用的是什么材料,尤其是背景墙上的造型设计,还有一些比较前卫的设计,比如金属踢脚线、柔光砖、金属装饰条等等,看图片很难看到这些细节材质的。

4、效果图看不出尺寸比例:
效果图只能看到装修的大概样子,里面的尺寸比例全然不知,工人看图的话只能临场发挥了。
比如天花的吊顶——做多宽多高、筒灯与射灯放在哪些位置?若天花造型尺寸比例不对,那么装出来的天花就会很别扭;若筒灯射灯位置不对,也会影响到照明与背景墙的灯光洗墙效果。

比如背景墙的造型——像非对称的造型,那这造型是要用什么比例,才会看起来和谐美观呢?

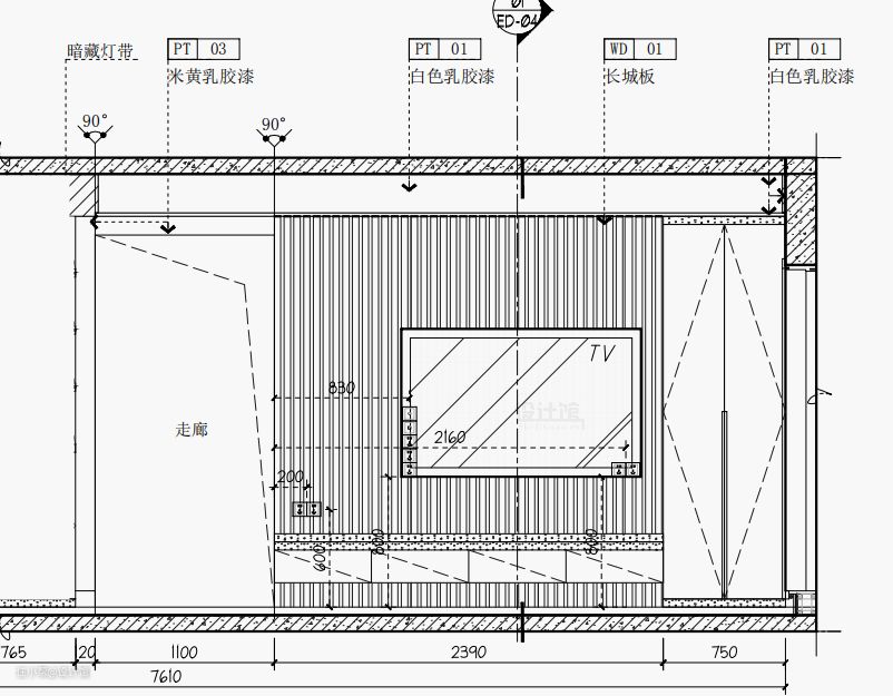
5、施工图才是工人看的:
想要工人做出效果,必须要有施工图!
效果图主要是表现设计风格,是给业主看装修后的大概效果,主要用来确定装修风格与设计意向的;

施工图主要是表现尺寸、材料与工艺,是给工人看如何施工,让工人施工的时候知道各个位置该用什么材料、用什么尺寸的材料等等施工细节。

所以,只给装修工人装修效果图,他们是可以根据图纸来进行模仿式装修,但装修是一个项目多、周期长的过程,只有效果图作为参考的话,在材料、尺寸的差异,再加上不同工人对效果图不同的理解,最终的装修效果可能会与效果图不完全一致。
所以,想要装修效果好,千万别让工人对着效果图施工,钱没少花,效果却没出来。