就想有个衣帽间,把主卫腾出来打通改成衣帽间,越用越舒适~
合肥飞墨设计师
2023-06-02
提问:真的太想有个衣帽间了,可惜新房是三居室,无法舍弃一间房的情况下,这该咋办呢?

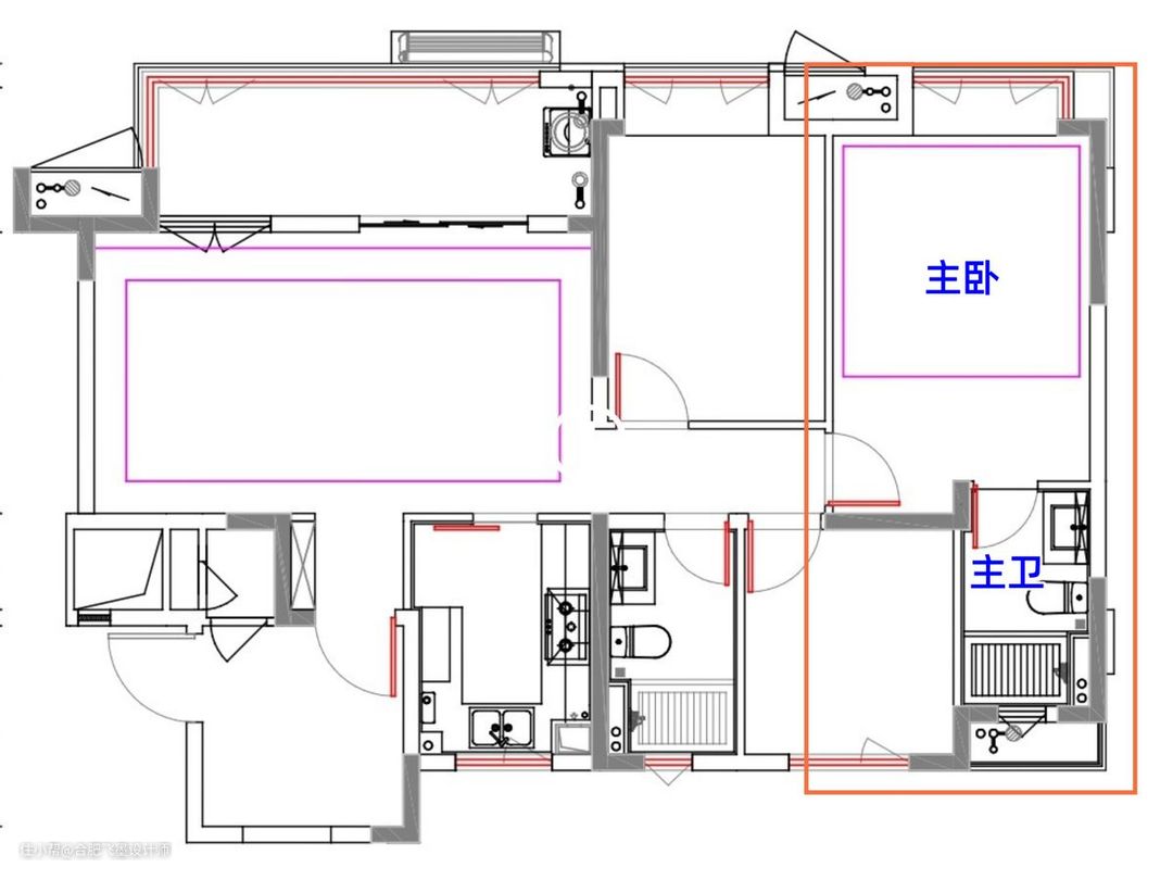
这时就可以把【金隅金成公馆】这家当做装修模板了,反正都是双卫,干脆将主卫打通并入主卧,完工大套间真的越来越舒适!如下图▼

改后的主卧套间面积为18㎡,加上墙面大面积刷白,整个休息场所变得更加开阔了。另外由于打通后,两面窗户形成空气对流,整个卧室通风采光条件也随之改善不少,居住舒适度满分。

再来看看衣帽间有哪些设计亮点吧↓
✔衣柜、化妆桌连体设计
衣柜呈一字型布局,长2.9m,高2.4m,拱形长虹玻璃门+一门到顶造型,藏露结合很是凸显空间层次感。柜门打开内设挂衣区、被褥区、叠衣区,很是符合业主收纳习惯。

衣柜往外延伸1m便是梳妆台了,底部悬空无桌腿,不仅方便腿脚置放,也更好打理卫生。侧边的开放格则可用于存放书籍、摆件,一来好拿好取,二来装饰效果也绝佳。

✔香格里拉帘
衣帽间窗户选择的是香格里拉帘,简约利落,和卧室风格很搭配。而且香格里拉帘还具有调节光影的作用哦,透光不透人,既保证了卧室的隐私性,同时也达到通透性的目的,真的一举多得。

至于休息区,也没有按照传统布局来,而是直接贴地砌了组地台,长3.1m,宽2.4m,将床垫往上一铺,就再也不用打扫床底灰尘了。平时想要整理床铺的话,也会灵活方便很多,想不爱都难。

床头安装的护墙板,加上抽缝工艺,给人清爽又不失立体感的视觉效果,而且也具有保护墙面的作用哦。

最后就是照明了,顶面是一盏蚕丝灯,加上石膏灯盘,使得整个卧室套间变得更加温馨有氛围。

就分享到这了,你们喜欢这个主卧套间设计吗?欢迎评论区分享哦~