最贵贫穷风,168㎡日式侘寂住宅,这个家我可以3年不出门!
家装札记
2023-06-05

套内168㎡的大户型,以日式侘寂风为基础,重新诠释了家屋光景,施以矿物涂料、揉入天然素材,注入侘寂哲学的朴实无为,并移植北欧简约、有机的生活形式,将放松自在的流动编织入屋,成就一方安放身心的避世之所。
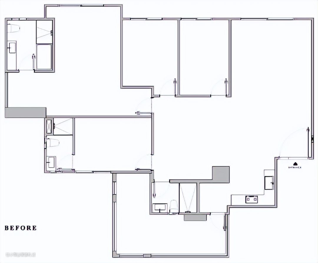
户型图


套内168㎡,改造前后并没有太大变化,装修最大程度保留了原始布局,考量餐厅属于全室暗角,然而此处作为增进亲子交流、凝聚家族情感的重要场域,拥有充足光源变得极为重要,于是打除相邻房间的隔墙,改用玻璃折叠门设计,引入采光赋予这间空房多功能定位。
玄关

玄关地面相应着视线远方的弧形天花,以圆弧收角、异材拼接分界落尘所在,并纷纷在这段入屋过渡里,于两侧投放置物平台、鞋柜和电子衣橱,有序梳理日日往返家宅的流程。
客厅

循步向前,轻透日光充盈着客厅,使光影分明了墙上镘抹纹理,弥漫属于侘寂的素雅调性。同步取材于自然,佐以藤编手感、圆弧线条和人字拼层次,除去不必要的设计手法,诉说着空间本质之美。

以弧面勾绘家屋天顶,以此包裹了家的安闲恬静,同时收敛两侧梁体,以对称和谐画面加以间接照明,推升高度感受,也于电视墙垫出一面收弧墙板,衬出一抹幽微暖光,搭佐流线家具轮廓,烘托温和又寂静气氛。
餐厅


因整体楼高足够,这回也加入弧形语汇,在天花勾勒出拱顶造型,营造出“窝”的意象,同步在各处细节、家具软装等加入圆弧轮廓,以温柔笔触回应他们的居家想像,使一切简约,却不失格调。

鉴于全屋大型梁柱大多横贯在餐厨区,于是透过局部降板,顺势将空调藏于梁上,另以展示柜弱化柱体,与此同时,让厨房内电器柜依着柱边砌筑,缩小厨房入口,再加以玻璃滑门,分隔出内外厨。

中岛台不只扩大料理范围,还拓出亲子互动实景,无论齐聚吃锅、制作甜点,丰富了日常景况;此一规划亦流畅了回家马上洗手的习惯。

圆润餐桌对应着天花圆弧轮廓,呼应了客厅天花“凝聚”之意,此呈现为的是弱化屋梁存在,也保有原始高度上的开阔感,成就屋内重要的集会之地,搭配一旁多功能室的使用弹性,提升空间灵活度。
主卧

依循原始格局,以长廊串连了更衣室与卫浴,并以一道玻璃门纯粹睡眠区的宁静,划分出房内动静,不只降低作息干扰, 透过一日衣柜的设立,方便屋主回家后更换外衣,直达浴室冲澡。


别于走廊上清透纯白色调,卧房内以一抹暖灰调,沉淀心绪,更于床头两侧佐上线板点缀,刻意以低比例装饰,一脉相承了简约主轴,再运用不同材质语汇的介入,示意公私领域之别。

过道尽头,深木色柜体竖立而起,利用“深色产生视觉后退”之效果,推深空间界线,再辅以格栅细节,消弭量体份量,引导动线走向。

卫浴续以大地色系、藤编元素,延续淡雅基调,因双槽洗手台设计,特意选用木框搭配镜子,挹注欧式乡村气息;独立式浴缸则取代了嵌入式设计,并以长型排水沟划开干湿界线,用利落宽敞布局保有自由灵巧度。