旧房改造施工过程及细节剖析
仇文龙设计师
2023-07-07

本案设计师:仇文龙
项目地址:济南市杆石桥宿舍
项目面积:150㎡
项目风格:现代美式
装修类型:旧房全屋改造
设计+施工:济南东易日盛
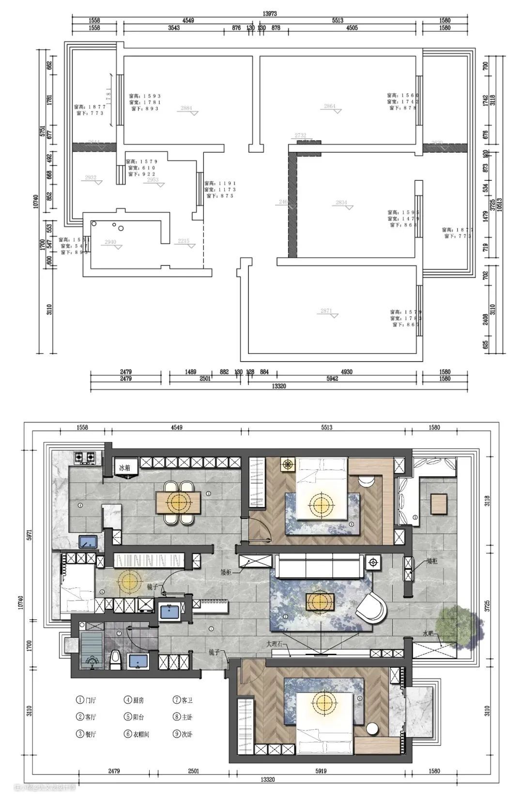
原始图VS改造图


①:门厅



#施工过程#

细节剖析:
① 原户型入户处为餐厅区域,改造后,将北卧与北阳台作为餐厅与厨房功能,将入户处做成玄关墙。进一步提升入户的仪式感。
② 玄关墙运用了纵横穿插的解构设计手法,为达到岩板台面悬空的设计效果,这里提前对接木作尺寸并做了钢架结构。确保台面的稳定性。
③ 台面使用的岩板材质,为影视墙岩板切割的边料。充分利用材料的同时,保证了质感的呼应。
④ 门厅处设置了鞋柜和穿衣镜功能。同时将家中一进门主要的控制线都放在了一进门侧墙的位置,控制更加方便。
②:客厅



#功能细节#


细节剖析:
① 原户型有根横梁将客厅与餐厅划分为两个区域。改造后,将背景墙和影视墙做成一体连贯的造型。使空间更加开阔通透。
② 影视墙造型从视觉上使客厅更加连贯开阔。悬空柜体内做钢架支撑,确保结构稳定。
③ 电视机尺寸前期沟通确定,预留尺寸。电视机表面与岩板背景墙持平。金属收口。留两公分缝隙。电视机架子可外拉接线。
④ 吊顶使用无主灯设计,光照更加均匀,同时平面吊顶有效解决了老房子预制板结构间的裂缝问题。下吊尺寸8公分。使用了深层防眩光射灯。
⑤ 电视柜台面插座用做智能音箱使用。通过语音,对家里光照模式,色温,亮度等进行控制。
#施工过程#

③:餐厅&厨房

#功能细节#

细节剖析:
① 原户型北阳台为通长空间。北卧与阳台间为窗户。导致北阳台动线过长,造成空间浪费。将北卧窗户打通,并把北阳台隔开。将北阳台以西做衣帽间,北阳台以东做厨房功能。
② 原有燃气与上下水均在北阳台以西,改造后将下水引到新建墙体东侧。并外加了一个地漏。燃气主管是由楼体东侧绕过来。通过主管直接在室外将燃气改到了北阳台东面。
③ 墙体在新建时留缝。确保让推拉门可以全部推到墙垛内侧。使用吊轨推拉门,不在地面和台面留轨道。方便后期打理。
④ 通过窗户外飘做台面。进一步扩大厨房使用面积。墙面瓷砖砖缝与地面砖缝保持一致。
⑤ 北阳台三面均为窗户,如使用顶吸则会影响效果和采光。这里使用集成灶将油烟直接从灶的下面向外排。并集成了烤箱功能。
⑥ 餐厅的边柜扩大了厨房的储物功能。同时玻璃展示柜里放置了老一辈留下来的上世纪五十年代的德国造收音机,无敌牌缝纫机,手工糊制的纸缸,以及老一辈的各种勋章。这个时光角传承着老一辈对家人的眷恋和对家人的爱。
#施工过程#

④:南卧室

#功能细节#

细节剖析:
① 次卧南北向有五米五左右。空间较长。将原窗洞向北调。扩大阳台的空间。并利用阳台空间做休闲区使用。
② 借着砖混结构的墙垛做对称书架,并与下面的书桌相连。成为一个整体。台面更加开阔,同时充分利用了卧室南北向的空间。
③ 为避免老房预制板结构再次裂缝。顶面使用木龙骨平面吊顶。使下吊尺寸做到最小。同时对顶面进行调平。
⑤:主卧

#功能细节#


细节剖析:
①落地格栅墙板,对墙面做材质分割。同时也作为桌面悬空的支撑。
②中央空调走到南侧,与下面飘窗上下呼应。北侧衣柜通顶。获得更大的储物空间。
⑥:卫生间


#功能细节#

#施工过程#
