进门见厅的无玄关户型如何设计?
珂图空间设计
2023-08-13
玄关又称为门厅、过厅,是一推开家门最先进入的地方,为室内与室外之间的一个过渡空间,也是进入室内换鞋、更衣或从室内去室外的缓冲空间。
国内的商品房户型设计,从近十年开始也愈加开始重视玄关区域的规划,独立玄关不仅在功能上更加完备,更容易给人一种归家的仪式感,比如这样:


但也有很多户型由于是年代久远的老房,或者空间格外紧凑,并不具备独立玄关的条件,今天小珂就和大家盘一盘那些进门就是厅(客厅/餐厅)的无玄关户型,应该如何设计呢?
首先,玄关应该具备哪些功能?
- 鞋柜:应季鞋子收纳,拖鞋存放
- 衣帽柜:托换外套、帽子、围巾、包包等
- 万能置物区:放钥匙、门禁卡、车钥匙,
- 穿衣镜:最好可以照全身
- 换鞋凳或者卡座(可选配)
- 日常出门用品收纳区:如出门前的香水、墨镜、口罩、消毒用品等,婴儿车、滑板车的收纳空间(可选配)
接下来,我们通过三个案例说明,如果设计玄关区:
- 案例一
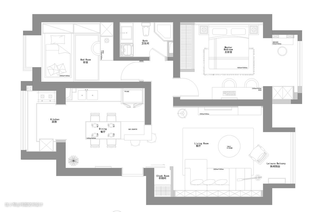
15+年前老房,进门就是餐厅,无法做独立玄关

▲原始户型
弊端:房龄15+的H户型,入户门在餐厅一角,大部分墙体结构无法拆除,独立玄关几乎没有可能

▲平面布局
设计点睛:独立玄关实现不了,不强求,弥补玄关功能性!
- 考虑归家动线:进—放—更(衣/鞋)—储(收纳功能)。设计师将餐桌+岛台置于餐厅中间,岛台的外缘做L型外飘吧台,进门后正对吧台,可以临时放置从外采购的各种瓜果蔬菜。客厅沙发背景做半开放式书柜展示柜,宽度与电视墙取齐,与过道同等宽度的空间做镜面推拉门步入式衣帽间,实现距离入户门最近的更衣、换鞋、储物收纳功能。
- 考虑离家动线:拿(衣/鞋/包)—更(衣/鞋)—照—离。虽无独立玄关,但在无形中,形成了吧台—镜子前长约1.8米的玄关区域,满足玄关功能。

主人归家后的动线是先在吧台放下手中的大包小裹,然后转身推开衣帽间,托外套换鞋。。。

打开家门第一眼的视角

衣帽间镜面推拉门,正对过道,拉长视觉感。。。

衣帽间内部空间800mm*1300mm,柜体深度600mm,挂衣区高度1200mm,挂置冬天的长衣外套完全OK,顶柜高度260mm,可容纳一20寸行李箱,做一层抽屉,放零碎小物件,三层鞋柜可内外两排摆放,可容纳10多双应季的鞋子和常用拖鞋。
- 案例二
玄关是通道的起点,直通客厅阳台,一览无余

▲原始户型
弊端:玄关只够放置薄鞋柜,更衣、放包的收纳需求无法满足;站在门口客厅一览无余,还无私密感可言,风水上形成通堂SHA。

▲平面布局
设计点睛:布局大改造,小家住出大宅感。实现独立玄关做了两个动作:
- 增加隔墙,形成相对独立的玄关区,保护客厅的私密感,进入后前行两步有种豁然开朗的空间感。
- 增加玄关柜,深度600mm,宽度1100mm,通顶镜面门,更衣/换鞋/放包都OK!入户门右侧墙面做超薄鞋柜放拖鞋,厚度15cm,刚好放钥匙、手机等小物件,也可以充当换鞋时的扶手!


- 案例三
通道型玄关,考虑与临近空间的关系,功能完善,颜值UP!

▲原始户型
弊端:玄关兼过道,务必保证通过性,基本不具备独立玄关条件;公卫干区外置,站在门口便能窥见卫生间。

▲平面布局
设计点睛:完善玄关功能,保留通道开阔,给玄关加点美感!
- 调整公卫布局,加宽正对入户门的墙面,让日常生活的细节尽量隐蔽,而留给回家的第一眼是风景!(大幅装饰画)
- 围绕餐桌做L型餐边卡座+鞋柜,鞋柜台面也为餐厅提供了延申功能。入户门右手边做通顶镜面玄关柜,实现更衣收纳功能,也遮挡设备开关。

打开家门的第一眼!

灵活的小板凳可收于餐桌下,客厅—玄关—餐厅,通道宽敞!



结语:户型千千万万,不见得每一款户型都能通过设计改造获得独立玄关,但务必在入户门周边完善玄关的基本功能:换鞋、更衣、收纳等,形成并非独立但好用不乱的玄关功能区。希望通过上述三个案例为您家的玄关设计提供有用的设计思路,如果喜欢珂图家的设计分享,欢迎点赞收藏加关注,珂图将持续分享更多设计案例。
以上图片均为珂图空间设计原创设计+实景落地,侵必究!