蚌埠·荣盛华府玖珑院400㎡惊艳别墅,当新中式传统遇上欧洲浪漫~
华然装饰
2023-09-15
作品详情
项目信息
项目地址 / 蚌埠 · 荣盛华府玖珑院
项目户型 / 别墅
项目面积 / 建筑面积400㎡
项目风格 / 新中式混搭欧式
设计施工 / 安徽华然装饰

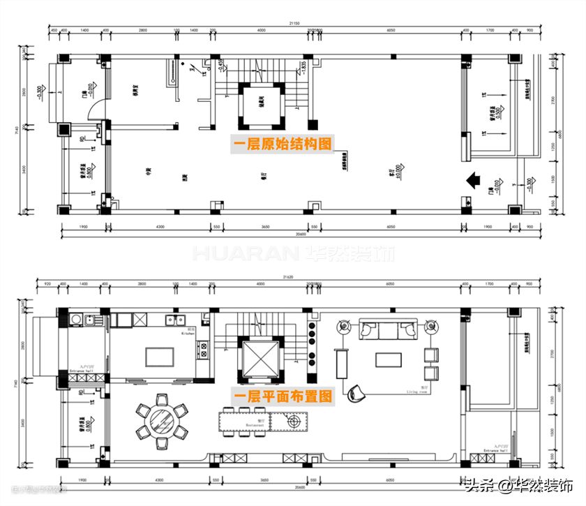
一层原始结构图&平面布置图
一楼设计亮点:
整个空间方正大气,充满现代大方与中式端庄的档次感;
客餐厅连接处增加茶室的空间,区别于正式的餐厅,多了轻松的氛围感;
开放自如的厨房设计,完全适用于何各种生活场景。
客厅
客厅优雅而有气质
将古典和现代元素相结合起来
营造一种唯美、清新的意境感
方正的户型结构,端庄丰华恢宏大气
散发出亦古亦今的层次之美

护墙板做对称造型,映衬新中式的美
木与石的自然情怀,是生命力的表达
让使用者与空间产生精神共鸣
又暗含了一种层序美

通过灯具、材质、线条来体现中式的美
客厅吊顶四周以木质纹理做线条
将中式的平衡、对称稳定之美,发挥极致
灯具选择的低调而不浮夸
乳白色的灯像一朵花绽放在客厅上空


楼梯隔断与吊顶的栅格相呼应
弱化视觉的沉重感
用相同的材质叠加处理
切分光影,让空间更为灵动


喝茶区域也是家人互动的空间
客厅、餐厅、茶室,彼此独立又关联
沿用中式的元素,谱写光影
岁月静谧且悠长


餐厅
餐厅营造如水墨画般朦胧的诗意美
吊顶叠级的设计搭配丰满的灯具
中式的端庄与优雅感油然而生
圈椅充满线条感,造型优美
干净利落且舒适

厨房
上下柜中间镂空设计,满足不少收纳需求
渗进木材纹路的灯光氛围,增加空间的通透感
利用相同的材质打造中岛设计
空间层次更有张力,张弛有度


二层原始结构图&平面布置图
二楼设计亮点:
二楼是两个孩子的房间,都是以套房的形式设计;
男孩房与露台做连接,自然光线充足,平时也可做晾晒区;
每个房间内衣帽间、卫生间、开放式书房功能齐全;
女孩房利用电梯连廊空间做衣帽间,空间利用的恰到好处。
女孩房
女孩房风格定义为粉色系的欧式风
打造少女心十足的粉嫩温馨氛围
房间内粉色与白色相互映衬
共同营造欧式浪漫奢华的视觉效果



浴室里也是粉嫩可爱
洁白的浴缸闪着亮光
被好看的物品包围着
简直超级快乐


男孩房
灰色调的卧室空间带入沉稳休闲之中
通过深色家具的点缀调和
让空间层次分明,带着高级感
金属灯具与木质地板的搭配增添温度与质感
整个卧室自然端庄,让休息之人身心放松

利用隔断划分区域,让书房有独立性
空间层次感也会增加
墙面附加强大的收纳系统
相较封闭私密的书房,视野更加开阔
有让人不断探索的欲望



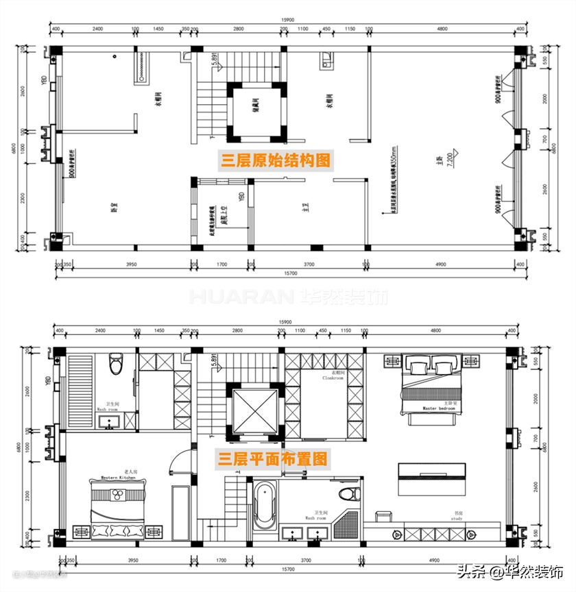
三层原始结构图&平面布置图
三楼设计亮点:
三楼同样规划出两间套房,主卧室与老人房;
格局上没有做大的改动,集衣帽间、卫生间、开放式梳妆台为一体的睡眠空间。
主卧室
整体是米色调,搭配舒适典雅的绿意
营造一个自然、高贵的气质
背景墙是石膏线条与软包相结合
合着卧室简练的线条洋溢着诗意
在柔和的灯光映衬下,调和出浪漫的氛围


米色的梳妆台,巧妙的储物空间
让居家的拥有意想不到的温度与气质
灯光的加入,让空间更显轻盈明润
丰富美好生活的每一次场景定格


深浅色调呼应的浴室空间
简单时尚又明快
浴室柜中少量金色的点缀
透露出独一无二的简洁质感


地下室平面布置图
影音室
地下室就像一个魔法屋
只要花一点心思
就能满足你所有关于家的梦想


保留天井引入透通的自然光源
大面积的白色应用,视野双倍开阔
墙面使用隔音棉覆隔
开启沉浸式享受影院视听感受

