豪华下叠别院,打造460㎡超大空间
南宁东易日盛
2023-10-17
【案例地址】中海·半山壹号
【案例面积】236m²
【设计风格】新中式风格
设计说明:
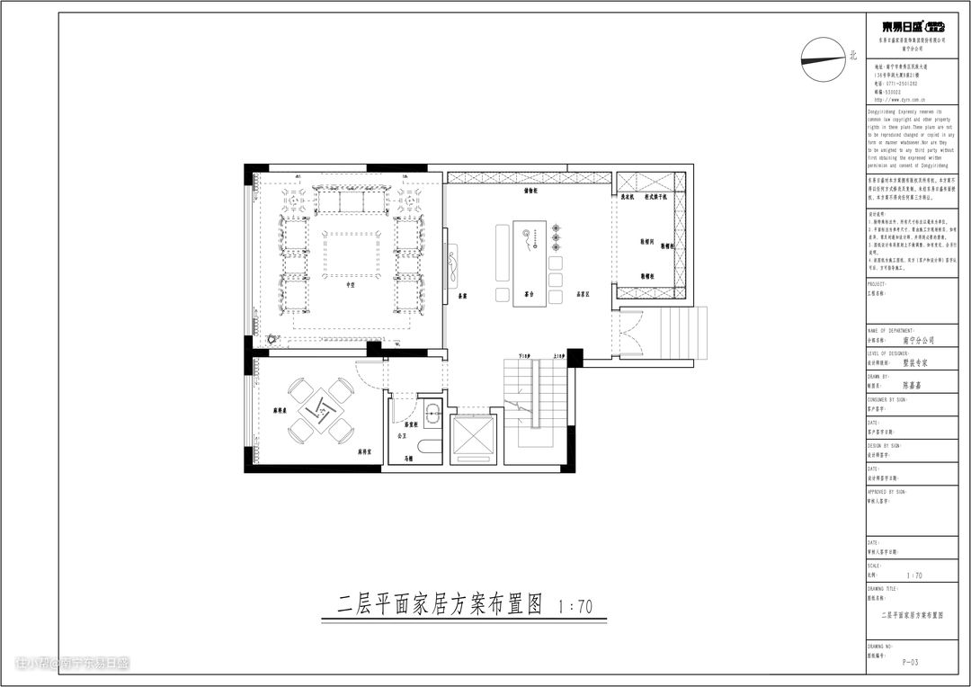
本案是建筑面积236㎡,实际装饰面积达460㎡的下叠别院项目




在本案中,设计师以方正的空间布局,从传统元素与东方源泉中挖掘,以当代设计语言和手法转译,最终融合到现代生活的具象场景之中。其上的一檐一瓦、一榫一卯,皆显现着新中式建筑的对称美学与严谨的匠人精神。

客厅配饰浓厚的中式家具摆件,提炼古建外观上的恢弘、内部细节的精致,注入清简意韵,大量的留白,利用材质的肌理感,在方圆造型之间,将中式元素和现代材质完美融合,形构出大气朗阔且不乏俊逸之美的东方人居空间。

圆桌围合,餐边柜沿着中轴对称,这含蓄的东方意境让生活更有仪式感。在虚实互映中,餐厅在端正的序列格局与简净的美学风貌中,构建起就餐礼仪与氛围。这是充满欢笑的地方,有着一日三餐四季,一家人围坐着品味人间烟火气。

一派庄重的中堂,带给人更多的是气势和韵感上的审美碾压,万千雅韵,袭脑而来,举目所及,皆是浩气。

茶室透过一扇月洞窗营构框景,各式茶具器皿与朴拙的摆件有序摆放,在温润中散发着盈盈古韵,引入自然的材质,突破“人”和“自然”的分明界限。一方长桌,几只矮凳,围坐其间,烹茶细抿,其中闲趣想必不言而喻。

棋艺室将古时文士喜爱的雅兴闲物纳入生活当中,一侧墙面纹案取自三国演义字句的意气风发与蓝色背景墙形成对话,古今互见,聊为助意。

花园运用防水防腐材料构建了一处可观可坐的休闲区,人们可以在这里聚会品酒、煮茶、尝佳肴……自然风光一览无余,予人心驰神往的享受。

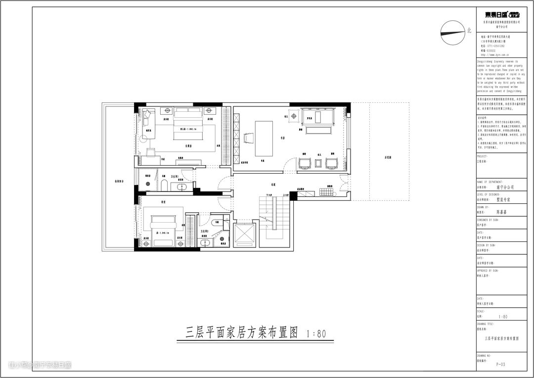
长辈房以一幅山水图作为背景,深色的实木家具让空间中多了一丝沉稳。引入清雅沉稳的木元素,与白色的背景和柜子调和的恰到好处,将中式文化气息和现代时尚韵味完美的融合到了一起。

书房构设富有传统韵味的字画、盆景、茶皿、竹简、等古玩的点缀,叠落出古朴雅致的韵律之美,营构一隅清雅恬淡的文士精神世界。

主卧设计去除了繁复的形制,素雅简净的居住格调舒缓疲惫于都市节奏的身心,加之制式古典而简洁的家具,空间于东方礼序中摹刻符合现代生活习惯的空间场景。

客卧的设计追求庄重典雅,时尚而不浮躁。抱枕靠垫与床品的选择注重舒适感与空间适配,空间完整而和谐,浸润出静谧的生活氛围。

小孩房宁静素雅,涵容古朴风雅之致。墙面鷃蓝与白色背景碰撞,内藏静美,营造创造出一方安宁的休憩场所。
