从细节到工艺,让你惊叹不已
郑州金螳螂家
2023-11-09
业主需求&原始结构图

业主十分注重居住环境,而且对细节要求很高,之所以找金螳螂是被我们精湛的工艺和细致的服务打动,从而也体现业主是追求精致的人。

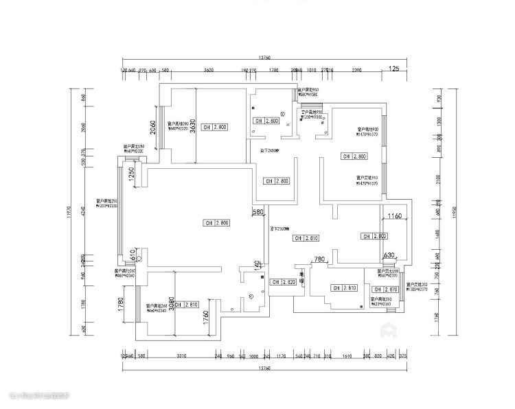
平面设计图及设计说明

在不破坏建筑结构安全的前提下,最大限度的增加了储物空间,电视墙留白做隐形门设置,大气又不失美感。

客厅效果图及设计说明

客厅空间相对较大,整体以暗色系为主。没有过多的装饰,凸显现代风格简约不简单的特点。在灯光下闪现的自然光泽,极具现代感觉。


餐厅效果图及设计说明

餐厅作为享受美食的空间,没有太多冗杂的饰品,有落地窗的映衬,长餐桌美观又大方。

卧室效果图及设计说明

卧室,简单的造型,明亮的色调,次卧定制一体化的家具更是让业主舒适度提高。

