诺德山海春风140㎡中性色调米白灰,现代简约的点睛之笔设计~
昆明东易日盛
2024-02-16
今天小易要为大家介绍一种备受追捧的现代简约风格家装设计。这套现代简约风格是灰白米色基调为主,在加以简洁、实用和时尚的特点,成为了许多人的喜爱。
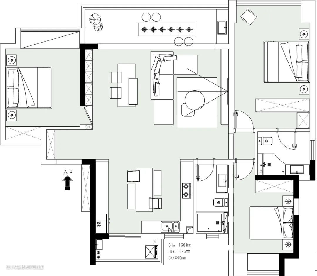
平面赏析 / plane appreciation

(平面布置图)
项目地址:诺德山海春风 / 项目面积:140㎡
项目户型:三居室 / 设计风格:现代简约
设计主创:楚鹏
案例赏析
- Case Analysis -
—
01.门厅 living room

△ 门厅
首先,让我们从门厅开始介绍吧。门厅采用经典的黑白搭配,整体设计简约而不失高雅。黑色智能门锁不仅提供了安全性,还增添了科技感。入户左侧通顶设计贴墙白色鞋帽柜,底部悬空放置临时鞋子,中间镂空设计的置物台使得鞋帽收纳更加方便。白色平顶以及白色石纹瓷砖营造出清新明亮的氛围。
02.客厅 living room

△ 客厅全景
接下来是客厅的设计。双眼皮白色吊顶取代了传统的主灯设计,使得整个空间更加温馨舒适。吊顶两侧的黄色氛围灯带增添了一抹柔和的光线。整体采用白灰色系基调,搭配白灰石纹瓷砖,给人一种简约而精致的感觉。方形玻璃桌面简约造型的茶几和象牙白复古豆腐块皮质沙发相得益彰。





△ 客厅沙发

△ 客厅电视
悬挂式电视和电视两侧的立体环绕音箱为您带来沉浸式的观影体验。白色落地式电视柜和黑色电视氛围灯带完美融合,给人一种高端大气的感觉。开放式超大落地窗和黑色窗户框架带来充足的自然光线和开阔的视野。
03.餐厨 Kitchen

△ 餐厨全景



△ 餐厅

△ 餐厅

△ 厨房
餐厨区的设计同样注重现代简约风格。U型开放式设计提供了更加宽敞的操作空间。贴墙设计的灶台置物柜使得厨房整洁有序。中间区域的6人座白色大理石板面餐桌和灰白配色的餐椅组成了温馨的用餐场所。悬浮吊顶和流动圆形线条主灯为就餐区带来了艺术感。餐桌左侧的米色灶台配备智能嵌入式烤箱和灶具,满足了现代人对于厨房功能性的需求。餐桌右侧的米色置物柜和双开门智能冰箱嵌入式设计使得储物和食品保鲜更加便捷。
04.卧室
Bed room


△ 主卧
主卧室以其舒适和个性化的设计给人留下深刻印象。米色复古皮质双人床和原木地板铺垫,营造出温馨的氛围。悬浮吊顶和无主灯设计使得卧室更加舒适和私密。3个智能氛围聚光灯提供了多样的照明选择。卡其色窗帘的配置既保护隐私,又增添了一丝雅致。床铺右侧通顶贴墙的白色超大衣帽柜提供了充足的储物空间。



△ 次卧

△ 次卧床头柜
次卧的设计注重实用性和美感的结合。高级灰床头和白色床头背景以及悬浮吊顶相互呼应,创造出简约而时尚的氛围。原木地板的使用增加了房间的自然气息。主体采用原木色,并搭配灰色拉手的床头柜,使得整个房间更加和谐统一。左侧通顶的高级灰衣帽柜为收纳提供了便利。

△ 卫生间
最后,卫生间的设计同样精致而实用。高级灰石纹墙面和米色石纹地板瓷砖形成了对比鲜明的搭配。超长白色洗漱台提供了充足的使用空间。墙角梯形设计的干湿分离洗浴间使得功能分区更加明确。