一见倾心!120㎡暖咖巧克力配色,暖入人心
齐妙E家软装家居中心
2024-05-02
➝01
INFORMATION
信息
小区:薄荷花苑
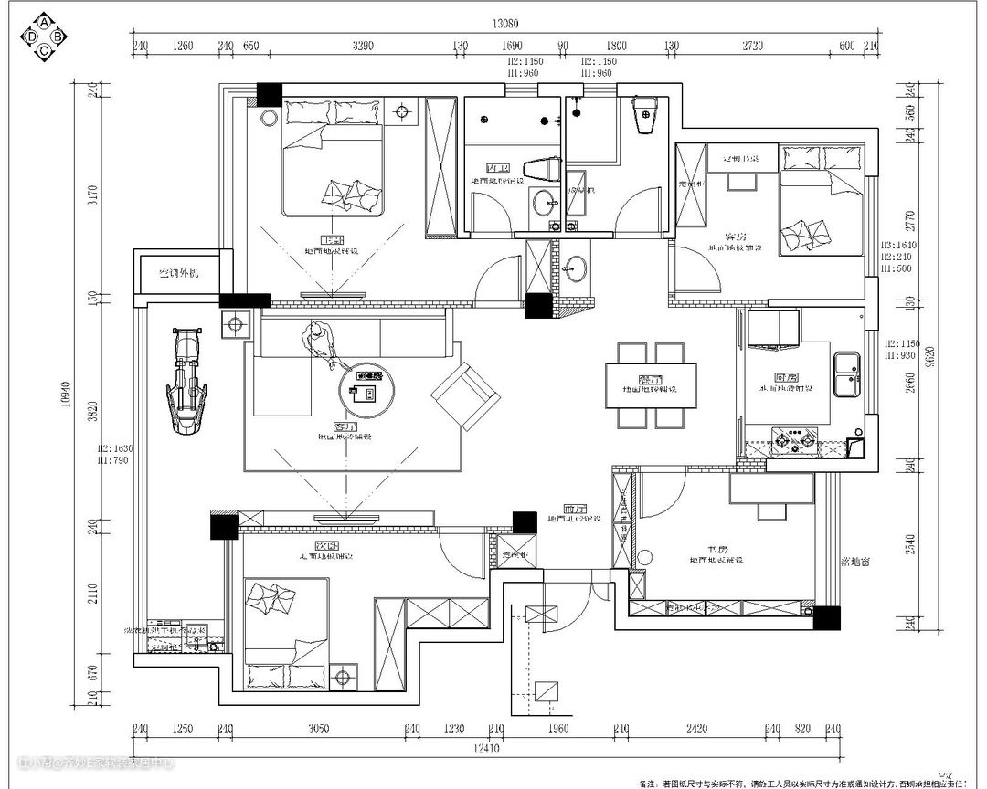
面积:120㎡
设计师全名:王娟
户型:四室两厅两卫
风格:现代
硬装费用:19W
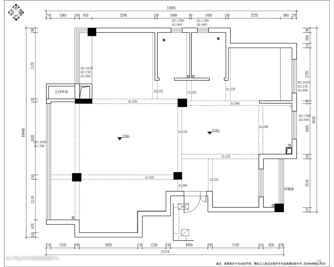
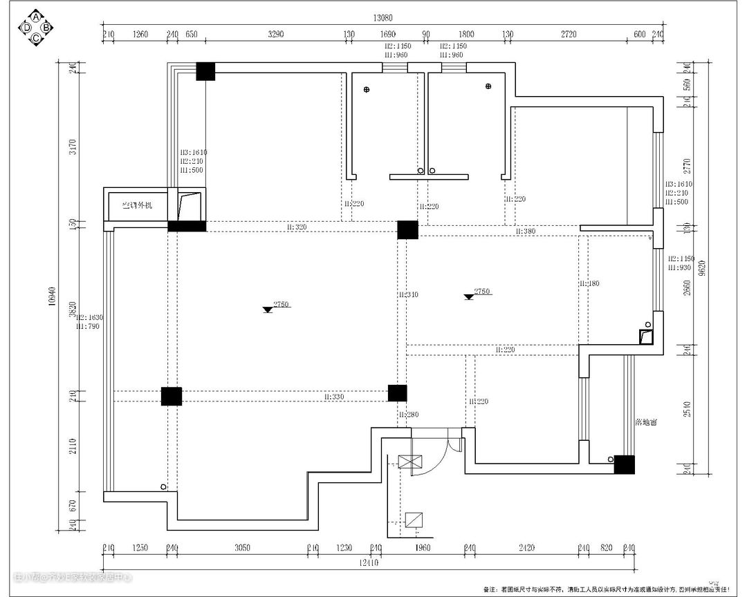
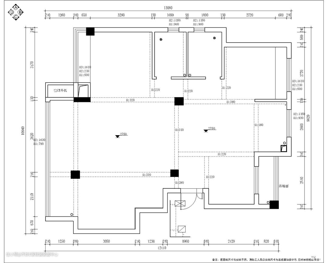
户型图

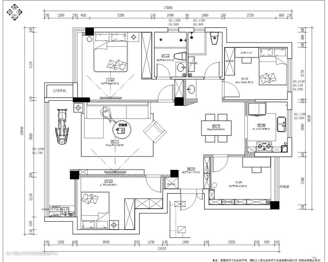
设计图

设计需求 /
本次案例的业主比较喜欢温暖舒适,简约又不失大气的氛围,所以设计师选择了温暖而含蓄的咖色系,既拥有基础的大地色调,又拥有百搭的灰色调。咖色系的明暗对比是设计师手中的魔法棒,强调的纹理与质感是从平凡走向奢华的秘诀,感受色彩的魅力。
户型分析 /
1. 厨房面积较小,行动不便,希望厨房更宽阔一些;
2. 卫生间最好能做干湿分离设计;
户型改造 /
1. 厨房墙外推,扩大面积,直接做开放式厨房;
2.卫生间区域划分出干湿区。
➝02
LIVING ROOM
客厅

# 客厅采用暖色为基调,卡其色科技布沙发搭配深咖色背景墙,统一的色系显得空间更加柔和,深浅搭配相得益彰,给人一种温暖而又含蓄的感觉。

电视背景墙采用黑白岩板,配以棕色木格栅,岩石与原木的搭配更有质感,整个空间富有层次,超大电视让你永久性享受宅家追剧的快感,在家就能轻松拥有惬意的休闲体验。

现在越来越多人选择不买茶几,实用性不高又占地方,而这款mini小桌子直接代替了茶几,不占地方、方便随地摆放,不仅秉承了极简主义,还能随时随地用来放置各种日常用品,使用率超高。

科技布方块沙发宽大厚实,外观简单别致,让人感受到被温暖包围带来的舒适感的同时,带来一种清爽的视觉效果。简单的线条更能展现现代风格,典雅又不失浪漫。
➝
04
DINING ROOM
餐厅

# 深咖色时尚皮质餐椅就像巧克力一样,看着就有一种浓郁芬香的味道,多巴胺的分泌带来了愉悦的心情,不仅不压抑,还能拉开和浅灰色地砖的灰色系层次感!咖色基调的空间里,每个角落都透着一种温情,丝滑的浪漫感。

岩石餐桌上放着优雅的高脚杯和勃艮第水晶醒酒器,黑色与玻璃相互映衬,用餐时高级感油然而生,闲暇时坐着品尝一杯红酒,让生活充满甘甜。
➝
05
KITCHEN
厨房

# 厨房依然延续着深咖色的基调,L型+岛台设计使空间更加开阔,搭配嵌入式电器一体设计,视觉上看着整洁美观、大气;厨房用具一应俱全,深咖色橱柜一眼望去就很高级、有质感。

餐边柜金色镶边,简洁的线条勾勒,更显得精致了许多,超大容纳量的厨房,谁见了不爱呢~
➝
06
BEDROOM
卧室

# 卧室是极简风格,对于喜欢安静环境的人来说,咖色十分适宜装扮卧室,白色背景墙过于单调,与巧克力一样的棕咖色搭配,更能打造出柔美、温婉的感觉。

床边摆放一张婴儿床,既能让孩子睡得更宽敞,孩子在身边又能更安全,让人舒适又安心。

次卧依然是棕咖色,长辈们比较喜欢深沉的颜色,墨绿色软包床头,灰色窗帘搭配咖色系,温馨、典雅、宁静用来形容这个空间是极为恰当的,没有任何刺眼的色彩。
➝
07
STUDY ROOM
书房

# 书房有一扇大落地窗,充足的自然光让书房明亮又温馨,摆上一张宽大的实木铁艺书桌,恬淡柔和的色彩鲜明温暖,造型朴实大方;墙角的落地灯与绿植,也为书房营造了几分清闲舒适的气息。
➝
08
SANITARY WARE
卫浴

# 卫生间采用玻璃隔断门的方式来实现干湿分离,洗漱台选择台下一体盆,柜体离地10公分避免受潮发霉,不留卫生死角打扫也轻松;灰色经典又耐脏,百叶窗设计方便通风,好看又实用。
➝
09
BALCONY
阳台

# 阳台采用的是岩板+白色搭配,多柜体的设计大大增加了储物面积;放入洗衣机+烘干机+立体柜的组合,既不会占据过多空间,也可以增加阳台储物空间。